世田谷区下馬1丁目 新築戸建
【東横線沿線内でもローカルな風情ある祐天寺、充実設備の南西向き新築一戸建】人気の東横線沿線エリア。隣の中目黒や学芸大学と比べるとのんびりした空気が流れる「祐天寺」駅徒歩10分。南西向きの整形地に誕生する3階建で、間取りは22帖LDK+4室です。WIC、パントリーなど収納豊富。食洗機、魔法瓶浴槽、浴室乾燥機など完備。IGNITUREソーラーシステム標準装備で初期費用を抑えて太陽光発電を導入可能です。
- 価格
- 1億8,500万円
- ローンの目安
- 48.8万円/月
- 交通
- 東急東横線「祐天寺」駅 徒歩10分
- 建物面積(坪数)
- 134.94㎡(40.81坪)
- 間取り/専有面積
- 4LDK / 134.94㎡
お電話のお問い合わせはこちらから
03-5790-9204
営業時間:9:30~20:00
定休日:毎週/火曜日・水曜日
-
〒150-0046 東京都渋谷区松濤2丁目7-12
-
検討中リストに追加
- お問い合わせ
物件概要 Property Detail
情報の見方| 所在地 | 東京都世田谷区下馬1丁目 | ||
|---|---|---|---|
| 交通 | |||
| 間取り/詳細 |
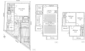
4LDK/ LDK 22.1帖 1室/洋室 9.1帖 1室/洋室 5.5帖 1室/洋室 5.2帖 1室/洋室 5.0帖 1室 |
建物面積(坪数) | 134.94㎡(40.81坪 |
| 価格 | 1億8,500万円 | ||
| 駐車場/月額料金 | 有(1台)/0円 | ||
| 土地の敷金/保証金 | -/- | 借地料/借地期間 | -/- |
| 土地権利 | 所有権 | 土地面積(坪数) | 79.74㎡(24.12坪) |
| 傾斜地部分面積 | - | 路地状敷地 | - |
| 私道負担面積/セットバック | -/無 | 高圧線下面積 | - |
| 地目/地勢 | 宅地/- | 接道状況 | 一方(南西 公道 3.6m) |
| 建ぺい率/容積率 | 60%/160% | 用途地域 | 第一種中高層住居専用 |
| 都市計画 | 市街化区域 | 種別/構造 | 新築一戸建/木造 |
| 階建 | 3階建 | 築年月(築年数) | 2026年 1月 (新築) |
| 総区画数/販売区画数 | 1区画/4区画 | 向き | 南西 |
| 現況 | 完成済み | その他の法令上の制限 | 高度地区/準防火地域 |
| 取引態様/引渡時期 | 仲介/即時 | 建築確認番号 | 第JAIC2024Y0895A3号 |
| 物件番号 | 101801743 | 取引条件の有効期限 | 2026年03月12日 |
| 設備条件 |
|
||
| 備考 |
グローバルインクでは初期費用の一部をクレジットカードでお支払い頂けます♪ 詳しくはお気軽にお問合せご相談下さいませ。 グローバルインクがお贈りする3大無料サービスをぜひご利用ください! ●3大サービスその1 超レア!未公開・企画段階物件情報ご紹介サービス 当社ホームページより会員登録ください。ネット・メルマガにすら開示できない超レア情報をお届けします。 ●3大サービスその2 不動産購入・ミニセミナー無料受講 不動産を探し始めの方、安心購入への具体的行動プランをお教えします。 契約書、重要事項説明書などの見方、瑕疵物件の判別方法など、不利な契約から身を守り、安心な物件購入ができるようにノウハウを伝授します! **セカンド・オピニオンサービス始めました!** ●3大サービスその3 ライフプランニング相談会無料開催 安心購入の為には、住宅ローンのことだけではなく、資金的に安心できる人生設計が必要になります。 お子様の学費、住宅のリフォーム、突発的な出費、そして夢の海外旅行など、すべての資金計画を一度してみることをお勧めします。 今なら無料で専門のファイナンシャル・プランナーが御相談にあずかります。 詳しくは当社「3大無料サービス」係まで TEL:03-5790-9204 |
||
| 取扱会社 |
|
||
担当者からのメッセージ Message
【東横線沿線内でもローカルな風情ある祐天寺、充実設備の南西向き新築一戸建】人気の東横線沿線エリア。隣の中目黒や学芸大学と比べるとのんびりした空気が流れる「祐天寺」駅徒歩10分。南西向きの整形地に誕生する3階建で、間取りは22帖LDK+4室です。WIC、パントリーなど収納豊富。食洗機、魔法瓶浴槽、浴室乾燥機など完備。IGNITUREソーラーシステム標準装備で初期費用を抑えて太陽光発電を導入可能です。
東横線「祐天寺」駅徒歩10分。祐天寺は東横線沿線でも少しローカルな印象のあるエリア。駅近ながら静かな環境で周辺はスーパー、ドラッグストアなど生活利便施設が充実しています。
お電話のお問い合わせはこちらから
03-5790-9204
営業時間:9:30~20:00
定休日:毎週/火曜日・水曜日
-
〒150-0046 東京都渋谷区松濤2丁目7-12
-
検討中リストに追加
- お問い合わせ
ローンシミュレーション Simulation
この物件を購入した場合の、月々の支払い価格の一例です。借り入れを保証するものではございません。
- 返済期間
-
- 金利
-
- ボーナス時の増額(1回分)
-
- 借入金額:
-
- 頭金:
-
(※元利均等方式 金利5.00%まで ※返済年数5~35年まで入力できます)
(※ボーナスは年2回で計算しています。1000万円まで入力できます)
(※物件購入時、その他諸費用が発生する場合がございます)
- 毎月の返済額
おすすめ物件 Recommended Property
-
- 世田谷区瀬田2丁目 中古戸建
- 1億7,997万円/3LDK/161.84㎡
- 東京都世田谷区瀬田2丁目
- 東急田園都市線「二子玉川」駅 徒歩11分
-
- 世田谷区成城8丁目 中古戸建
- 1億9,600万円/3LDK/108.00㎡
- 東京都世田谷区成城8丁目
- 小田急小田原線「成城学園前」駅 徒歩12分
-
- 世田谷区北沢1丁目 中古戸建
- 1億6,498万円/4LDK/99.04㎡
- 東京都世田谷区北沢1丁目
- 京王井の頭線「池ノ上」駅 徒歩4分
-
- 世田谷区下馬1丁目 中古戸建
- 1億6,400万円/3LDK/129.75㎡
- 東京都世田谷区下馬1丁目
- 東急東横線「祐天寺」駅 徒歩16分
-
- 世田谷区世田谷1丁目 新築戸建
- 1億6,000万円/3LDK/124.91㎡
- 東京都世田谷区世田谷1丁目
- 東急世田谷線「世田谷」駅 徒歩5分
周辺施設情報 Spot

- キッズガーデン上目黒
- 約386m/5分

- いづみ幼稚園
- 約445m/6分

- Pips・インターナショナルスクール下馬校
- 約713m/9分

- 世田谷区立駒繋小学校
- 約532m/7分

- 世田谷区立駒留中学校
- 約793m/10分

- 芦毛塚街かど公園
- 約206m/3分

- 田切公園
- 約398m/5分

- まいばすけっと 祐天寺駅西店
- 約391m/5分

- サミットストア下馬店
- 約475m/6分

- リコス上目黒5丁目店
- 約459m/6分

- セブンイレブン世田谷下馬北店
- 約86m/2分

- クリエイトSD世田谷下馬店
- 約247m/4分

- 三宿病院
- 約288m/4分

- 自衛隊中央病院
- 約535m/7分

- 五本木郵便局
- 約435m/6分

- 守屋図書館
- 約956m/12分

- 目黒警察署宿山交番
- 約743m/10分

- 東京学芸大学附属高等学校
- 約940m/12分

- そらのした学童保育クラブ
- 約975m/13分

- デニーズ世田谷公園店
- 約662m/9分
お電話のお問い合わせはこちらから
03-5790-9204
営業時間:9:30~20:00
定休日:毎週/火曜日・水曜日
-
〒150-0046 東京都渋谷区松濤2丁目7-12
-
検討中リストに追加
- お問い合わせ
※地図上に表示される物件の位置は付近住所に所在することを表すものであり、実際の物件所在地とは異なる場合がございます。













