世田谷区桜上水3丁目 新築戸建
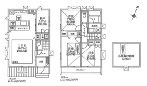
【自然と利便性が調和する桜上水、ウッドデッキのある家】京王線「桜上水」駅徒歩10分、前面道路6.2mで開放感ある桜上水の新築分譲住宅です。間取りは3LDK。1階には南面ウッドデッキ、2階には南バルコニーを配した陽当たり良好な室内設計です。お住まいの中心となる1階LDKはゆとりの約16帖。キッチンは人気の対面式です。各室収納のほかウォークインクロゼットや納戸、約12㎡の小屋裏収納もあり収納豊富です。
- 価格
- 9,980万円
- ローンの目安
- 26.4万円/月
- 交通
- 京王線「桜上水」駅 徒歩10分
- 建物面積(坪数)
- 82.62㎡(24.99坪)
- 間取り/専有面積
- 3LDK+1S(納戸) / 82.62㎡
お電話のお問い合わせはこちらから
03-5790-9204
営業時間:9:30~20:00
定休日:毎週/火曜日・水曜日
-
〒150-0046 東京都渋谷区松濤2丁目7-12
-
検討中リストに追加
- お問い合わせ
物件概要 Property Detail
情報の見方| 所在地 | 東京都世田谷区桜上水3丁目 | ||
|---|---|---|---|
| 交通 | |||
| 間取り/詳細 |
3LDK+1S(納戸)/ LDK 16.5帖 1室/洋室 6.7帖 1室/洋室 5.0帖 1室/洋室 4.8帖 1室/S 3.5帖 1室 |
建物面積(坪数) | 82.62㎡(24.99坪 |
| 価格 | 9,980万円 | ||
| 駐車場/月額料金 | 有(1台)/0円 | ||
| 土地の敷金/保証金 | -/- | 借地料/借地期間 | -/- |
| 土地権利 | 所有権 | 土地面積(坪数) | 83.00㎡(25.10坪) |
| 傾斜地部分面積 | - | 路地状敷地 | - |
| 私道負担面積/セットバック | -/無 | 高圧線下面積 | - |
| 地目/地勢 | 宅地/- | 接道状況 | 一方(南 公道 6.7m 間口 6.3m) |
| 建ぺい率/容積率 | 50%/100% | 用途地域 | 第一種低層住居専用 |
| 都市計画 | 市街化区域 | 種別/構造 | 新築一戸建/木造 |
| 階建 | 2階建 | 築年月(築年数) | 2024年 7月 (新築) |
| 総区画数/販売区画数 | 5区画/1区画 | 向き | 南 |
| 現況 | 完成済み | その他の法令上の制限 | 高度地区/準防火地域 |
| 取引態様/引渡時期 | 仲介/即時 | 建築確認番号 | 第R05確建0085号 |
| 物件番号 | 88517197 | 取引条件の有効期限 | 2025年11月13日 |
| 設備条件 |
|
||
| 備考 |
グローバルインクでは初期費用の一部をクレジットカードでお支払い頂けます♪ 詳しくはお気軽にお問合せご相談下さいませ。 グローバルインクがお贈りする3大無料サービスをぜひご利用ください! ●3大サービスその1 超レア!未公開・企画段階物件情報ご紹介サービス 当社ホームページより会員登録ください。ネット・メルマガにすら開示できない超レア情報をお届けします。 ●3大サービスその2 不動産購入・ミニセミナー無料受講 不動産を探し始めの方、安心購入への具体的行動プランをお教えします。 契約書、重要事項説明書などの見方、瑕疵物件の判別方法など、不利な契約から身を守り、安心な物件購入ができるようにノウハウを伝授します! **セカンド・オピニオンサービス始めました!** ●3大サービスその3 ライフプランニング相談会無料開催 安心購入の為には、住宅ローンのことだけではなく、資金的に安心できる人生設計が必要になります。 お子様の学費、住宅のリフォーム、突発的な出費、そして夢の海外旅行など、すべての資金計画を一度してみることをお勧めします。 今なら無料で専門のファイナンシャル・プランナーが御相談にあずかります。 詳しくは当社「3大無料サービス」係まで TEL:03-5790-9204 email: otoiawase@globalink.co.jp |
||
| 取扱会社 |
|
||
担当者からのメッセージ Message
【自然と利便性が調和する桜上水、ウッドデッキのある家】京王線「桜上水」駅徒歩10分、前面道路6.2mで開放感ある桜上水の新築分譲住宅です。間取りは3LDK。1階には南面ウッドデッキ、2階には南バルコニーを配した陽当たり良好な室内設計です。お住まいの中心となる1階LDKはゆとりの約16帖。キッチンは人気の対面式です。各室収納のほかウォークインクロゼットや納戸、約12㎡の小屋裏収納もあり収納豊富です。
お電話のお問い合わせはこちらから
03-5790-9204
営業時間:9:30~20:00
定休日:毎週/火曜日・水曜日
-
〒150-0046 東京都渋谷区松濤2丁目7-12
-
検討中リストに追加
- お問い合わせ
ローンシミュレーション Simulation
この物件を購入した場合の、月々の支払い価格の一例です。借り入れを保証するものではございません。
- 返済期間
-
- 金利
-
- ボーナス時の増額(1回分)
-
- 借入金額:
-
- 頭金:
-
(※元利均等方式 金利5.00%まで ※返済年数5~35年まで入力できます)
(※ボーナスは年2回で計算しています。1000万円まで入力できます)
(※物件購入時、その他諸費用が発生する場合がございます)
- 毎月の返済額
おすすめ物件 Recommended Property
-
- 世田谷区赤堤2丁目 中古戸建
- 9,980万円/3LDK/106.20㎡
- 東京都世田谷区赤堤2丁目
- 小田急小田原線「豪徳寺」駅 徒歩6分
-
- 世田谷区北烏山1丁目 中古戸建
- 9,880万円/3LDK/99.36㎡
- 東京都世田谷区北烏山1丁目
- 京王線「芦花公園」駅 徒歩7分
-
- 世田谷区野毛3丁目 新築戸建
- 9,680万円/3LDK/87.44㎡
- 東京都世田谷区野毛3丁目
- 東急大井町線「上野毛」駅 徒歩12分
-
- 世田谷区三宿2丁目 中古戸建
- 9,498万円/4LDK/81.00㎡
- 東京都世田谷区三宿2丁目
- 東急田園都市線「池尻大橋」駅 徒歩15分
-
- 世田谷区大原1丁目 中古戸建
- 1億500万円/3LDK/78.24㎡
- 東京都世田谷区大原1丁目
- 京王線「笹塚」駅 徒歩5分
周辺施設情報 Spot

- 早苗保育園
- 約228m/3分

- マダレナ・カノッサ幼稚園
- 約692m/9分

- 世田谷区立経堂小学校
- 約753m/10分

- 世田谷区立松沢中学校
- 約944m/12分

- 世田谷区立学童クラブ経堂小学校新BOP
- 約661m/9分

- 烏山川緑道桜小路
- 約1130m/15分

- 世田谷区立上北沢八幡公園
- 約169m/3分

- スーパーマーケット リコス 桜上水5丁目店
- 約674m/9分

- まいばすけっと桜上水駅南
- 約760m/10分

- ローソン 世田谷桜上水二丁目店
- 約74m/1分

- ココカラファイン 桜上水北口店
- 約880m/11分

- 倉田医院
- 約361m/5分

- ゆうちょ銀行 桜上水駅前出張所
- 約930m/12分

- 世田谷桜上水五郵便局
- 約424m/6分

- 杉並桜上水郵便局
- 約1002m/13分

- 世田谷区立上北沢図書館
- 約895m/12分

- ガスト 下高井戸駅前店
- 約1035m/13分

- 世田谷区立緑丘中学校
- 約65m/1分

- 成城警察署 桜上水交番
- 約243m/4分

- 長徳寺
- 約520m/7分
お電話のお問い合わせはこちらから
03-5790-9204
営業時間:9:30~20:00
定休日:毎週/火曜日・水曜日
-
〒150-0046 東京都渋谷区松濤2丁目7-12
-
検討中リストに追加
- お問い合わせ
※地図上に表示される物件の位置は付近住所に所在することを表すものであり、実際の物件所在地とは異なる場合がございます。













