世田谷区上祖師谷2丁目 新築戸建
京王線「千歳烏山」駅徒歩18分です。3LDK 仕様設備充実♪住宅用太陽光パネル設置予定です。広いLDKでは家族が集まり、家事の最中でも一緒の時間を過ごせる工夫がされております。明るく開放的な空間が広がる対面式のキッチンです。コミュニケーションを楽しみながらお料理でき、夫婦そろってキッチンに立っても調理がしやすいゆとりのある広さです!大きな窓からたっぷりと陽光が注がれる明るい室内もあります。
- 価格
- 8,380万円
- ローンの目安
- 22.1万円/月
- 交通
- 京王線「千歳烏山」駅 徒歩18分
- 建物面積(坪数)
- 81.76㎡(24.73坪)
- 間取り/専有面積
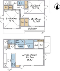
- 3LDK / 81.76㎡
お電話のお問い合わせはこちらから
03-5790-9204
営業時間:9:30~20:00
定休日:毎週/火曜日・水曜日
-
〒150-0046 東京都渋谷区松濤2丁目7-12
-
検討中リストに追加
- お問い合わせ
物件概要 Property Detail
情報の見方| 所在地 | 東京都世田谷区上祖師谷2丁目 | ||
|---|---|---|---|
| 交通 | |||
| 間取り/詳細 |
3LDK/ LDK 16.6帖 1室/洋室 7.0帖 1室/洋室 5.6帖 1室/洋室 5.1帖 1室 |
建物面積(坪数) | 81.76㎡(24.73坪 |
| 価格 | 8,380万円 | ||
| 駐車場/月額料金 | 有/0円 | ||
| 土地の敷金/保証金 | -/- | 借地料/借地期間 | -/- |
| 土地権利 | 所有権 | 土地面積(坪数) | 81.76㎡(24.73坪) |
| 傾斜地部分面積 | - | 路地状敷地 | - |
| 私道負担面積/セットバック | -/無 | 高圧線下面積 | - |
| 地目/地勢 | 宅地/- | 接道状況 | 一方(東 私道 4.0m) |
| 建ぺい率/容積率 | 50%/100% | 用途地域 | 第一種低層住居専用 |
| 都市計画 | 市街化区域 | 種別/構造 | 新築一戸建/木造 |
| 階建 | 2階建 | 築年月(築年数) | 2024年 11月 (新築) |
| 総区画数/販売区画数 | -/1区画 | 向き | - |
| 現況 | 完成済み | その他の法令上の制限 | 高度地区/準防火地域 |
| 取引態様/引渡時期 | 仲介/相談 | 建築確認番号 | - |
| 物件番号 | 94495634 | 取引条件の有効期限 | 2025年11月13日 |
| 設備条件 |
|
||
| 備考 |
グローバルインクでは初期費用の一部をクレジットカードでお支払い頂けます♪ 詳しくはお気軽にお問合せご相談下さいませ。 グローバルインクがお贈りする3大無料サービスをぜひご利用ください! ●3大サービスその1 超レア!未公開・企画段階物件情報ご紹介サービス 当社ホームページより会員登録ください。ネット・メルマガにすら開示できない超レア情報をお届けします。 ●3大サービスその2 不動産購入・ミニセミナー無料受講 不動産を探し始めの方、安心購入への具体的行動プランをお教えします。 契約書、重要事項説明書などの見方、瑕疵物件の判別方法など、不利な契約から身を守り、安心な物件購入ができるようにノウハウを伝授します! **セカンド・オピニオンサービス始めました!** ●3大サービスその3 ライフプランニング相談会無料開催 安心購入の為には、住宅ローンのことだけではなく、資金的に安心できる人生設計が必要になります。 お子様の学費、住宅のリフォーム、突発的な出費、そして夢の海外旅行など、すべての資金計画を一度してみることをお勧めします。 今なら無料で専門のファイナンシャル・プランナーが御相談にあずかります。 詳しくは当社「3大無料サービス」係まで TEL:03-5790-9204 |
||
| 取扱会社 |
|
||
担当者からのメッセージ Message
京王線「千歳烏山」駅徒歩18分です。3LDK 仕様設備充実♪住宅用太陽光パネル設置予定です。広いLDKでは家族が集まり、家事の最中でも一緒の時間を過ごせる工夫がされております。明るく開放的な空間が広がる対面式のキッチンです。コミュニケーションを楽しみながらお料理でき、夫婦そろってキッチンに立っても調理がしやすいゆとりのある広さです!大きな窓からたっぷりと陽光が注がれる明るい室内もあります。
お電話のお問い合わせはこちらから
03-5790-9204
営業時間:9:30~20:00
定休日:毎週/火曜日・水曜日
-
〒150-0046 東京都渋谷区松濤2丁目7-12
-
検討中リストに追加
- お問い合わせ
ローンシミュレーション Simulation
この物件を購入した場合の、月々の支払い価格の一例です。借り入れを保証するものではございません。
- 返済期間
-
- 金利
-
- ボーナス時の増額(1回分)
-
- 借入金額:
-
- 頭金:
-
(※元利均等方式 金利5.00%まで ※返済年数5~35年まで入力できます)
(※ボーナスは年2回で計算しています。1000万円まで入力できます)
(※物件購入時、その他諸費用が発生する場合がございます)
- 毎月の返済額
おすすめ物件 Recommended Property
-
- 世田谷区奥沢7丁目 新築戸建
- 8,480万円/4LDK/99.99㎡
- 東京都世田谷区奥沢7丁目
- 東急大井町線「九品仏」駅 徒歩2分
-
- 世田谷区中町3丁目 借地権付き中古戸建
- 8,500万円/4LDK/152.01㎡
- 東京都世田谷区中町3丁目
- 東急大井町線「等々力」駅 徒歩10分
-
- 世田谷区南烏山5丁目 中古戸建
- 8,500万円/3LDK/110.52㎡
- 東京都世田谷区南烏山5丁目
- 京王線「千歳烏山」駅 徒歩7分
-
- 世田谷区上祖師谷6丁目 新築戸建
- 8,880万円/3LDK/91.08㎡
- 東京都世田谷区上祖師谷6丁目
- 京王線「千歳烏山」駅 徒歩12分
-
- 世田谷区上馬2丁目 中古戸建
- 8,980万円/2LDK/83.59㎡
- 東京都世田谷区上馬2丁目
- 東急田園都市線「三軒茶屋」駅 徒歩10分
周辺施設情報 Spot

- 安穏寺
- 約147m/2分

- 祖師谷保育園
- 約82m/2分

- 上祖師谷二丁目公園
- 約139m/2分

- 上祖師谷出張所
- 約176m/3分

- 世田谷上祖師谷二郵便局
- 約208m/3分

- 祖師谷えのき広場
- 約250m/4分

- マムザヘッジホッグ
- 約238m/3分

- 世田谷区立上祖師谷三丁目公園
- 約204m/3分

- セブン-イレブン 世田谷榎店
- 約268m/4分

- 栄寿し総本店
- 約268m/4分

- 祖師谷公園テニスコート
- 約200m/3分

- 駒澤大学硬式野球部グラウンド
- 約220m/3分

- 世田谷つくしんぼ保育園
- 約295m/4分

- 香川内科クリニック
- 約409m/6分

- 長太稲荷神社
- 約468m/6分

- ゲートボール場
- 約640m/8分

- 茶々そしがやこうえん保育園 分園 Park side
- 約617m/8分

- 成城警察署 上祖師谷駐在所
- 約510m/7分

- ファミリーマート 世田谷成城通り店
- 約493m/7分

- セブン-イレブン 世田谷上祖師谷4丁目店
- 約568m/8分
お電話のお問い合わせはこちらから
03-5790-9204
営業時間:9:30~20:00
定休日:毎週/火曜日・水曜日
-
〒150-0046 東京都渋谷区松濤2丁目7-12
-
検討中リストに追加
- お問い合わせ
※地図上に表示される物件の位置は付近住所に所在することを表すものであり、実際の物件所在地とは異なる場合がございます。













