杉並区西荻北1丁目 中古戸建
JR総武線・JR中央線「西荻窪」駅徒歩12分です。3SLDK!使い勝手の良い間取りです。木造・鉄板コンクリート造になっております。広々とした空間がとても魅力的です。付近には、コンビニ・スーパーなどありますので、生活環境も非常に整っております。また、最寄りの「西荻窪」駅は都心へのアクセスが良好でありながら、落ち着いた住宅街と個性的な商店街が共存する魅力的なエリアです。
- 価格
- 1億4,300万円
- ローンの目安
- 37.8万円/月
- 交通
- 総武線「西荻窪」駅 徒歩12分
- 建物面積(坪数)
- 164.67㎡(49.81坪)
- 間取り/専有面積
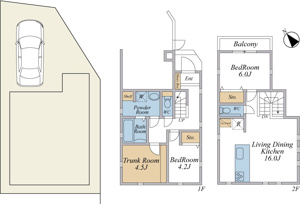
- 3LDK+1S(納戸) / 164.67㎡
お電話のお問い合わせはこちらから
03-5790-9204
営業時間:9:30~20:00
定休日:毎週/火曜日・水曜日
-
〒150-0046 東京都渋谷区松濤2丁目7-12
-
検討中リストに追加
- お問い合わせ
物件概要 Property Detail
情報の見方| 所在地 | 東京都杉並区西荻北1丁目 | ||
|---|---|---|---|
| 交通 | |||
| 間取り/詳細 |
3LDK+1S(納戸)/ LDK 20.1帖 1室/洋室 10.5帖 1室/洋室 7.6帖 1室/洋室 6.3帖 1室/S 5.5帖 1室 |
建物面積(坪数) | 164.67㎡(49.81坪 |
| 価格 | 1億4,300万円 | ||
| 駐車場/月額料金 | 有/0円 | ||
| 土地の敷金/保証金 | -/- | 借地料/借地期間 | -/- |
| 土地権利 | 所有権 | 土地面積(坪数) | 93.50㎡(28.28坪) |
| 傾斜地部分面積 | - | 路地状敷地 | - |
| 私道負担面積/セットバック | -/無 | 高圧線下面積 | - |
| 地目/地勢 | 宅地/傾斜地 | 接道状況 | 一方(東 公道 5.4m 間口 7.8m) |
| 建ぺい率/容積率 | 60%/200% | 用途地域 | 第一種中高層住居専用 |
| 都市計画 | 市街化区域 | 種別/構造 | 中古一戸建/木造 |
| 階建 | 2階建 地下1階 | 築年月(築年数) | 2006年 3月 (築19年) |
| 総区画数/販売区画数 | -/1区画 | 向き | 南 |
| 現況 | 居住中 | その他の法令上の制限 | - |
| 取引態様/引渡時期 | 仲介/相談 | 建築確認番号 | - |
| 物件番号 | 95901979 | 取引条件の有効期限 | 2026年01月29日 |
| 設備条件 |
|
||
| 備考 |
グローバルインクでは初期費用の一部をクレジットカードでお支払い頂けます♪ 詳しくはお気軽にお問合せご相談下さいませ。 グローバルインクがお贈りする3大無料サービスをぜひご利用ください! ●3大サービスその1 超レア!未公開・企画段階物件情報ご紹介サービス 当社ホームページより会員登録ください。ネット・メルマガにすら開示できない超レア情報をお届けします。 ●3大サービスその2 不動産購入・ミニセミナー無料受講 不動産を探し始めの方、安心購入への具体的行動プランをお教えします。 契約書、重要事項説明書などの見方、瑕疵物件の判別方法など、不利な契約から身を守り、安心な物件購入ができるようにノウハウを伝授します! **セカンド・オピニオンサービス始めました!** ●3大サービスその3 ライフプランニング相談会無料開催 安心購入の為には、住宅ローンのことだけではなく、資金的に安心できる人生設計が必要になります。 お子様の学費、住宅のリフォーム、突発的な出費、そして夢の海外旅行など、すべての資金計画を一度してみることをお勧めします。 今なら無料で専門のファイナンシャル・プランナーが御相談にあずかります。 詳しくは当社「3大無料サービス」係まで TEL:03-5790-9204 |
||
| 取扱会社 |
|
||
担当者からのメッセージ Message
JR総武線・JR中央線「西荻窪」駅徒歩12分です。3SLDK!使い勝手の良い間取りです。木造・鉄板コンクリート造になっております。広々とした空間がとても魅力的です。付近には、コンビニ・スーパーなどありますので、生活環境も非常に整っております。また、最寄りの「西荻窪」駅は都心へのアクセスが良好でありながら、落ち着いた住宅街と個性的な商店街が共存する魅力的なエリアです。
お電話のお問い合わせはこちらから
03-5790-9204
営業時間:9:30~20:00
定休日:毎週/火曜日・水曜日
-
〒150-0046 東京都渋谷区松濤2丁目7-12
-
検討中リストに追加
- お問い合わせ
ローンシミュレーション Simulation
この物件を購入した場合の、月々の支払い価格の一例です。借り入れを保証するものではございません。
- 返済期間
-
- 金利
-
- ボーナス時の増額(1回分)
-
- 借入金額:
-
- 頭金:
-
(※元利均等方式 金利5.00%まで ※返済年数5~35年まで入力できます)
(※ボーナスは年2回で計算しています。1000万円まで入力できます)
(※物件購入時、その他諸費用が発生する場合がございます)
- 毎月の返済額
おすすめ物件 Recommended Property
-
- 杉並区和田2丁目 中古戸建
- 1億3,900万円/4LDK/139.74㎡
- 東京都杉並区和田2丁目
- 丸ノ内線「東高円寺」駅 徒歩11分
-
- 杉並区浜田山1丁目 新築戸建
- 1億3,390万円/3LDK/79.28㎡
- 東京都杉並区浜田山1丁目
- 京王井の頭線「西永福」駅 徒歩10分
-
- 杉並区松庵1丁目 中古戸建
- 1億950万円/3LDK/86.72㎡
- 東京都杉並区松庵1丁目
- 京王井の頭線「三鷹台」駅 徒歩7分
-
- 杉並区上荻3丁目 新築戸建
- 9,990万円/3LDK/67.79㎡
- 東京都杉並区上荻3丁目
- 中央線「荻窪」駅 徒歩14分
-
- 杉並区和泉2丁目 中古戸建
- 9,980万円/3LDK/91.19㎡
- 東京都杉並区和泉2丁目
- 京王線「代田橋」駅 徒歩11分
周辺施設情報 Spot

- ベネッセ 学童クラブ西荻窪
- 約143m/2分

- ミニコープ 西荻店
- 約117m/2分

- セブン-イレブン 杉並西荻南3丁目店
- 約240m/3分

- 西荻窪きらきら保育園
- 約267m/4分

- 杉並区立西荻わかば公園
- 約259m/4分

- おぎ緑地
- 約321m/5分

- ミニストップ 南荻窪3丁目店
- 約347m/5分

- 杉並区立西荻北子供園
- 約354m/5分

- 西荻図書館
- 約496m/7分

- 杉並区立桃井第三小学校
- 約359m/5分

- セブン-イレブン 西荻北2丁目店
- 約498m/7分

- 西荻ゴルフセンター
- 約593m/8分

- 西荻学園幼稚園
- 約519m/7分

- マクドナルド 西荻窪店
- 約579m/8分

- サイゼリヤ 西荻マイロード店
- 約580m/8分

- 地産マルシェ 西荻窪店
- 約565m/8分

- 三井住友銀行西荻窪支店
- 約632m/8分

- ガスト西荻窪駅前店
- 約591m/8分

- カルディコーヒーファーム 西荻窪店
- 約621m/8分

- ダイソー西荻南店
- 約672m/9分
お電話のお問い合わせはこちらから
03-5790-9204
営業時間:9:30~20:00
定休日:毎週/火曜日・水曜日
-
〒150-0046 東京都渋谷区松濤2丁目7-12
-
検討中リストに追加
- お問い合わせ
※地図上に表示される物件の位置は付近住所に所在することを表すものであり、実際の物件所在地とは異なる場合がございます。













