【THE SELOSSE代々木上原 Ⅱstage】渋谷区西原2丁目 建築条件付き土地
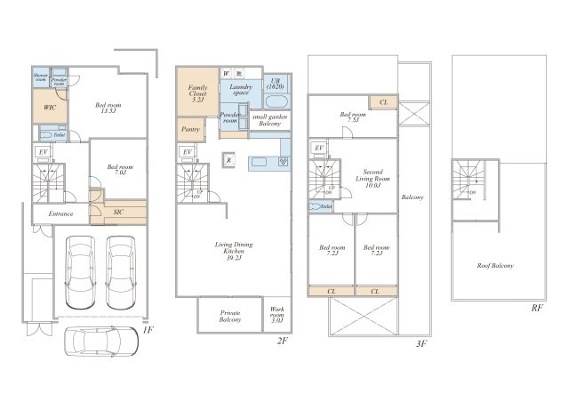
【角地ライク、50坪以上、高台、南道路】小田急線・千代田線「代々木上原」駅徒歩7分。京王線「幡ヶ谷」は徒歩9分で2駅3路線利用可。高台に立地+南東側道路で陽当り・通風良好です。本地東側には隣地通路×2があり、角地ライクな開放感があります。敷地面積170平米(50坪以上)の大型地につき、建物面積289平米の邸宅が建築可能。LDK39帖以上+駐車3台+ウッドデッキ+ルーバル付5LLDKプランあり。
- 価格
- 3億4,800万円
- ローンの目安
- 91.9万円/月
- 交通
- 千代田線「代々木上原」駅 徒歩7分
- 土地面積(坪数)
- 170.00㎡(-)
お電話のお問い合わせはこちらから
03-5790-9204
営業時間:9:30~20:00
定休日:毎週/火曜日・水曜日
-
〒150-0046 東京都渋谷区松濤2丁目7-12
-
検討中リストに追加
- お問い合わせ
物件概要 Property Detail
情報の見方| 所在地 | 東京都渋谷区西原2丁目 | ||
|---|---|---|---|
| 交通 | |||
| 価格 | 3億4,800万円 | ||
| 土地の敷金/保証金 | -/- | 借地料/借地期間 | -/- |
| 土地面積(坪数) | 170.00㎡(51.42坪) | 坪単価 | 676.78万円 |
| 私道負担面積/セットバック | -/無 | 高圧線下面積 | - |
| 傾斜地部分面積 | - | 路地状敷地 | - |
| 土地権利 | 所有権 | 接道状況 | 一方(南 私道 4.0m) |
| 都市計画 | 市街化区域 | 用途地域 | 第一種低層住居専用 |
| 建築条件 | 有 | 地目/地勢 | 宅地/高台 |
| 建ぺい率 | 60% | 容積率 | 150% |
| 総区画数 | 2区画 | 販売区画数 | 2区画 |
| 国土法届出要否 | 不要 | その他の法令上の制限 | - |
| 取引態様 | 仲介 | 現況 | 古家有 |
| 引渡時期 | 相談 | 引渡条件 | 更地渡 |
| 最適用途 | 住宅用地 | ||
| 物件番号 | 97983171 | ||
| 設備条件 |
|
取引条件の有効期限 | 2026年02月18日 |
| 備考 |
グローバルインクでは初期費用の一部をクレジットカードでお支払い頂けます♪ 詳しくはお気軽にお問合せご相談下さいませ。 グローバルインクがお贈りする3大無料サービスをぜひご利用ください! ●3大サービスその1 超レア!未公開・企画段階物件情報ご紹介サービス 当社ホームページより会員登録ください。ネット・メルマガにすら開示できない超レア情報をお届けします。 ●3大サービスその2 不動産購入・ミニセミナー無料受講 不動産を探し始めの方、安心購入への具体的行動プランをお教えします。 契約書、重要事項説明書などの見方、瑕疵物件の判別方法など、不利な契約から身を守り、安心な物件購入ができるようにノウハウを伝授します! **セカンド・オピニオンサービス始めました!** ●3大サービスその3 ライフプランニング相談会無料開催 安心購入の為には、住宅ローンのことだけではなく、資金的に安心できる人生設計が必要になります。 お子様の学費、住宅のリフォーム、突発的な出費、そして夢の海外旅行など、すべての資金計画を一度してみることをお勧めします。 今なら無料で専門のファイナンシャル・プランナーが御相談にあずかります。 詳しくは当社「3大無料サービス」係まで TEL:03-5790-9204 |
||
| 取扱会社 |
|
||
担当者からのメッセージ Message
【角地ライク、50坪以上、高台、南道路】小田急線・千代田線「代々木上原」駅徒歩7分。京王線「幡ヶ谷」は徒歩9分で2駅3路線利用可。高台に立地+南東側道路で陽当り・通風良好です。本地東側には隣地通路×2があり、角地ライクな開放感があります。敷地面積170平米(50坪以上)の大型地につき、建物面積289平米の邸宅が建築可能。LDK39帖以上+駐車3台+ウッドデッキ+ルーバル付5LLDKプランあり。
小田急線・千代田線「代々木上原」駅徒歩7分。京王線「幡ヶ谷」は徒歩9分で2駅3路線利用可。保育施設や小学校徒歩5分以内。「ダイエー」など徒歩8分以内に買物施設豊富で便利です。
お電話のお問い合わせはこちらから
03-5790-9204
営業時間:9:30~20:00
定休日:毎週/火曜日・水曜日
-
〒150-0046 東京都渋谷区松濤2丁目7-12
-
検討中リストに追加
- お問い合わせ
ローンシミュレーション Simulation
この物件を購入した場合の、月々の支払い価格の一例です。借り入れを保証するものではございません。
- 返済期間
-
- 金利
-
- ボーナス時の増額(1回分)
-
- 借入金額:
-
- 頭金:
-
(※元利均等方式 金利5.00%まで ※返済年数5~35年まで入力できます)
(※ボーナスは年2回で計算しています。1000万円まで入力できます)
(※物件購入時、その他諸費用が発生する場合がございます)
- 毎月の返済額
おすすめ物件 Recommended Property
-
- 渋谷区東2丁目 建築条件なし土地
- 3億2,800万円/-/126.59㎡
- 東京都渋谷区東2丁目
- 山手線「渋谷」駅 徒歩11分
-
- 渋谷区猿楽町 建築条件なし土地
- 2億8,800万円/-/95.91㎡
- 東京都渋谷区猿楽町
- 東急東横線「代官山」駅 徒歩4分
-
- 渋谷区神泉町 建築条件なし土地
- 2億5,100万円/-/70.10㎡
- 東京都渋谷区神泉町
- 山手線「渋谷」駅 徒歩10分
-
- 渋谷区神宮前3丁目 建築条件なし土地
- 2億2,000万円/-/52.56㎡
- 東京都渋谷区神宮前3丁目
- 千代田線「表参道」駅 徒歩9分
-
- 渋谷区上原2丁目 建築条件なし土地
- 4億8,800万円/-/183.84㎡
- 東京都渋谷区上原2丁目
- 千代田線「代々木上原」駅 徒歩9分
周辺施設情報 Spot

- 西原二丁目児童遊園地
- 約75m/1分

- 渋谷区立西原小学校
- 約223m/3分

- 西原りとるぱんぷきんず
- 約158m/2分

- 渋谷区立西原どんぐり公園
- 約262m/4分

- 西原りとるぱんぷきんずANNEX
- 約167m/3分

- セブンイレブン渋谷西原1丁目店
- 約287m/4分

- トモズ幡ヶ谷店
- 約532m/7分

- ダイエー幡ケ谷店
- 約574m/8分

- OdakyuOX代々木上原店
- 約526m/7分

- 西原ゴルフガーデン
- 約349m/5分

- 渋谷区立西原図書館
- 約355m/5分

- 福田幼稚園
- 約362m/5分

- 幡ヶ谷南郵便局
- 約547m/7分

- 西原いこい公園
- 約317m/4分

- さくらさくみらい 西原
- 約340m/5分

- 渋谷区スポーツセンター
- 約314m/4分

- 代々木中学校
- 約533m/7分

- ドトールコーヒーショップ 幡ヶ谷店
- 約548m/7分

- マクドナルド 幡ヶ谷ゴールデンセンター店
- 約663m/9分

- なか卯代々木上原店
- 約526m/7分
お電話のお問い合わせはこちらから
03-5790-9204
営業時間:9:30~20:00
定休日:毎週/火曜日・水曜日
-
〒150-0046 東京都渋谷区松濤2丁目7-12
-
検討中リストに追加
- お問い合わせ
※地図上に表示される物件の位置は付近住所に所在することを表すものであり、実際の物件所在地とは異なる場合がございます。













