渋谷区広尾3丁目 建築条件なし土地
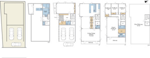
【「広尾3丁目」アドレス、50坪以上、整形地、高台】日赤医療センター徒歩4分。高台の豪邸街。広尾・表参道エリアでプラチナライフを。建物面積400平米以上の大型建築可。LDK54帖+主寝室24帖+ルーバル65帖+駐車3台の建物参考プランあり。整形地につき間取プランの自由度が高く、お好みの間取が実現可能。建築条件はありません。お好きなハウスメーカーや工務店にて理想の建物をトコトン追求していただけます。
- 価格
- 5億5,800万円
- ローンの目安
- 147.3万円/月
- 交通
- 千代田線「表参道」駅 徒歩14分
- 土地面積(坪数)
- 171.04㎡(-)
お電話のお問い合わせはこちらから
03-5790-9204
営業時間:9:30~20:00
定休日:毎週/火曜日・水曜日
-
〒150-0046 東京都渋谷区松濤2丁目7-12
-
検討中リストに追加
- お問い合わせ
物件概要 Property Detail
情報の見方| 所在地 | 東京都渋谷区広尾3丁目 | ||
|---|---|---|---|
| 交通 | |||
| 価格 | 5億5,800万円 | ||
| 土地の敷金/保証金 | -/- | 借地料/借地期間 | -/- |
| 土地面積(坪数) | 171.04㎡(51.73坪) | 坪単価 | 1078.68万円 |
| 私道負担面積/セットバック | -/要 16.43㎡ | 高圧線下面積 | - |
| 傾斜地部分面積 | - | 路地状敷地 | - |
| 土地権利 | 所有権 | 接道状況 | 一方(東 私道 4.0m) |
| 都市計画 | 市街化区域 | 用途地域 | 第二種中高層住居専用 |
| 建築条件 | 無 | 地目/地勢 | 宅地/平坦 |
| 建ぺい率 | 60% | 容積率 | 300% |
| 総区画数 | 1区画 | 販売区画数 | 1区画 |
| 国土法届出要否 | 不要 | その他の法令上の制限 | 高度地区/準防火地域/文教地区 |
| 取引態様 | 仲介 | 現況 | 更地 |
| 引渡時期 | 相談 | 引渡条件 | 更地渡 |
| 最適用途 | 住宅用地 | ||
| 物件番号 | 98316688 | ||
| 設備条件 |
|
取引条件の有効期限 | 2025年11月24日 |
| 備考 |
グローバルインクでは初期費用の一部をクレジットカードでお支払い頂けます♪ 詳しくはお気軽にお問合せご相談下さいませ。 グローバルインクがお贈りする3大無料サービスをぜひご利用ください! ●3大サービスその1 超レア!未公開・企画段階物件情報ご紹介サービス 当社ホームページより会員登録ください。ネット・メルマガにすら開示できない超レア情報をお届けします。 ●3大サービスその2 不動産購入・ミニセミナー無料受講 不動産を探し始めの方、安心購入への具体的行動プランをお教えします。 契約書、重要事項説明書などの見方、瑕疵物件の判別方法など、不利な契約から身を守り、安心な物件購入ができるようにノウハウを伝授します! **セカンド・オピニオンサービス始めました!** ●3大サービスその3 ライフプランニング相談会無料開催 安心購入の為には、住宅ローンのことだけではなく、資金的に安心できる人生設計が必要になります。 お子様の学費、住宅のリフォーム、突発的な出費、そして夢の海外旅行など、すべての資金計画を一度してみることをお勧めします。 今なら無料で専門のファイナンシャル・プランナーが御相談にあずかります。 詳しくは当社「3大無料サービス」係まで TEL:03-5790-9204 |
||
| 取扱会社 |
|
||
担当者からのメッセージ Message
【「広尾3丁目」アドレス、50坪以上、整形地、高台】日赤医療センター徒歩4分。高台の豪邸街。広尾・表参道エリアでプラチナライフを。建物面積400平米以上の大型建築可。LDK54帖+主寝室24帖+ルーバル65帖+駐車3台の建物参考プランあり。整形地につき間取プランの自由度が高く、お好みの間取が実現可能。建築条件はありません。お好きなハウスメーカーや工務店にて理想の建物をトコトン追求していただけます。
千代田線「表参道」駅徒歩14分。ビッグターミナル「渋谷」徒歩16分で都内アクセス良好です。保育施設や小学校が徒歩8分以内。スーパーやコンビニが徒歩5分以内で買物便利です。
お電話のお問い合わせはこちらから
03-5790-9204
営業時間:9:30~20:00
定休日:毎週/火曜日・水曜日
-
〒150-0046 東京都渋谷区松濤2丁目7-12
-
検討中リストに追加
- お問い合わせ
ローンシミュレーション Simulation
この物件を購入した場合の、月々の支払い価格の一例です。借り入れを保証するものではございません。
- 返済期間
-
- 金利
-
- ボーナス時の増額(1回分)
-
- 借入金額:
-
- 頭金:
-
(※元利均等方式 金利5.00%まで ※返済年数5~35年まで入力できます)
(※ボーナスは年2回で計算しています。1000万円まで入力できます)
(※物件購入時、その他諸費用が発生する場合がございます)
- 毎月の返済額
おすすめ物件 Recommended Property
-
- 渋谷区上原2丁目 建築条件なし土地
- 4億8,800万円/-/183.84㎡
- 東京都渋谷区上原2丁目
- 千代田線「代々木上原」駅 徒歩9分
-
- 【THE SELOSSE代々木上原 Ⅱstage】渋谷区西原2丁目 建築条件付き土地
- 3億4,800万円/-/170.00㎡
- 東京都渋谷区西原2丁目
- 千代田線「代々木上原」駅 徒歩7分
-
- 【THE SELOSSE代々木上原 Ⅱstage】渋谷区西原2丁目 建築条件なし土地
- 3億4,800万円/-/170.00㎡
- 東京都渋谷区西原2丁目
- 千代田線「代々木上原」駅 徒歩7分
-
- 渋谷区南平台町 建築条件付き土地
- 7億7,000万円/-/182.50㎡
- 東京都渋谷区南平台町
- 山手線「渋谷」駅 徒歩10分
-
- 渋谷区東3丁目 建築条件なし土地
- 2億4,450万円/-/115.50㎡
- 東京都渋谷区東3丁目
- 山手線「恵比寿」駅 徒歩6分
周辺施設情報 Spot

- セブン-イレブン 渋谷東4丁目店
- 約157m/2分

- 渋谷東ちとせ保育園
- 約234m/3分

- 渋谷区立若羽児童遊園地
- 約270m/4分

- 広尾中学校
- 約318m/4分

- マルエツプチ南青山七丁目店
- 約339m/5分

- 南青山7丁目緑地
- 約358m/5分

- 渋谷広尾四郵便局
- 約437m/6分

- 渋谷区立広尾小学校
- 約585m/8分

- 日本赤十字社医療センター
- 約398m/5分

- 広尾中学校
- 約240m/3分

- 東京女学館小学校
- 約231m/3分

- 東京女学館中学校・高等学校
- 約231m/3分

- 山種美術館
- 約347m/5分

- タリーズコーヒー日本赤十字社医療センター店
- 約355m/5分

- 東京都立広尾高等学校
- 約434m/6分

- 渋谷氷川神社
- 約375m/5分

- セブン‐イレブン港区南青山7丁目店
- 約434m/6分

- 渋谷区立広尾第二児童遊園地
- 約498m/7分

- ナチュラルローソン 港日赤通り店
- 約563m/8分

- Laurus International School of Science (青山校)
- 約512m/7分
お電話のお問い合わせはこちらから
03-5790-9204
営業時間:9:30~20:00
定休日:毎週/火曜日・水曜日
-
〒150-0046 東京都渋谷区松濤2丁目7-12
-
検討中リストに追加
- お問い合わせ
※地図上に表示される物件の位置は付近住所に所在することを表すものであり、実際の物件所在地とは異なる場合がございます。













