杉並区高円寺南4丁目 新築戸建
【JR「高円寺」徒歩3分、LDK18帖以上、設備仕様充実】JR中央・総武線「高円寺」駅徒歩3分。新宿駅まで最短7分の利便性に富んだ暮らし。南東向きにつき陽当り・通風良好です。建物面積95平米以上。LDK18帖以上+主寝室7帖以上の車庫付3LDKプランです。エコジョーズ搭載の省エネ基準適合住宅。宅配ボックス、食洗器、床暖房などQOLを上げる便利な設備仕様が充実。WIC×3で家中すっきり片付きます。
- 価格
- 1億999万円
- ローンの目安
- 29万円/月
- 交通
- 中央線「高円寺」駅 徒歩3分
- 建物面積(坪数)
- 95.24㎡(28.81坪)
- 間取り/専有面積
- 3LDK / 95.24㎡
お電話のお問い合わせはこちらから
03-5790-9204
営業時間:9:30~20:00
定休日:毎週/火曜日・水曜日
-
〒150-0046 東京都渋谷区松濤2丁目7-12
-
検討中リストに追加
- お問い合わせ
物件概要 Property Detail
情報の見方| 所在地 | 東京都杉並区高円寺南4丁目 | ||
|---|---|---|---|
| 交通 | |||
| 間取り/詳細 |
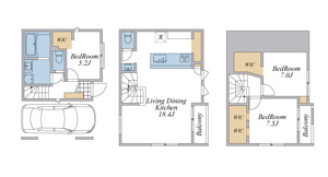
3LDK/ LDK 18.4帖 1室/洋室 7.5帖 1室/洋室 7.0帖 1室/洋室 5.2帖 1室 |
建物面積(坪数) | 95.24㎡(28.81坪 |
| 価格 | 1億999万円 | ||
| 駐車場/月額料金 | 有(1台)/0円 | ||
| 土地の敷金/保証金 | -/- | 借地料/借地期間 | -/- |
| 土地権利 | 所有権 | 土地面積(坪数) | 50.82㎡(15.37坪) |
| 傾斜地部分面積 | - | 路地状敷地 | - |
| 私道負担面積/セットバック | -/要 | 高圧線下面積 | - |
| 地目/地勢 | 宅地/平坦 | 接道状況 | 一方(南東 公道 3.6m) |
| 建ぺい率/容積率 | 60%/150% | 用途地域 | 近隣商業 |
| 都市計画 | 市街化区域 | 種別/構造 | 新築一戸建/木造 |
| 階建 | 3階建 | 築年月(築年数) | 2026年 3月 (予定) |
| 総区画数/販売区画数 | 1区画/1区画 | 向き | 南東 |
| 現況 | 未完成 | その他の法令上の制限 | 高度地区/準防火地域 |
| 取引態様/引渡時期 | 仲介/相談 | 建築確認番号 | 第2025確認建築CIAS00970号 |
| 物件番号 | 98417740 | 取引条件の有効期限 | 2025年11月27日 |
| 設備条件 |
|
||
| 備考 |
グローバルインクでは初期費用の一部をクレジットカードでお支払い頂けます♪ 詳しくはお気軽にお問合せご相談下さいませ。 グローバルインクがお贈りする3大無料サービスをぜひご利用ください! ●3大サービスその1 超レア!未公開・企画段階物件情報ご紹介サービス 当社ホームページより会員登録ください。ネット・メルマガにすら開示できない超レア情報をお届けします。 ●3大サービスその2 不動産購入・ミニセミナー無料受講 不動産を探し始めの方、安心購入への具体的行動プランをお教えします。 契約書、重要事項説明書などの見方、瑕疵物件の判別方法など、不利な契約から身を守り、安心な物件購入ができるようにノウハウを伝授します! **セカンド・オピニオンサービス始めました!** ●3大サービスその3 ライフプランニング相談会無料開催 安心購入の為には、住宅ローンのことだけではなく、資金的に安心できる人生設計が必要になります。 お子様の学費、住宅のリフォーム、突発的な出費、そして夢の海外旅行など、すべての資金計画を一度してみることをお勧めします。 今なら無料で専門のファイナンシャル・プランナーが御相談にあずかります。 詳しくは当社「3大無料サービス」係まで TEL:03-5790-9204 |
||
| 取扱会社 |
|
||
担当者からのメッセージ Message
【JR「高円寺」徒歩3分、LDK18帖以上、設備仕様充実】JR中央・総武線「高円寺」駅徒歩3分。新宿駅まで最短7分の利便性に富んだ暮らし。南東向きにつき陽当り・通風良好です。建物面積95平米以上。LDK18帖以上+主寝室7帖以上の車庫付3LDKプランです。エコジョーズ搭載の省エネ基準適合住宅。宅配ボックス、食洗器、床暖房などQOLを上げる便利な設備仕様が充実。WIC×3で家中すっきり片付きます。
JR中央・総武線「高円寺」駅徒歩3分。ビッグターミナル「新宿」まで一本の好アクセスです。「高円寺学園」まで徒歩5分の子育て環境。大型スーパー2店舗が徒歩7分で買物便利です。
お電話のお問い合わせはこちらから
03-5790-9204
営業時間:9:30~20:00
定休日:毎週/火曜日・水曜日
-
〒150-0046 東京都渋谷区松濤2丁目7-12
-
検討中リストに追加
- お問い合わせ
ローンシミュレーション Simulation
この物件を購入した場合の、月々の支払い価格の一例です。借り入れを保証するものではございません。
- 返済期間
-
- 金利
-
- ボーナス時の増額(1回分)
-
- 借入金額:
-
- 頭金:
-
(※元利均等方式 金利5.00%まで ※返済年数5~35年まで入力できます)
(※ボーナスは年2回で計算しています。1000万円まで入力できます)
(※物件購入時、その他諸費用が発生する場合がございます)
- 毎月の返済額
おすすめ物件 Recommended Property
-
- 杉並区成田東2丁目 新築戸建
- 9,799万円/4LDK/119.65㎡
- 東京都杉並区成田東2丁目
- 京王井の頭線「西永福」駅 徒歩17分
-
- 杉並区上荻3丁目 新築戸建
- 1億2,300万円/2LDK/80.33㎡
- 東京都杉並区上荻3丁目
- 中央線「荻窪」駅 徒歩14分
-
- 杉並区成田東1丁目 新築戸建
- 8,980万円/4LDK/88.28㎡
- 東京都杉並区成田東1丁目
- 丸ノ内線「南阿佐ケ谷」駅 徒歩14分
-
- 杉並区和田2丁目 中古戸建
- 1億3,900万円/4LDK/139.74㎡
- 東京都杉並区和田2丁目
- 丸ノ内線「東高円寺」駅 徒歩11分
-
- 杉並区阿佐谷北6丁目 新築戸建
- 7,880万円/3LDK/80.83㎡
- 東京都杉並区阿佐谷北6丁目
- 西武新宿線「鷺ノ宮」駅 徒歩12分
周辺施設情報 Spot

- 高円寺南保育園
- 約95m/2分

- セブン-イレブン 高円寺駅東店
- 約149m/2分

- ファミリーマート 高円寺南店
- 約133m/2分

- 高円寺北児童館
- 約266m/4分

- ピノキオ幼児舎 杉並区保育室高円寺
- 約177m/3分

- オーケー 高円寺店
- 約265m/4分

- オリンピック 高円寺店
- 約342m/5分

- 杉並区立高円寺学園高円寺小学校
- 約338m/5分

- 高円寺氷川神社
- 約211m/3分

- ローソン 杉並高円寺駅入口店
- 約156m/2分

- 三井住友銀行 高円寺支店
- 約249m/4分

- 高円寺北口広場
- 約233m/3分

- りそな銀行 高円寺支店
- 約315m/4分

- 杉並区立高円寺北子供園
- 約266m/4分

- サンドラッグ高円寺店
- 約355m/5分

- 高円寺駅前郵便局
- 約402m/6分

- 高円寺中央児童館
- 約415m/6分

- ツルハドラッグ高円寺店
- 約429m/6分

- 高円寺中央通郵便局
- 約481m/7分
お電話のお問い合わせはこちらから
03-5790-9204
営業時間:9:30~20:00
定休日:毎週/火曜日・水曜日
-
〒150-0046 東京都渋谷区松濤2丁目7-12
-
検討中リストに追加
- お問い合わせ
※地図上に表示される物件の位置は付近住所に所在することを表すものであり、実際の物件所在地とは異なる場合がございます。













