大田区南馬込3丁目 建築条件付き土地
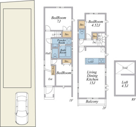
【京浜東北線沿線エリア、大森駅徒歩15分の陽当たり良好な南向き整形地】「大森」駅徒歩15分。京浜東北線沿線なので都心は勿論、埼玉・神奈川へもアクセス優秀です。浅草線の始発駅「西馬込」も利用可能で通勤・通学に便利。大田区南馬込の閑静な1種低層住宅地に位置する南向き整形地です。15帖LDK+3室+ロフト+駐車場も実現可能です。スーパー、コンビニ、総合病院、小中学校などが徒歩10分圏内に揃っています。
お電話のお問い合わせはこちらから
03-5790-9204
営業時間:9:30~20:00
定休日:毎週/火曜日・水曜日
-
〒150-0046 東京都渋谷区松濤2丁目7-12
-
検討中リストに追加
- お問い合わせ
物件概要 Property Detail
情報の見方| 所在地 | 東京都大田区南馬込3丁目 | ||
|---|---|---|---|
| 交通 | |||
| 価格 | 7,464万円 | ||
| 土地の敷金/保証金 | -/- | 借地料/借地期間 | -/- |
| 土地面積(坪数) | 77.03㎡(23.30坪) | 坪単価 | 320.34万円 |
| 私道負担面積/セットバック | -/無 | 高圧線下面積 | - |
| 傾斜地部分面積 | - | 路地状敷地 | - |
| 土地権利 | 所有権 | 接道状況 | 一方(南 公道 4.6m 間口 4.6m) |
| 都市計画 | 市街化区域 | 用途地域 | 第一種低層住居専用 |
| 建築条件 | 有 | 地目/地勢 | 宅地/- |
| 建ぺい率 | 50% | 容積率 | 100% |
| 総区画数 | 2区画 | 販売区画数 | 1区画 |
| 国土法届出要否 | 不要 | その他の法令上の制限 | 高度地区/準防火地域 |
| 取引態様 | 仲介 | 現況 | 古家有 |
| 引渡時期 | 相談 | 引渡条件 | 相談 |
| 最適用途 | 住宅用地 | ||
| 物件番号 | 98690210 | ||
| 設備条件 |
|
取引条件の有効期限 | 2025年11月20日 |
| 備考 |
グローバルインクでは初期費用の一部をクレジットカードでお支払い頂けます♪ 詳しくはお気軽にお問合せご相談下さいませ。 グローバルインクがお贈りする3大無料サービスをぜひご利用ください! ●3大サービスその1 超レア!未公開・企画段階物件情報ご紹介サービス 当社ホームページより会員登録ください。ネット・メルマガにすら開示できない超レア情報をお届けします。 ●3大サービスその2 不動産購入・ミニセミナー無料受講 不動産を探し始めの方、安心購入への具体的行動プランをお教えします。 契約書、重要事項説明書などの見方、瑕疵物件の判別方法など、不利な契約から身を守り、安心な物件購入ができるようにノウハウを伝授します! **セカンド・オピニオンサービス始めました!** ●3大サービスその3 ライフプランニング相談会無料開催 安心購入の為には、住宅ローンのことだけではなく、資金的に安心できる人生設計が必要になります。 お子様の学費、住宅のリフォーム、突発的な出費、そして夢の海外旅行など、すべての資金計画を一度してみることをお勧めします。 今なら無料で専門のファイナンシャル・プランナーが御相談にあずかります。 詳しくは当社「3大無料サービス」係まで TEL:03-5790-9204 |
||
| 取扱会社 |
|
||
担当者からのメッセージ Message
【京浜東北線沿線エリア、大森駅徒歩15分の陽当たり良好な南向き整形地】「大森」駅徒歩15分。京浜東北線沿線なので都心は勿論、埼玉・神奈川へもアクセス優秀です。浅草線の始発駅「西馬込」も利用可能で通勤・通学に便利。大田区南馬込の閑静な1種低層住宅地に位置する南向き整形地です。15帖LDK+3室+ロフト+駐車場も実現可能です。スーパー、コンビニ、総合病院、小中学校などが徒歩10分圏内に揃っています。
京浜東北線「大森」駅徒歩15分。大森は落ち着いた雰囲気の住宅街の中にお洒落なショップやカフェが点在するエリアと気取らず賑やかな駅周辺エリアの二つの顔を併せ持つ街です。
お電話のお問い合わせはこちらから
03-5790-9204
営業時間:9:30~20:00
定休日:毎週/火曜日・水曜日
-
〒150-0046 東京都渋谷区松濤2丁目7-12
-
検討中リストに追加
- お問い合わせ
ローンシミュレーション Simulation
この物件を購入した場合の、月々の支払い価格の一例です。借り入れを保証するものではございません。
- 返済期間
-
- 金利
-
- ボーナス時の増額(1回分)
-
- 借入金額:
-
- 頭金:
-
(※元利均等方式 金利5.00%まで ※返済年数5~35年まで入力できます)
(※ボーナスは年2回で計算しています。1000万円まで入力できます)
(※物件購入時、その他諸費用が発生する場合がございます)
- 毎月の返済額
おすすめ物件 Recommended Property
-
- 大田区南馬込3丁目 建築条件なし土地
- 7,750万円/-/123.05㎡
- 東京都大田区南馬込3丁目
- 京浜東北線「大森」駅 徒歩15分
-
- 大田区蒲田4丁目 借地権付き土地
- 8,000万円/-/120.55㎡
- 東京都大田区蒲田4丁目
- 京急本線「京急蒲田」駅 徒歩5分
-
- 大田区中央4丁目 建築条件なし土地
- 4,980万円/-/74.42㎡
- 東京都大田区中央4丁目
- 都営浅草線「西馬込」駅 徒歩15分
-
- 大田区池上7丁目 建築条件なし土地
- 4,980万円/-/47.43㎡
- 東京都大田区池上7丁目
- 東急池上線「池上」駅 徒歩4分
-
- 【THE SELOSSE大岡山 Ⅳstage】大田区北千束3丁目 建築条件付き土地
- 予告広告/-/68.82㎡
- 東京都大田区北千束3丁目
- 東急目黒線「大岡山」駅 徒歩8分
周辺施設情報 Spot

- こどもヶ丘保育園山王園
- 約420m/6分

- サムエル幼稚園
- 約670m/9分

- 大田区立馬込第二小学校
- 約353m/5分

- 大田区立馬込東中学校
- 約670m/9分

- 南馬込三丁目児童館
- 約366m/5分

- 平張児童公園
- 約1m/1分

- 大倉山公園
- 約93m/2分

- 八百屋 のんちゃんの店
- 約660m/9分

- まいばすけっと大森山王3丁目店
- 約747m/10分

- Luz大森
- 約1453m/19分

- セブン-イレブン 南馬込店
- 約213m/3分

- スギ薬局 南馬込店
- 約713m/9分

- 大森山王病院
- 約782m/10分

- 大森赤十字病院
- 約1064m/14分

- きらぼし銀行 大森支店
- 約805m/11分

- 大田中央四郵便局
- 約691m/9分

- 大田文化の森情報館
- 約873m/11分

- 南馬込交番
- 約479m/6分

- 新井宿特別出張所
- 約908m/12分

- ガスト大森山王店
- 約963m/13分
お電話のお問い合わせはこちらから
03-5790-9204
営業時間:9:30~20:00
定休日:毎週/火曜日・水曜日
-
〒150-0046 東京都渋谷区松濤2丁目7-12
-
検討中リストに追加
- お問い合わせ
※地図上に表示される物件の位置は付近住所に所在することを表すものであり、実際の物件所在地とは異なる場合がございます。













