品川区南品川1丁目 中古戸建
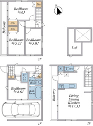
【新馬場駅徒歩6分、3LDK+S+Loft、ソーラーパネル、車庫有り】京急本線「新馬場」駅徒歩6分。りんかい線「天王洲アイル」駅徒歩15分。1階のシャッター付き大型ガレージにはファミリーカーの駐車が可能で、大切なお車のセキュリティ面もご安心いただけます。倉庫としてのご利用も可能です。2階のLDKは約17.3帖と広々と明るい印象です。対面式キッチンでお料理中もご家族とコミュニケーションがとれます。
- 価格
- 1億2,500万円
- ローンの目安
- 33万円/月
- 交通
- 京急本線「新馬場」駅 徒歩6分
- 建物面積(坪数)
- 99.36㎡(30.05坪)
- 間取り/専有面積
- 3LDK / 99.36㎡
お電話のお問い合わせはこちらから
03-5790-9204
営業時間:9:30~20:00
定休日:毎週/火曜日・水曜日
-
〒150-0046 東京都渋谷区松濤2丁目7-12
-
検討中リストに追加
- お問い合わせ
物件概要 Property Detail
情報の見方| 所在地 | 東京都品川区南品川1丁目 | ||
|---|---|---|---|
| 交通 | |||
| 間取り/詳細 |
3LDK/ LDK 17.3帖/洋室 6.0帖/洋室 5.1帖/洋室 5.0帖/洋室 4.6帖 |
建物面積(坪数) | 99.36㎡(30.05坪 |
| 価格 | 1億2,500万円 | ||
| 駐車場/月額料金 | 有(1台)/0円 | ||
| 土地の敷金/保証金 | -/- | 借地料/借地期間 | -/- |
| 土地権利 | 所有権 | 土地面積(坪数) | 56.59㎡(17.11坪) |
| 傾斜地部分面積 | - | 路地状敷地 | - |
| 私道負担面積/セットバック | -/済 | 高圧線下面積 | - |
| 地目/地勢 | 宅地/平坦 | 接道状況 | 一方(北西 公道 4.0m) |
| 建ぺい率/容積率 | 60%/240% | 用途地域 | 準工業 |
| 都市計画 | 市街化区域 | 種別/構造 | 中古一戸建/木造 |
| 階建 | 3階建 | 築年月(築年数) | 2014年 7月 (築11年) |
| 総区画数/販売区画数 | -/- | 向き | 北西 |
| 現況 | 居住中 | その他の法令上の制限 | 高度地区/準防火地域 |
| 取引態様/引渡時期 | 仲介/相談 | 建築確認番号 | - |
| 物件番号 | 99319631 | 取引条件の有効期限 | 2025年12月19日 |
| 設備条件 |
|
||
| 備考 |
グローバルインクでは初期費用の一部をクレジットカードでお支払い頂けます♪ 詳しくはお気軽にお問合せご相談下さいませ。 グローバルインクがお贈りする3大無料サービスをぜひご利用ください! ●3大サービスその1 超レア!未公開・企画段階物件情報ご紹介サービス 当社ホームページより会員登録ください。ネット・メルマガにすら開示できない超レア情報をお届けします。 ●3大サービスその2 不動産購入・ミニセミナー無料受講 不動産を探し始めの方、安心購入への具体的行動プランをお教えします。 契約書、重要事項説明書などの見方、瑕疵物件の判別方法など、不利な契約から身を守り、安心な物件購入ができるようにノウハウを伝授します! **セカンド・オピニオンサービス始めました!** ●3大サービスその3 ライフプランニング相談会無料開催 安心購入の為には、住宅ローンのことだけではなく、資金的に安心できる人生設計が必要になります。 お子様の学費、住宅のリフォーム、突発的な出費、そして夢の海外旅行など、すべての資金計画を一度してみることをお勧めします。 今なら無料で専門のファイナンシャル・プランナーが御相談にあずかります。 詳しくは当社「3大無料サービス」係まで TEL:03-5790-9204 |
||
| 取扱会社 |
|
||
担当者からのメッセージ Message
【新馬場駅徒歩6分、3LDK+S+Loft、ソーラーパネル、車庫有り】京急本線「新馬場」駅徒歩6分。りんかい線「天王洲アイル」駅徒歩15分。1階のシャッター付き大型ガレージにはファミリーカーの駐車が可能で、大切なお車のセキュリティ面もご安心いただけます。倉庫としてのご利用も可能です。2階のLDKは約17.3帖と広々と明るい印象です。対面式キッチンでお料理中もご家族とコミュニケーションがとれます。
京急本線「新馬場」駅徒歩6分。りんかい線「天王洲アイル」駅徒歩15分。周辺は保育施設が豊富で小学校まで徒歩2分以内。スーパー「マルエツプチ」まで徒歩3分でお買い物が便利です。
お電話のお問い合わせはこちらから
03-5790-9204
営業時間:9:30~20:00
定休日:毎週/火曜日・水曜日
-
〒150-0046 東京都渋谷区松濤2丁目7-12
-
検討中リストに追加
- お問い合わせ
ローンシミュレーション Simulation
この物件を購入した場合の、月々の支払い価格の一例です。借り入れを保証するものではございません。
- 返済期間
-
- 金利
-
- ボーナス時の増額(1回分)
-
- 借入金額:
-
- 頭金:
-
(※元利均等方式 金利5.00%まで ※返済年数5~35年まで入力できます)
(※ボーナスは年2回で計算しています。1000万円まで入力できます)
(※物件購入時、その他諸費用が発生する場合がございます)
- 毎月の返済額
おすすめ物件 Recommended Property
-
- 品川区荏原2丁目 新築戸建
- 1億3,380万円/4LDK/104.70㎡
- 東京都品川区荏原2丁目
- 東急池上線「戸越銀座」駅 徒歩8分
-
- 品川区西五反田8丁目 新築戸建
- 1億3,999万円/3LDK/107.17㎡
- 東京都品川区西五反田8丁目
- 山手線「五反田」駅 徒歩12分
-
- 品川区南大井6丁目 借地権・底地権同時売却
- 9,480万円/4LDK/137.26㎡
- 東京都品川区南大井6丁目
- 京浜東北線「大森」駅 徒歩8分
-
- 品川区中延2丁目 中古戸建
- 8,580万円/2LDK/76.07㎡
- 東京都品川区中延2丁目
- 東急池上線「荏原中延」駅 徒歩4分
-
- 品川区平塚1丁目 中古戸建
- 8,500万円/4LDK/87.24㎡
- 東京都品川区平塚1丁目
- 都営浅草線「戸越」駅 徒歩4分
周辺施設情報 Spot

- 品川区立城南第二小学校
- 約118m/2分

- とうかいどう保育園
- 約182m/3分

- なぎさ通り保育園
- 約210m/3分

- どんぐり保育園
- 約338m/5分

- 八潮幼稚園
- 約531m/7分

- 品川区立 城南幼稚園
- 約529m/7分

- まいばすけっと 南品川一丁目店
- 約69m/1分

- 街道松の広場
- 約105m/2分

- ローソン 南品川一丁目店
- 約129m/2分

- 南品川一郵便局
- 約163m/3分

- マルエツプチ 品川橋店
- 約210m/3分

- 品川区立北浜公園
- 約216m/3分

- 東品川公園
- 約364m/5分

- ローソン 東品川海岸通店
- 約252m/4分

- セブンイレブン 南品川2丁目店
- 約262m/4分

- 品川区立図書館
- 約468m/6分

- 北品川温泉 天神湯
- 約386m/5分

- まいばすけっと北品川2丁目
- 約360m/5分

- キャンドゥ 新馬場店
- 約394m/5分

- 品川区医師会休日診療所
- 約610m/8分
お電話のお問い合わせはこちらから
03-5790-9204
営業時間:9:30~20:00
定休日:毎週/火曜日・水曜日
-
〒150-0046 東京都渋谷区松濤2丁目7-12
-
検討中リストに追加
- お問い合わせ
※地図上に表示される物件の位置は付近住所に所在することを表すものであり、実際の物件所在地とは異なる場合がございます。













