品川区小山2丁目 建築条件なし土地
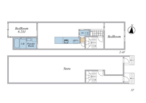
【「武蔵小山」徒歩5分、30坪以上、前面道路5m以上、整形地】目黒線「武蔵小山」駅徒歩5分。面積108.62平米の大型敷地+容積率の高いエリアにつき大型の建物が建築可能。1階店舗付4階建マンションプランあり。整形地につき間取プランの自由度が高く、お好みの間取が実現可能。建築条件はありません。お好きなハウスメーカーや工務店にて理想の建物をトコトン追求していただけます。現況更地です。
- 価格
- 2億2,000万円
- ローンの目安
- 58.1万円/月
- 交通
- 東急目黒線「武蔵小山」駅 徒歩5分
- 土地面積(坪数)
- 108.62㎡(-)
お電話のお問い合わせはこちらから
03-5790-9204
営業時間:9:30~20:00
定休日:毎週/火曜日・水曜日
-
〒150-0046 東京都渋谷区松濤2丁目7-12
-
検討中リストに追加
- お問い合わせ
物件概要 Property Detail
情報の見方| 所在地 | 東京都品川区小山2丁目 | ||
|---|---|---|---|
| 交通 | |||
| 価格 | 2億2,000万円 | ||
| 土地の敷金/保証金 | -/- | 借地料/借地期間 | -/- |
| 土地面積(坪数) | 108.62㎡(32.85坪) | 坪単価 | 669.71万円 |
| 私道負担面積/セットバック | -/無 | 高圧線下面積 | - |
| 傾斜地部分面積 | - | 路地状敷地 | - |
| 土地権利 | 所有権 | 接道状況 | 一方(東 公道 5.4m) |
| 都市計画 | 市街化区域 | 用途地域 | 近隣商業/第一種住居 |
| 建築条件 | 無 | 地目/地勢 | 宅地/平坦 |
| 建ぺい率 | 79% | 容積率 | 299% |
| 総区画数 | 1区画 | 販売区画数 | 1区画 |
| 国土法届出要否 | 不要 | その他の法令上の制限 | 高度地区 |
| 取引態様 | 仲介 | 現況 | 更地 |
| 引渡時期 | 相談 | 引渡条件 | 更地渡 |
| 最適用途 | 住宅用地 | ||
| 物件番号 | 99727436 | ||
| 設備条件 |
|
取引条件の有効期限 | 2026年01月27日 |
| 備考 |
グローバルインクでは初期費用の一部をクレジットカードでお支払い頂けます♪ 詳しくはお気軽にお問合せご相談下さいませ。 グローバルインクがお贈りする3大無料サービスをぜひご利用ください! ●3大サービスその1 超レア!未公開・企画段階物件情報ご紹介サービス 当社ホームページより会員登録ください。ネット・メルマガにすら開示できない超レア情報をお届けします。 ●3大サービスその2 不動産購入・ミニセミナー無料受講 不動産を探し始めの方、安心購入への具体的行動プランをお教えします。 契約書、重要事項説明書などの見方、瑕疵物件の判別方法など、不利な契約から身を守り、安心な物件購入ができるようにノウハウを伝授します! **セカンド・オピニオンサービス始めました!** ●3大サービスその3 ライフプランニング相談会無料開催 安心購入の為には、住宅ローンのことだけではなく、資金的に安心できる人生設計が必要になります。 お子様の学費、住宅のリフォーム、突発的な出費、そして夢の海外旅行など、すべての資金計画を一度してみることをお勧めします。 今なら無料で専門のファイナンシャル・プランナーが御相談にあずかります。 詳しくは当社「3大無料サービス」係まで TEL:03-5790-9204 |
||
| 取扱会社 |
|
||
担当者からのメッセージ Message
【「武蔵小山」徒歩5分、30坪以上、前面道路5m以上、整形地】目黒線「武蔵小山」駅徒歩5分。前面道路5m以上で開放感あり。面積108.62平米の大型敷地+容積率の高いエリアにつき大型の建物が建築可能。1階店舗付4階建マンションプランあり。整形地につき間取プランの自由度が高く、お好みの間取が実現可能。建築条件はありません。お好きなハウスメーカーや工務店にて理想の建物をトコトン追求していただけます。現況更地です。
目黒線「武蔵小山」駅徒歩5分。急行停車駅につき「目黒」駅へ1駅のためアクセス良好です。保育施設や小学校、公園が徒歩2分以内。大型スーパー2店舗が徒歩6分以内で買物便利です。
お電話のお問い合わせはこちらから
03-5790-9204
営業時間:9:30~20:00
定休日:毎週/火曜日・水曜日
-
〒150-0046 東京都渋谷区松濤2丁目7-12
-
検討中リストに追加
- お問い合わせ
ローンシミュレーション Simulation
この物件を購入した場合の、月々の支払い価格の一例です。借り入れを保証するものではございません。
- 返済期間
-
- 金利
-
- ボーナス時の増額(1回分)
-
- 借入金額:
-
- 頭金:
-
(※元利均等方式 金利5.00%まで ※返済年数5~35年まで入力できます)
(※ボーナスは年2回で計算しています。1000万円まで入力できます)
(※物件購入時、その他諸費用が発生する場合がございます)
- 毎月の返済額
おすすめ物件 Recommended Property
-
- 品川区東大井3丁目 建築条件なし土地
- 2億2,500万円/-/181.33㎡
- 東京都品川区東大井3丁目
- 京急本線「立会川」駅 徒歩3分
-
- 品川区戸越2丁目 建築条件なし土地
- 2億3,600万円/-/228.28㎡
- 東京都品川区戸越2丁目
- 都営浅草線「戸越」駅 徒歩5分
-
- 品川区東五反田1丁目 建築条件なし土地
- 1億9,500万円/-/78.66㎡
- 東京都品川区東五反田1丁目
- 山手線「五反田」駅 徒歩5分
-
- 品川区二葉3丁目 建築条件なし土地
- 1億9,000万円/-/91.06㎡
- 東京都品川区二葉3丁目
- 都営浅草線「中延」駅 徒歩8分
-
- 品川区豊町1丁目 建築条件なし土地
- 2億9,600万円/-/279.57㎡
- 東京都品川区豊町1丁目
- 都営浅草線「戸越」駅 徒歩8分
周辺施設情報 Spot

- 不動前緑道公園
- 約69m/1分

- 品川区立くまさん広場
- 約83m/2分

- チャイルドマインダー小山台東
- 約105m/2分

- 品川区立小山台東公園
- 約141m/2分

- 品川区立後地小学校
- 約128m/2分

- 石井こども園
- 約225m/3分

- 石井保育園
- 約226m/3分

- ライフ武蔵小山店
- 約148m/2分

- エトモ武蔵小山
- 約369m/5分

- オオゼキ 武蔵小山店
- 約410m/6分

- 小山台医院
- 約225m/3分

- セブンイレブン 品川小山台店
- 約261m/4分

- 品川小山三郵便局
- 約214m/3分

- アンガ食品
- 約148m/2分

- スキップキッズ 武蔵小山店
- 約205m/3分

- スギ薬局
- 約183m/3分

- 武蔵小山温泉清水湯
- 約223m/3分

- 品川区後地児童センター
- 約325m/5分

- タリーズコーヒー 武蔵小山駅店
- 約370m/5分

- 無印良品 MUJIcomエトモ武蔵小山
- 約373m/5分
お電話のお問い合わせはこちらから
03-5790-9204
営業時間:9:30~20:00
定休日:毎週/火曜日・水曜日
-
〒150-0046 東京都渋谷区松濤2丁目7-12
-
検討中リストに追加
- お問い合わせ
※地図上に表示される物件の位置は付近住所に所在することを表すものであり、実際の物件所在地とは異なる場合がございます。













