世田谷区野沢4丁目 建築条件なし土地
【「駒沢大学」徒歩10分、建築条件なし、整形地、東南角地】田園都市線「駒沢大学」駅徒歩10分。世田谷区野沢の1種低層住居専用地域。整形地につき間取プランの自由度が高く、お好みの間取が建築可能。建築条件はありません。お好きなハウスメーカーや工務店にて理想の建物をトコトン追求していただけます。落ち着いた住環境ながら、渋谷や二子玉川、中目黒など人気エリアへのアクセスも良好。建物参考プランございます。
- 価格
- 1億3,980万円
- ローンの目安
- 36.9万円/月
- 交通
- 東急田園都市線「駒沢大学」駅 徒歩10分
- 土地面積(坪数)
- 84.00㎡(-)
お電話のお問い合わせはこちらから
03-5790-9204
営業時間:9:30~20:00
定休日:毎週/火曜日・水曜日
-
〒150-0046 東京都渋谷区松濤2丁目7-12
-
検討中リストに追加
- お問い合わせ
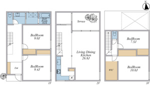
物件概要 Property Detail
情報の見方| 所在地 | 東京都世田谷区野沢4丁目 | ||
|---|---|---|---|
| 交通 | |||
| 価格 | 1億3,980万円 | ||
| 土地の敷金/保証金 | -/- | 借地料/借地期間 | -/- |
| 土地面積(坪数) | 84.00㎡(25.40坪) | 坪単価 | 550.18万円 |
| 私道負担面積/セットバック | -/無 | 高圧線下面積 | - |
| 傾斜地部分面積 | - | 路地状敷地 | - |
| 土地権利 | 所有権 | 接道状況 | 角地(南 公道 4.0m)(東 公道 4.5m) |
| 都市計画 | 市街化区域 | 用途地域 | 第一種低層住居専用 |
| 建築条件 | 無 | 地目/地勢 | 宅地/平坦 |
| 建ぺい率 | 60% | 容積率 | 150% |
| 総区画数 | 6区画 | 販売区画数 | 5区画 |
| 国土法届出要否 | 不要 | その他の法令上の制限 | 高度地区/準防火地域 |
| 取引態様 | 仲介 | 現況 | 更地 |
| 引渡時期 | 相談 | 引渡条件 | 更地渡 |
| 最適用途 | 住宅用地 | ||
| 物件番号 | 100488737 | ||
| 設備条件 |
|
取引条件の有効期限 | 2026年01月27日 |
| 備考 |
グローバルインクでは初期費用の一部をクレジットカードでお支払い頂けます♪ 詳しくはお気軽にお問合せご相談下さいませ。 グローバルインクがお贈りする3大無料サービスをぜひご利用ください! ●3大サービスその1 超レア!未公開・企画段階物件情報ご紹介サービス 当社ホームページより会員登録ください。ネット・メルマガにすら開示できない超レア情報をお届けします。 ●3大サービスその2 不動産購入・ミニセミナー無料受講 不動産を探し始めの方、安心購入への具体的行動プランをお教えします。 契約書、重要事項説明書などの見方、瑕疵物件の判別方法など、不利な契約から身を守り、安心な物件購入ができるようにノウハウを伝授します! **セカンド・オピニオンサービス始めました!** ●3大サービスその3 ライフプランニング相談会無料開催 安心購入の為には、住宅ローンのことだけではなく、資金的に安心できる人生設計が必要になります。 お子様の学費、住宅のリフォーム、突発的な出費、そして夢の海外旅行など、すべての資金計画を一度してみることをお勧めします。 今なら無料で専門のファイナンシャル・プランナーが御相談にあずかります。 詳しくは当社「3大無料サービス」係まで TEL:03-5790-9204 |
||
| 取扱会社 |
|
||
担当者からのメッセージ Message
【「駒沢大学」徒歩10分、建築条件なし、整形地、東南角地】田園都市線「駒沢大学」駅徒歩10分。世田谷区野沢の1種低層住居専用地域。整形地につき間取プランの自由度が高く、お好みの間取が建築可能。建築条件はありません。お好きなハウスメーカーや工務店にて理想の建物をトコトン追求していただけます。落ち着いた住環境ながら、渋谷や二子玉川、中目黒など人気エリアへのアクセスも良好。建物参考プランございます。
田園都市線「駒沢大学」駅徒歩10分。ビッグターミナル「渋谷」まで一本でアクセス良好です。小学校や保育施設が徒歩6分以内。大型スーパー「サミットストア」徒歩2分で便利です。
お電話のお問い合わせはこちらから
03-5790-9204
営業時間:9:30~20:00
定休日:毎週/火曜日・水曜日
-
〒150-0046 東京都渋谷区松濤2丁目7-12
-
検討中リストに追加
- お問い合わせ
ローンシミュレーション Simulation
この物件を購入した場合の、月々の支払い価格の一例です。借り入れを保証するものではございません。
- 返済期間
-
- 金利
-
- ボーナス時の増額(1回分)
-
- 借入金額:
-
- 頭金:
-
(※元利均等方式 金利5.00%まで ※返済年数5~35年まで入力できます)
(※ボーナスは年2回で計算しています。1000万円まで入力できます)
(※物件購入時、その他諸費用が発生する場合がございます)
- 毎月の返済額
おすすめ物件 Recommended Property
-
- 世田谷区船橋4丁目 建築条件なし土地
- 1億3,280万円/-/164.78㎡
- 東京都世田谷区船橋4丁目
- 小田急小田原線「千歳船橋」駅 徒歩14分
-
- 世田谷区桜丘2丁目 建築条件なし土地
- 1億2,980万円/-/183.35㎡
- 東京都世田谷区桜丘2丁目
- 小田急小田原線「千歳船橋」駅 徒歩3分
-
- 世田谷区松原4丁目 建築条件付き土地
- 1億2,900万円/-/99.65㎡
- 東京都世田谷区松原4丁目
- 東急世田谷線「松原」駅 徒歩5分
-
- 世田谷区瀬田5丁目 建築条件なし土地
- 1億2,500万円/-/182.57㎡
- 東京都世田谷区瀬田5丁目
- 東急田園都市線「用賀」駅 徒歩14分
-
- 世田谷区代沢1丁目 建築条件なし土地
- 1億5,500万円/-/102.58㎡
- 東京都世田谷区代沢1丁目
- 京王井の頭線「池ノ上」駅 徒歩9分
周辺施設情報 Spot

- サミットストア野沢龍雲寺店
- 約86m/2分

- セブン-イレブン 世田谷野沢2丁目店
- 約258m/4分

- 世田谷野沢郵便局
- 約202m/3分

- 野沢三丁目広場
- 約301m/4分

- にじいろ保育園東が丘
- 約341m/5分

- モンテッソーリ世田谷子供の家
- 約392m/5分

- 東が丘保育園
- 約283m/4分

- 世田谷区立中丸小学校
- 約419m/6分

- 東京医療センター
- 約909m/12分

- 信濃屋 野沢店
- 約491m/7分

- 成城石井柿の木坂店
- 約726m/10分

- 芳窪街かど公園
- 約379m/5分

- ローソン世田谷野沢2丁目店
- 約430m/6分

- 東根公園
- 約413m/6分

- 龍雲寺
- 約329m/5分

- 青葉学園野沢こども園
- 約528m/7分

- アゼィリア幼稚園
- 約445m/6分

- 野沢地区会館
- 約509m/7分

- ツルハドラッグ 柿の木坂店
- 約653m/9分

- 世田谷上馬郵便局
- 約903m/12分
お電話のお問い合わせはこちらから
03-5790-9204
営業時間:9:30~20:00
定休日:毎週/火曜日・水曜日
-
〒150-0046 東京都渋谷区松濤2丁目7-12
-
検討中リストに追加
- お問い合わせ
※地図上に表示される物件の位置は付近住所に所在することを表すものであり、実際の物件所在地とは異なる場合がございます。













