グランドメゾン駒沢の過去掲載物件情報現況の確認はお気軽にお問い合わせください。
| 所在地 | 東京都世田谷区駒沢2丁目 | ||
|---|---|---|---|
| 交通 | |||
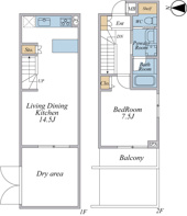
| 築年月(築年数) | 1980年 2月 ( 築46年 ) | 方位 | 南 |
| 種別/構造 | 中古マンション/鉄骨鉄筋コンクリート | 所在階/階建 | 7階/ 10階建 |
| 設備条件 |
|
||
【外観】ご自宅から現地まで、当社スタッフがお車にて、「お迎え・お送り」をしております。ぜひお気軽にお問い合わせくださいませ♪

















