品川区戸越4丁目 新築戸建
【「戸越」徒歩8分、車庫付3LDK、ガス乾燥機「乾太くん」完備】都営浅草線「戸越」駅徒歩8分。3駅3路線利用可、アクセス+住環境が揃った住まい。「戸越銀座商店街」近傍の利便性と戸越公園の緑に癒される住環境です。家中まるごと洗浄力を高めるリファ「ウルトラファインバブル」採用。ガス乾燥機「乾太くん」や床暖房、食洗機などQOL高める設備仕様を標準装備。スマートロックシステム採用でセキュリティも充実です。
- 価格
- 7,980万円
- ローンの目安
- 21.1万円/月
- 交通
- 都営浅草線「戸越」駅 徒歩8分
- 建物面積(坪数)
- 92.90㎡(28.1坪)
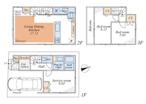
- 間取り/専有面積
- 3LDK / 92.90㎡
お電話のお問い合わせはこちらから
03-5790-9204
営業時間:9:30~20:00
定休日:毎週/火曜日・水曜日
-
〒150-0046 東京都渋谷区松濤2丁目7-12
-
検討中リストに追加
- お問い合わせ
物件概要 Property Detail
情報の見方| 所在地 | 東京都品川区戸越4丁目 | ||
|---|---|---|---|
| 交通 | |||
| 間取り/詳細 |
3LDK/ LDK 17.7帖 1室/洋室 6.1帖 1室/洋室 6.0帖 1室/洋室 5.0帖 1室 1階洋室納戸申請 |
建物面積(坪数) | 92.90㎡(28.1坪 |
| 価格 | 7,980万円 | ||
| 駐車場/月額料金 | 有(1台)/0円 | ||
| 土地の敷金/保証金 | -/- | 借地料/借地期間 | 16,313円/20年 |
| 土地権利 | 旧法地上権 | 土地面積(坪数) | 56.65㎡(17.13坪) |
| 傾斜地部分面積 | - | 路地状敷地 | - |
| 私道負担面積/セットバック | 6.60㎡/要 1.31㎡ | 高圧線下面積 | - |
| 地目/地勢 | 宅地/平坦 | 接道状況 | 一方(南 私道 3.0m) |
| 建ぺい率/容積率 | 60%/160% | 用途地域 | 第一種住居 |
| 都市計画 | 市街化区域 | 種別/構造 | 新築一戸建/木造 |
| 階建 | 3階建 | 築年月(築年数) | 2026年 6月 (予定) |
| 総区画数/販売区画数 | 1区画/1区画 | 向き | 南 |
| 現況 | 未完成 | その他の法令上の制限 | 高度地区/準防火地域/新たな防火地域、戸越・豊町地区地区計画 |
| 取引態様/引渡時期 | 仲介/相談 | 建築確認番号 | 第BNV確済25-873号 |
| 物件番号 | 101353316 | 取引条件の有効期限 | 2026年03月19日 |
| 設備条件 |
|
||
| 備考 |
グローバルインクでは初期費用の一部をクレジットカードでお支払い頂けます♪ 詳しくはお気軽にお問合せご相談下さいませ。 グローバルインクがお贈りする3大無料サービスをぜひご利用ください! ●3大サービスその1 超レア!未公開・企画段階物件情報ご紹介サービス 当社ホームページより会員登録ください。ネット・メルマガにすら開示できない超レア情報をお届けします。 ●3大サービスその2 不動産購入・ミニセミナー無料受講 不動産を探し始めの方、安心購入への具体的行動プランをお教えします。 契約書、重要事項説明書などの見方、瑕疵物件の判別方法など、不利な契約から身を守り、安心な物件購入ができるようにノウハウを伝授します! **セカンド・オピニオンサービス始めました!** ●3大サービスその3 ライフプランニング相談会無料開催 安心購入の為には、住宅ローンのことだけではなく、資金的に安心できる人生設計が必要になります。 お子様の学費、住宅のリフォーム、突発的な出費、そして夢の海外旅行など、すべての資金計画を一度してみることをお勧めします。 今なら無料で専門のファイナンシャル・プランナーが御相談にあずかります。 詳しくは当社「3大無料サービス」係まで TEL:03-5790-9204 |
||
| 取扱会社 |
|
||
担当者からのメッセージ Message
【「戸越」徒歩8分、車庫付3LDK、ガス乾燥機「乾太くん」完備】都営浅草線「戸越」駅徒歩8分。3駅3路線利用可、アクセス+住環境が揃った住まい。「戸越銀座商店街」近傍の利便性と戸越公園の緑に癒される住環境です。家中まるごと洗浄力を高めるリファ「ウルトラファインバブル」採用。ガス乾燥機「乾太くん」や床暖房、食洗機などQOL高める設備仕様を標準装備。スマートロックシステム採用でセキュリティも充実です。
都営浅草線「戸越」駅徒歩8分。「戸越公園」「戸越銀座」も徒歩10分で3駅3路線利用可です。保育施設や小学校が徒歩4分以内。大型スーパー「オオゼキ」「文化堂」徒歩4分以内です。
お電話のお問い合わせはこちらから
03-5790-9204
営業時間:9:30~20:00
定休日:毎週/火曜日・水曜日
-
〒150-0046 東京都渋谷区松濤2丁目7-12
-
検討中リストに追加
- お問い合わせ
ローンシミュレーション Simulation
この物件を購入した場合の、月々の支払い価格の一例です。借り入れを保証するものではございません。
- 返済期間
-
- 金利
-
- ボーナス時の増額(1回分)
-
- 借入金額:
-
- 頭金:
-
(※元利均等方式 金利5.00%まで ※返済年数5~35年まで入力できます)
(※ボーナスは年2回で計算しています。1000万円まで入力できます)
(※物件購入時、その他諸費用が発生する場合がございます)
- 毎月の返済額
おすすめ物件 Recommended Property
-
- 品川区西中延3丁目 中古戸建
- 7,980万円/3LDK/75.75㎡
- 東京都品川区西中延3丁目
- 東急大井町線「中延」駅 徒歩6分
-
- 品川区平塚1丁目 中古戸建
- 8,500万円/4LDK/87.24㎡
- 東京都品川区平塚1丁目
- 都営浅草線「戸越」駅 徒歩4分
-
- 品川区荏原7丁目 新築戸建
- 6,980万円/2LDK/62.70㎡
- 東京都品川区荏原7丁目
- 東急目黒線「西小山」駅 徒歩7分
-
- 品川区西品川1丁目 中古戸建
- 9,780万円/2LDK/79.69㎡
- 東京都品川区西品川1丁目
- 東急大井町線「下神明」駅 徒歩6分
-
- 品川区荏原2丁目 新築戸建
- 1億3,380万円/4LDK/104.70㎡
- 東京都品川区荏原2丁目
- 東急池上線「戸越銀座」駅 徒歩8分
周辺施設情報 Spot

- 品川区立宮前小学校
- 約206m/3分

- 東戸越保育園
- 約155m/2分

- 品川区立ぞう3広場
- 約240m/3分

- 旧三井文庫第二書庫
- 約179m/3分

- オオゼキ 戸越公園店
- 約179m/3分

- 品川戸越郵便局
- 約186m/3分

- BunBu学院Jr.戸越園
- 約352m/5分

- 文化堂 戸越銀座店
- 約285m/4分

- うみのくに保育園 とごし
- 約285m/4分

- 松永医院
- 約225m/3分

- 戸越八幡神社
- 約205m/3分

- 文庫の森
- 約173m/3分

- ローソン戸越4丁目
- 約311m/4分

- 品川区立戸越体育館
- 約274m/4分

- ココカラファイン ヘルスケアセイジョー戸越公園店
- 約257m/4分

- 戸越銀座温泉
- 約303m/4分

- ゲオ戸越公園店
- 約314m/4分

- どい小児科
- 約430m/6分

- まいばすけっと戸越3丁目
- 約443m/6分

- ドラッグセイムス 戸越銀座1丁目店
- 約430m/6分
お電話のお問い合わせはこちらから
03-5790-9204
営業時間:9:30~20:00
定休日:毎週/火曜日・水曜日
-
〒150-0046 東京都渋谷区松濤2丁目7-12
-
検討中リストに追加
- お問い合わせ
※地図上に表示される物件の位置は付近住所に所在することを表すものであり、実際の物件所在地とは異なる場合がございます。













