日神パレステージ西池袋 11階
JR山手線「池袋」駅徒歩3分です。最上階、角部屋、1LDK!オートロック付きで安全面確保されています◎LDKは、バルコニーに面した明るい空間でリラックスタイムを、ナチュラルな内装が魅力の、落ち着いた雰囲気でくつろげるリビングです。また、2面採光となっており収納もございます。用途を選ばず使いやすい洋室となっております。周辺には、コンビニ・スーパーなどあり生活環境も非常に充実しております。
- 価格
- 6,299万円
- ローンの目安
- 16.6万円/月
- 交通
- 西武池袋線「池袋」駅 徒歩3分
- 建物面積(坪数)
- 31.89㎡(-)
- 間取り/専有面積
- 1LDK / 31.89㎡
お電話のお問い合わせはこちらから
03-5790-9204
営業時間:9:30~20:00
定休日:毎週/火曜日・水曜日
-
〒150-0046 東京都渋谷区松濤2丁目7-12
-
検討中リストに追加
- お問い合わせ
物件概要 Property Detail
情報の見方| 所在地 | 東京都豊島区西池袋2丁目 | ||
|---|---|---|---|
| 交通 | |||
| 間取り/詳細 |
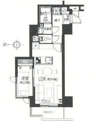
1LDK LDK 9.6帖 1室/洋室 2.8帖 1室 |
||
| 専有面積/バルコニー面積 | 31.89㎡/3.30㎡ | ルーフバルコニー面積/テラス面積/専用庭面積 | -/-/- |
| 価格 | 6,299万円 | ||
| 管理費 | 9,300円 | ||
| 修繕積立金 | 5,450円 | 修繕積立基金 | - |
| 権利金 | - | 駐車場/月額料金 | 空無/30,000円 (非課税) |
| 土地の敷金/保証金 | -/- | 借地料/借地期間 | -/- |
| 土地権利 | 所有権 | 国土法届出要否 | 不要 |
| 用途地域 | - | 地勢 | - |
| 種別/構造 | 中古マンション/鉄筋コンクリート | 向き | 西 |
| 築年月(築年数) | 1996年 9月 (築29年) | ||
| 所在階/階建 | 11階/11階建 | 棟総戸数/販売戸数 | 63戸/1戸 |
| 管理組合有無 | 有 | 管理形態 | 管理会社に全部委託 |
| 管理方式 | 巡回 | 管理会社 | 東京管理 |
| 取引態様 | 仲介 | 現況 | 空家 |
| 引渡し | 即時 | 建築確認番号 | - |
| 物件番号 | 101407647 | 取引条件の有効期限 | 2026年03月16日 |
| リノベーション |
2026年1月30日完了 フローリング、クロス 洗面、」トイレ キッチン ユニットバス 建具 新規エアコン設置(1台) |
||
| 設備条件 |
|
||
| 備考 |
グローバルインクでは初期費用の一部をクレジットカードでお支払い頂けます♪ 詳しくはお気軽にお問合せご相談下さいませ。 グローバルインクがお贈りする3大無料サービスをぜひご利用ください! ●3大サービスその1 超レア!未公開・企画段階物件情報ご紹介サービス 当社ホームページより会員登録ください。ネット・メルマガにすら開示できない超レア情報をお届けします。 ●3大サービスその2 不動産購入・ミニセミナー無料受講 不動産を探し始めの方、安心購入への具体的行動プランをお教えします。 契約書、重要事項説明書などの見方、瑕疵物件の判別方法など、不利な契約から身を守り、安心な物件購入ができるようにノウハウを伝授します! **セカンド・オピニオンサービス始めました!** ●3大サービスその3 ライフプランニング相談会無料開催 安心購入の為には、住宅ローンのことだけではなく、資金的に安心できる人生設計が必要になります。 お子様の学費、住宅のリフォーム、突発的な出費、そして夢の海外旅行など、すべての資金計画を一度してみることをお勧めします。 今なら無料で専門のファイナンシャル・プランナーが御相談にあずかります。 詳しくは当社「3大無料サービス」係まで TEL:03-5790-9204 |
||
| 取扱会社 |
|
||
担当者からのメッセージ Message
JR山手線「池袋」駅徒歩3分です。最上階、角部屋、1LDK!オートロック付きで安全面確保されています◎LDKは、バルコニーに面した明るい空間でリラックスタイムを、ナチュラルな内装が魅力の、落ち着いた雰囲気でくつろげるリビングです。また、2面採光となっており収納もございます。用途を選ばず使いやすい洋室となっております。周辺には、コンビニ・スーパーなどあり生活環境も非常に充実しております。
お電話のお問い合わせはこちらから
03-5790-9204
営業時間:9:30~20:00
定休日:毎週/火曜日・水曜日
-
〒150-0046 東京都渋谷区松濤2丁目7-12
-
検討中リストに追加
- お問い合わせ
ローンシミュレーション Simulation
この物件を購入した場合の、月々の支払い価格の一例です。借り入れを保証するものではございません。
- 返済期間
-
- 金利
-
- ボーナス時の増額(1回分)
-
- 借入金額:
-
- 頭金:
-
(※元利均等方式 金利5.00%まで ※返済年数5~35年まで入力できます)
(※ボーナスは年2回で計算しています。1000万円まで入力できます)
(※物件購入時、その他諸費用が発生する場合がございます)
- 毎月の返済額
おすすめ物件 Recommended Property
周辺施設情報 Spot

- ローソン 西池袋二丁目店
- 約46m/1分

- ティップ.クロス TOKYO池袋
- 約206m/3分

- サンマルクカフェ 池袋メトロポリタン口店
- 約189m/3分

- モスバーガー 東武池袋店
- 約198m/3分

- ルミネ池袋
- 約234m/3分

- カルディコーヒーファーム ルミネ池袋店
- 約234m/3分

- 山海亭
- 約264m/4分

- 自由学園明日館
- 約242m/4分

- ドトールコーヒーショップ 西池袋1丁目メトロポリタン通り店
- 約254m/4分

- スシロー 南池袋店
- 約210m/3分

- 椿屋珈琲 池袋離れ
- 約261m/4分

- 東京消防庁池袋消防署
- 約226m/3分

- 豊島区立郷土資料館
- 約271m/4分

- 池袋警察署
- 約312m/4分

- サイゼリヤ 池袋芸術劇場前店
- 約377m/5分

- 池袋ロフト
- 約452m/6分

- ナチュラルローソン エソラ池袋店
- 約391m/5分

- グローバルキッズ西池袋園
- 約401m/6分

- 東京芸術劇場
- 約453m/6分

- ニトリ 東武池袋店
- 約408m/6分
お電話のお問い合わせはこちらから
03-5790-9204
営業時間:9:30~20:00
定休日:毎週/火曜日・水曜日
-
〒150-0046 東京都渋谷区松濤2丁目7-12
-
検討中リストに追加
- お問い合わせ
※地図上に表示される物件の位置は付近住所に所在することを表すものであり、実際の物件所在地とは異なる場合がございます。













