日神デュオステージ上北沢 3階
京王線「上北沢」駅徒歩3分です。5階建3階部分・西向き角住戸!建物2003年築の新耐震基準適合♪安心セキュリティオートロック・TVモニターインターフォン付き!安全面もしっかり確保!便利なアイテムの宅配ボックス付き!ご不在時でも安心ですね。バルコニーの前は低層住居が広がります◎周辺には、コンビニ・スーパーなどの商業施設があり生活環境も非常に充実しております。
- 価格
- 6,199万円
- ローンの目安
- 16.4万円/月
- 交通
- 京王線「上北沢」駅 徒歩3分
- 建物面積(坪数)
- 40.22㎡(-)
- 間取り/専有面積
- 1LDK / 40.22㎡
お電話のお問い合わせはこちらから
03-5790-9204
営業時間:9:30~20:00
定休日:毎週/火曜日・水曜日
-
〒150-0046 東京都渋谷区松濤2丁目7-12
-
検討中リストに追加
- お問い合わせ
物件概要 Property Detail
情報の見方| 所在地 | 東京都世田谷区上北沢3丁目 | ||
|---|---|---|---|
| 交通 | |||
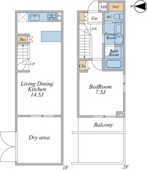
| 間取り/詳細 |
1LDK LDK 11.3帖 1室/洋室 4.8帖 1室 |
||
| 専有面積/バルコニー面積 | 40.22㎡/7.50㎡ | ルーフバルコニー面積/テラス面積/専用庭面積 | -/-/- |
| 価格 | 6,199万円 | ||
| 管理費 | 9,200円 | ||
| 修繕積立金 | 14,340円 | 修繕積立基金 | - |
| 権利金 | - | 駐車場/月額料金 | 空有/20,000円 (非課税) 20000円※空き要確認 |
| 土地の敷金/保証金 | -/- | 借地料/借地期間 | -/- |
| 土地権利 | 所有権 | 国土法届出要否 | 不要 |
| 用途地域 | - | 地勢 | - |
| 種別/構造 | 中古マンション/鉄筋コンクリート | 向き | 西 |
| 築年月(築年数) | 2003年 8月 (築22年) | ||
| 所在階/階建 | 3階/5階建 | 棟総戸数/販売戸数 | 34戸/1戸 |
| 管理組合有無 | 有 | 管理形態 | 管理会社に全部委託 |
| 管理方式 | 日勤 | 管理会社 | - |
| 取引態様 | 仲介 | 現況 | 空家 |
| 引渡し | 相談 | 建築確認番号 | - |
| 物件番号 | 101597091 | 取引条件の有効期限 | 2026年03月16日 |
| 設備条件 |
|
||
| 備考 |
グローバルインクでは初期費用の一部をクレジットカードでお支払い頂けます♪ 詳しくはお気軽にお問合せご相談下さいませ。 グローバルインクがお贈りする3大無料サービスをぜひご利用ください! ●3大サービスその1 超レア!未公開・企画段階物件情報ご紹介サービス 当社ホームページより会員登録ください。ネット・メルマガにすら開示できない超レア情報をお届けします。 ●3大サービスその2 不動産購入・ミニセミナー無料受講 不動産を探し始めの方、安心購入への具体的行動プランをお教えします。 契約書、重要事項説明書などの見方、瑕疵物件の判別方法など、不利な契約から身を守り、安心な物件購入ができるようにノウハウを伝授します! **セカンド・オピニオンサービス始めました!** ●3大サービスその3 ライフプランニング相談会無料開催 安心購入の為には、住宅ローンのことだけではなく、資金的に安心できる人生設計が必要になります。 お子様の学費、住宅のリフォーム、突発的な出費、そして夢の海外旅行など、すべての資金計画を一度してみることをお勧めします。 今なら無料で専門のファイナンシャル・プランナーが御相談にあずかります。 詳しくは当社「3大無料サービス」係まで TEL:03-5790-9204 |
||
| 取扱会社 |
|
||
担当者からのメッセージ Message
京王線「上北沢」駅徒歩3分です。5階建3階部分・西向き角住戸!建物2003年築の新耐震基準適合♪安心セキュリティオートロック・TVモニターインターフォン付き!安全面もしっかり確保!便利なアイテムの宅配ボックス付き!ご不在時でも安心ですね。バルコニーの前は低層住居が広がります◎周辺には、コンビニ・スーパーなどの商業施設があり生活環境も非常に充実しております。
お電話のお問い合わせはこちらから
03-5790-9204
営業時間:9:30~20:00
定休日:毎週/火曜日・水曜日
-
〒150-0046 東京都渋谷区松濤2丁目7-12
-
検討中リストに追加
- お問い合わせ
ローンシミュレーション Simulation
この物件を購入した場合の、月々の支払い価格の一例です。借り入れを保証するものではございません。
- 返済期間
-
- 金利
-
- ボーナス時の増額(1回分)
-
- 借入金額:
-
- 頭金:
-
(※元利均等方式 金利5.00%まで ※返済年数5~35年まで入力できます)
(※ボーナスは年2回で計算しています。1000万円まで入力できます)
(※物件購入時、その他諸費用が発生する場合がございます)
- 毎月の返済額
おすすめ物件 Recommended Property
-
- アンバサダー三軒茶屋
- 6,199万円/1LDK/46.41㎡
- 東京都世田谷区三軒茶屋1丁目
- 東急田園都市線「三軒茶屋」駅 徒歩3分
-
- グランドメゾン駒沢
- 6,190万円/2LDK/55.48㎡
- 東京都世田谷区駒沢2丁目
- 東急田園都市線「駒沢大学」駅 徒歩4分
-
- ライオンズマンション二子玉川
- 6,580万円/1R/53.11㎡
- 東京都世田谷区玉川3丁目
- 東急田園都市線「二子玉川」駅 徒歩8分
-
- 上用賀スカイマンション
- 6,799万円/3LDK/75.49㎡
- 東京都世田谷区上用賀3丁目
- 東急田園都市線「用賀」駅 徒歩10分
-
- アルファステイツ世田谷一丁目
- 6,880万円/1LDK/53.00㎡
- 東京都世田谷区世田谷1丁目
- 東急世田谷線「松陰神社前」駅 徒歩5分
周辺施設情報 Spot

- 小さなおうち保育園
- 約279m/4分

- いずみの園保育園
- 約452m/6分

- みんなのおうち保育園
- 約498m/7分

- 松沢幼稚園
- 約180m/3分

- 八幡山幼稚園
- 約1317m/17分

- 関田学園芦花幼稚園
- 約1880m/24分

- 世田谷区立上北沢小学校
- 約626m/8分

- 世田谷区立八幡山小学校
- 約1134m/15分

- 杉並区立高井戸第三小学校
- 約1055m/14分

- 上北沢3丁目公園
- 約347m/5分

- 世田谷区立上北沢公園
- 約536m/7分

- 世田谷区立桜上水公園
- 約435m/6分

- まいばすけっと上北沢4丁目
- 約252m/4分

- サミットストア上北沢店
- 約241m/4分

- まいばすけっと下高井戸5丁目
- 約586m/8分

- 下高井戸駅前市場
- 約1889m/24分

- ダイソー 京王リトナード八幡山店
- 約900m/12分

- ファミリーマート 上北沢駅前南口店
- 約194m/3分

- セブン-イレブン 世田谷上北沢駅前店
- 約163m/3分

- 東京都立松沢病院
- 約1180m/15分
お電話のお問い合わせはこちらから
03-5790-9204
営業時間:9:30~20:00
定休日:毎週/火曜日・水曜日
-
〒150-0046 東京都渋谷区松濤2丁目7-12
-
検討中リストに追加
- お問い合わせ
※地図上に表示される物件の位置は付近住所に所在することを表すものであり、実際の物件所在地とは異なる場合がございます。













