杉並区永福4丁目 中古戸建
京王井の頭線 「永福町」駅 徒歩8分です。拝みたくなる神々しさ!RCの曲線美、豪華アトリエ。住むだけで感性が磨かれる「住める美術館」で凡人卒業のチャンス!リフォーム済みの美宅を現地で体感!魅力で溢れている内装◎緑豊かな環境も良し◎周辺には、コンビニ・スーパーなどの商業施設もございます、生活環境も非常に充実しております。また「永福町」駅は、治安が良く、落ち着いた住環境で知られるエリアです。
- 価格
- 2億9,800万円
- ローンの目安
- 78.7万円/月
- 交通
- 京王井の頭線「永福町」駅 徒歩8分
- 建物面積(坪数)
- 246.51㎡(74.56坪)
- 間取り/専有面積
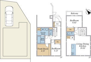
- 4LDK / 246.51㎡
お電話のお問い合わせはこちらから
03-5790-9204
営業時間:9:30~20:00
定休日:毎週/火曜日・水曜日
-
〒150-0046 東京都渋谷区松濤2丁目7-12
-
検討中リストに追加
- お問い合わせ
物件概要 Property Detail
情報の見方| 所在地 | 東京都杉並区永福4丁目 | ||
|---|---|---|---|
| 交通 | |||
| 間取り/詳細 |
4LDK/ LDK 21.0帖 1室/洋室 4.5帖 1室/洋室 6.5帖 1室/洋室 7.0帖 1室/洋室 6.0帖 1室 |
建物面積(坪数) | 246.51㎡(74.56坪 |
| 価格 | 2億9,800万円 | ||
| 駐車場/月額料金 | 有/0円 | ||
| 土地の敷金/保証金 | -/- | 借地料/借地期間 | -/- |
| 土地権利 | 所有権 | 土地面積(坪数) | 166.00㎡(50.21坪) |
| 傾斜地部分面積 | - | 路地状敷地 | - |
| 私道負担面積/セットバック | -/無 | 高圧線下面積 | - |
| 地目/地勢 | 宅地/- | 接道状況 | 一方(北 公道 3.9m) |
| 建ぺい率/容積率 | 70%/160% | 用途地域 | 第一種低層住居専用 |
| 都市計画 | 市街化区域 | 種別/構造 | 中古一戸建/鉄筋コンクリート |
| 階建 | 3階建 地下1階 | 築年月(築年数) | 1992年 7月 (築33年) |
| 総区画数/販売区画数 | -/1区画 | 向き | 北 |
| 現況 | 空家 | その他の法令上の制限 | 高度利用地区/準防火地域 |
| 取引態様/引渡時期 | 仲介/相談 | 建築確認番号 | - |
| 物件番号 | 101638880 | 取引条件の有効期限 | 2026年04月24日 |
| リフォーム |
2025年9月 キッチン 浴室 トイレ 壁 床 全室 |
||
| リノベーション |
2025年9月 キッチン 浴室 トイレ 壁 床 全室 |
||
| 設備条件 |
|
||
| 備考 |
グローバルインクでは初期費用の一部をクレジットカードでお支払い頂けます♪ 詳しくはお気軽にお問合せご相談下さいませ。 グローバルインクがお贈りする3大無料サービスをぜひご利用ください! ●3大サービスその1 超レア!未公開・企画段階物件情報ご紹介サービス 当社ホームページより会員登録ください。ネット・メルマガにすら開示できない超レア情報をお届けします。 ●3大サービスその2 不動産購入・ミニセミナー無料受講 不動産を探し始めの方、安心購入への具体的行動プランをお教えします。 契約書、重要事項説明書などの見方、瑕疵物件の判別方法など、不利な契約から身を守り、安心な物件購入ができるようにノウハウを伝授します! **セカンド・オピニオンサービス始めました!** ●3大サービスその3 ライフプランニング相談会無料開催 安心購入の為には、住宅ローンのことだけではなく、資金的に安心できる人生設計が必要になります。 お子様の学費、住宅のリフォーム、突発的な出費、そして夢の海外旅行など、すべての資金計画を一度してみることをお勧めします。 今なら無料で専門のファイナンシャル・プランナーが御相談にあずかります。 詳しくは当社「3大無料サービス」係まで TEL:03-5790-9204 |
||
| 取扱会社 |
|
||
担当者からのメッセージ Message
京王井の頭線 「永福町」駅 徒歩8分です。拝みたくなる神々しさ!RCの曲線美、豪華アトリエ。住むだけで感性が磨かれる「住める美術館」で凡人卒業のチャンス!リフォーム済みの美宅を現地で体感!魅力で溢れている内装◎緑豊かな環境も良し◎周辺には、コンビニ・スーパーなどの商業施設もございます、生活環境も非常に充実しております。また「永福町」駅は、治安が良く、落ち着いた住環境で知られるエリアです。
お電話のお問い合わせはこちらから
03-5790-9204
営業時間:9:30~20:00
定休日:毎週/火曜日・水曜日
-
〒150-0046 東京都渋谷区松濤2丁目7-12
-
検討中リストに追加
- お問い合わせ
ローンシミュレーション Simulation
この物件を購入した場合の、月々の支払い価格の一例です。借り入れを保証するものではございません。
- 返済期間
-
- 金利
-
- ボーナス時の増額(1回分)
-
- 借入金額:
-
- 頭金:
-
(※元利均等方式 金利5.00%まで ※返済年数5~35年まで入力できます)
(※ボーナスは年2回で計算しています。1000万円まで入力できます)
(※物件購入時、その他諸費用が発生する場合がございます)
- 毎月の返済額
おすすめ物件 Recommended Property
-
- 杉並区阿佐谷南1丁目 新築戸建
- 1億4,800万円/4LDK/138.98㎡
- 東京都杉並区阿佐谷南1丁目
- 中央線「阿佐ケ谷」駅 徒歩11分
-
- 杉並区和田2丁目 中古戸建
- 1億3,900万円/4LDK/139.74㎡
- 東京都杉並区和田2丁目
- 丸ノ内線「東高円寺」駅 徒歩11分
-
- 杉並区浜田山1丁目 新築戸建
- 1億3,390万円/3LDK/79.28㎡
- 東京都杉並区浜田山1丁目
- 京王井の頭線「西永福」駅 徒歩10分
-
- 杉並区松ノ木2丁目 新築戸建
- 1億1,280万円/3LDK/142.93㎡
- 東京都杉並区松ノ木2丁目
- 丸ノ内線「新高円寺」駅 徒歩14分
-
- 杉並区松庵1丁目 中古戸建
- 9,690万円/3LDK/86.72㎡
- 東京都杉並区松庵1丁目
- 京王井の頭線「三鷹台」駅 徒歩7分
周辺施設情報 Spot

- 永福北保育園
- 約223m/3分

- ぴっぴのもり保育園
- 約400m/5分

- キッズガーデン杉並和泉
- 約537m/7分

- 高千穂大学 高千穂幼稚園
- 約696m/9分

- くまの幼稚園
- 約837m/11分

- レストナック幼稚園
- 約1073m/14分

- 杉並区立大宮小学校
- 約756m/10分

- 杉並区立松ノ木小学校
- 約898m/12分

- 杉並区立済美小学校
- 約1018m/13分

- 永福北公園
- 約149m/2分

- 玉川上水永泉寺緑地
- 約174m/3分

- 杉並区立和泉西公園
- 約534m/7分

- キッチンコート永福町店
- 約690m/9分

- カルディコーヒーファーム 永福町店
- 約690m/9分

- サミットストア西永福店
- 約736m/10分

- 京王リトナード永福町
- 約690m/9分

- フレンテ明大前
- 約1859m/24分

- ファミリーマート 杉並永福四丁目店
- 約161m/3分

- スリーエイト 永福北口店
- 約337m/5分

- 浜田山病院
- 約1066m/14分
お電話のお問い合わせはこちらから
03-5790-9204
営業時間:9:30~20:00
定休日:毎週/火曜日・水曜日
-
〒150-0046 東京都渋谷区松濤2丁目7-12
-
検討中リストに追加
- お問い合わせ
※地図上に表示される物件の位置は付近住所に所在することを表すものであり、実際の物件所在地とは異なる場合がございます。













