中野区本町5丁目 中古戸建
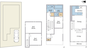
【丸ノ内線「新中野」駅徒歩8分、2路線利用可の車庫付3LDK】丸ノ内方南支線「中野新橋」駅徒歩5分、2016年築+建物面積73.69平米。西側を幅員4mの公道に面しお車の出し入れラクラクです。家事動線に優れたU字型対面式システムキッチンを採用。全室2面彩光の設計につき家中快適に過ごせます。整形地につき使いやすい間取を実現しています。
- 価格
- 7,500万円
- ローンの目安
- 19.8万円/月
- 交通
- 丸ノ内線「新中野」駅 徒歩8分
- 建物面積(坪数)
- 73.69㎡(22.29坪)
- 間取り/専有面積
- 3LDK / 73.69㎡
お電話のお問い合わせはこちらから
03-5790-9204
営業時間:9:30~20:00
定休日:毎週/火曜日・水曜日
-
〒150-0046 東京都渋谷区松濤2丁目7-12
-
検討中リストに追加
- お問い合わせ
物件概要 Property Detail
情報の見方| 所在地 | 東京都中野区本町5丁目 | ||
|---|---|---|---|
| 交通 | |||
| 間取り/詳細 |
3LDK/ B1階2洋室は納戸申請 |
建物面積(坪数) | 73.69㎡(22.29坪 |
| 価格 | 7,500万円 | ||
| 駐車場/月額料金 | 有(1台)/0円 | ||
| 土地の敷金/保証金 | -/- | 借地料/借地期間 | -/- |
| 土地権利 | 所有権 | 土地面積(坪数) | 56.19㎡(16.99坪) |
| 傾斜地部分面積 | - | 路地状敷地 | - |
| 私道負担面積/セットバック | -/済 | 高圧線下面積 | - |
| 地目/地勢 | 宅地/平坦 | 接道状況 | 一方(西 公道 4.0m) |
| 建ぺい率/容積率 | 60%/200% | 用途地域 | 第一種中高層住居専用 |
| 都市計画 | 市街化区域 | 種別/構造 | 中古一戸建/木造 |
| 階建 | 2階建 地下1階 | 築年月(築年数) | 2016年 8月 (築9年) |
| 総区画数/販売区画数 | 1区画/1区画 | 向き | 西 |
| 現況 | 空家 | その他の法令上の制限 | 高度地区/日影制限有/道路斜線制限、北側斜線制限 |
| 取引態様/引渡時期 | 仲介/相談 | 建築確認番号 | - |
| 物件番号 | 92668824 | 取引条件の有効期限 | 2026年05月04日 |
| 設備条件 |
|
||
| 備考 |
グローバルインクでは初期費用の一部をクレジットカードでお支払い頂けます♪ 詳しくはお気軽にお問合せご相談下さいませ。 グローバルインクがお贈りする3大無料サービスをぜひご利用ください! ●3大サービスその1 超レア!未公開・企画段階物件情報ご紹介サービス 当社ホームページより会員登録ください。ネット・メルマガにすら開示できない超レア情報をお届けします。 ●3大サービスその2 不動産購入・ミニセミナー無料受講 不動産を探し始めの方、安心購入への具体的行動プランをお教えします。 契約書、重要事項説明書などの見方、瑕疵物件の判別方法など、不利な契約から身を守り、安心な物件購入ができるようにノウハウを伝授します! **セカンド・オピニオンサービス始めました!** ●3大サービスその3 ライフプランニング相談会無料開催 安心購入の為には、住宅ローンのことだけではなく、資金的に安心できる人生設計が必要になります。 お子様の学費、住宅のリフォーム、突発的な出費、そして夢の海外旅行など、すべての資金計画を一度してみることをお勧めします。 今なら無料で専門のファイナンシャル・プランナーが御相談にあずかります。 詳しくは当社「3大無料サービス」係まで TEL:03-5790-9204 |
||
| 取扱会社 |
|
||
担当者からのメッセージ Message
【丸ノ内線「新中野」駅徒歩8分、2路線利用可の車庫付3LDK】丸ノ内方南支線「中野新橋」駅徒歩5分、2016年築+建物面積73.69平米。西側を幅員4mの公道に面しお車の出し入れラクラクです。家事動線に優れたU字型対面式システムキッチンを採用。全室2面彩光の設計につき家中快適に過ごせます。整形地につき使いやすい間取を実現しています。
丸ノ内線「新中野」駅徒歩8分。丸ノ内方南支線「中野新橋」駅も徒歩5分でアクセス良好です。小中学校や保育施設が徒歩5分以内。スーパーやコンビニが徒歩5分以内に豊富で便利です。
お電話のお問い合わせはこちらから
03-5790-9204
営業時間:9:30~20:00
定休日:毎週/火曜日・水曜日
-
〒150-0046 東京都渋谷区松濤2丁目7-12
-
検討中リストに追加
- お問い合わせ
ローンシミュレーション Simulation
この物件を購入した場合の、月々の支払い価格の一例です。借り入れを保証するものではございません。
- 返済期間
-
- 金利
-
- ボーナス時の増額(1回分)
-
- 借入金額:
-
- 頭金:
-
(※元利均等方式 金利5.00%まで ※返済年数5~35年まで入力できます)
(※ボーナスは年2回で計算しています。1000万円まで入力できます)
(※物件購入時、その他諸費用が発生する場合がございます)
- 毎月の返済額
おすすめ物件 Recommended Property
-
- 中野区野方6丁目 中古戸建
- 6,680万円/1LDK/75.95㎡
- 東京都中野区野方6丁目
- 西武新宿線「野方」駅 徒歩4分
-
- 中野区中央4丁目 新築戸建
- 8,799万円/3LDK/87.59㎡
- 東京都中野区中央4丁目
- 中央線「中野」駅 徒歩10分
-
- 中野区東中野2丁目 中古戸建
- 1億1,000万円/4K/82.18㎡
- 東京都中野区東中野2丁目
- 総武線「東中野」駅 徒歩3分
-
- 中野区中央3丁目 新築戸建
- 1億1,680万円/4LDK/122.30㎡
- 東京都中野区中央3丁目
- 丸ノ内線「新中野」駅 徒歩10分
-
- 中野区南台2丁目 新築戸建
- 1億3,300万円/2LDK/115.42㎡
- 東京都中野区南台2丁目
- 京王線「幡ヶ谷」駅 徒歩13分
周辺施設情報 Spot

- 中野区立第二中学校
- 約131m/2分

- 中野区立宮の台保育園
- 約237m/3分

- 中野区立中野本郷小学校
- 約345m/5分

- 中野区立 千代田公園
- 約295m/4分

- まいばすけっと 中野新橋駅北店
- 約297m/4分

- 中野区立本五ふれあい公園
- 約350m/5分

- セブン-イレブン 中野鍋横店
- 約289m/4分

- 中野本町五郵便局
- 約318m/4分

- 業務スーパー 中野弥生町
- 約371m/5分

- 新中野テニスコート
- 約264m/4分

- 本五ふれあい公園多目的運動場
- 約350m/5分

- コンビプラザ弥生町保育園
- 約360m/5分

- 中野区立弥生ポケットパーク
- 約430m/6分

- まいばすけっと 中野十貫坂上店
- 約332m/5分

- セブン-イレブン 中野新橋店
- 約374m/5分

- ファミリーマート 中野弥生町二丁目店
- 約328m/5分

- 中野区立宮の台児童館
- 約397m/5分

- ファミリーマート 薬ヒグチ中野新橋駅前店
- 約445m/6分

- 中野区立鍋横保育園
- 約379m/5分

- 中野新橋駅前郵便局
- 約452m/6分
お電話のお問い合わせはこちらから
03-5790-9204
営業時間:9:30~20:00
定休日:毎週/火曜日・水曜日
-
〒150-0046 東京都渋谷区松濤2丁目7-12
-
検討中リストに追加
- お問い合わせ
※地図上に表示される物件の位置は付近住所に所在することを表すものであり、実際の物件所在地とは異なる場合がございます。













