世田谷区上馬2丁目 中古戸建
東急田園都市線「三軒茶屋」駅徒歩10分です。南東道路につき陽当り良好!駅までもフラットです。閑静な住宅街になっておりますので、暮らしやすいです。浴室は、一坪!ゆとりのある広さがありますので、疲れた身体もゆっくり休めます◎最寄りの、三軒茶屋は交通の便が良いこと、商業施設や飲食店が充実していること、駅周辺は活気があり、少し離れると落ち着いた住宅街が広がっており、幅広い世代に人気があります。
- 価格
- 8,980万円
- ローンの目安
- 23.7万円/月
- 交通
- 東急田園都市線「三軒茶屋」駅 徒歩10分
- 建物面積(坪数)
- 83.59㎡(25.28坪)
- 間取り/専有面積
- 2LDK+1S(納戸) / 83.59㎡
お電話のお問い合わせはこちらから
03-5790-9204
営業時間:9:30~20:00
定休日:毎週/火曜日・水曜日
-
〒150-0046 東京都渋谷区松濤2丁目7-12
-
検討中リストに追加
- お問い合わせ
物件概要 Property Detail
情報の見方| 所在地 | 東京都世田谷区上馬2丁目 | ||
|---|---|---|---|
| 交通 | |||
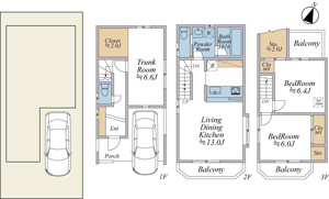
| 間取り/詳細 |
2LDK+1S(納戸)/ LDK 13.0帖 1室/洋室 6.4帖 1室/洋室 6.0帖 1室/S 6.6帖 1室 |
建物面積(坪数) | 83.59㎡(25.28坪 |
| 価格 | 8,980万円 | ||
| 駐車場/月額料金 | 有/- | ||
| 土地の敷金/保証金 | -/- | 借地料/借地期間 | -/- |
| 土地権利 | 所有権 | 土地面積(坪数) | 55.62㎡(16.82坪) |
| 傾斜地部分面積 | - | 路地状敷地 | - |
| 私道負担面積/セットバック | -/無 | 高圧線下面積 | - |
| 地目/地勢 | 宅地/- | 接道状況 | 一方(南東 3.7m) |
| 建ぺい率/容積率 | 60%/200% | 用途地域 | 第一種中高層住居専用 |
| 都市計画 | 市街化区域 | 種別/構造 | 中古一戸建/木造 |
| 階建 | 3階建 | 築年月(築年数) | 2001年 1月 (築25年) |
| 総区画数/販売区画数 | 1区画/- | 向き | 南東 |
| 現況 | 居住中 | その他の法令上の制限 | 高度利用地区/準防火地域 |
| 取引態様/引渡時期 | 仲介/相談 | 建築確認番号 | - |
| 物件番号 | 94146557 | 取引条件の有効期限 | 2026年02月27日 |
| 設備条件 |
|
||
| 備考 |
グローバルインクでは初期費用の一部をクレジットカードでお支払い頂けます♪ 詳しくはお気軽にお問合せご相談下さいませ。 グローバルインクがお贈りする3大無料サービスをぜひご利用ください! ●3大サービスその1 超レア!未公開・企画段階物件情報ご紹介サービス 当社ホームページより会員登録ください。ネット・メルマガにすら開示できない超レア情報をお届けします。 ●3大サービスその2 不動産購入・ミニセミナー無料受講 不動産を探し始めの方、安心購入への具体的行動プランをお教えします。 契約書、重要事項説明書などの見方、瑕疵物件の判別方法など、不利な契約から身を守り、安心な物件購入ができるようにノウハウを伝授します! **セカンド・オピニオンサービス始めました!** ●3大サービスその3 ライフプランニング相談会無料開催 安心購入の為には、住宅ローンのことだけではなく、資金的に安心できる人生設計が必要になります。 お子様の学費、住宅のリフォーム、突発的な出費、そして夢の海外旅行など、すべての資金計画を一度してみることをお勧めします。 今なら無料で専門のファイナンシャル・プランナーが御相談にあずかります。 詳しくは当社「3大無料サービス」係まで TEL:03-5790-9204 |
||
| 取扱会社 |
|
||
担当者からのメッセージ Message
東急田園都市線「三軒茶屋」駅徒歩10分です。南東道路につき陽当り良好!駅までもフラットです。閑静な住宅街になっておりますので、暮らしやすいです。浴室は、一坪!ゆとりのある広さがありますので、疲れた身体もゆっくり休めます◎最寄りの、三軒茶屋は交通の便が良いこと、商業施設や飲食店が充実していること、駅周辺は活気があり、少し離れると落ち着いた住宅街が広がっており、幅広い世代に人気があります。
お電話のお問い合わせはこちらから
03-5790-9204
営業時間:9:30~20:00
定休日:毎週/火曜日・水曜日
-
〒150-0046 東京都渋谷区松濤2丁目7-12
-
検討中リストに追加
- お問い合わせ
ローンシミュレーション Simulation
この物件を購入した場合の、月々の支払い価格の一例です。借り入れを保証するものではございません。
- 返済期間
-
- 金利
-
- ボーナス時の増額(1回分)
-
- 借入金額:
-
- 頭金:
-
(※元利均等方式 金利5.00%まで ※返済年数5~35年まで入力できます)
(※ボーナスは年2回で計算しています。1000万円まで入力できます)
(※物件購入時、その他諸費用が発生する場合がございます)
- 毎月の返済額
おすすめ物件 Recommended Property
-
- 世田谷区上祖師谷6丁目 新築戸建
- 8,880万円/3LDK/91.08㎡
- 東京都世田谷区上祖師谷6丁目
- 京王線「千歳烏山」駅 徒歩12分
-
- 世田谷区千歳台4丁目 新築戸建
- 9,180万円/3LDK/96.87㎡
- 東京都世田谷区千歳台4丁目
- 小田急小田原線「千歳船橋」駅 徒歩21分
-
- 世田谷区中町3丁目 借地権付き中古戸建
- 8,500万円/4LDK/152.01㎡
- 東京都世田谷区中町3丁目
- 東急大井町線「等々力」駅 徒歩10分
-
- 世田谷区南烏山5丁目 中古戸建
- 8,500万円/4LDK/132.41㎡
- 東京都世田谷区南烏山5丁目
- 京王線「千歳烏山」駅 徒歩7分
-
- 世田谷区南鳥山1丁目 新築戸建
- 8,480万円/2LDK/107.89㎡
- 東京都世田谷区南烏山1丁目
- 京王線「芦花公園」駅 徒歩9分
周辺施設情報 Spot

- フロンティアキッズ上馬
- 約152m/2分

- ふたばクラブ三軒茶屋保育園
- 約308m/4分

- モニカ三軒茶屋園
- 約293m/4分

- 上馬二丁目公園
- 約206m/3分

- 世田谷区立上馬北公園
- 約159m/2分

- 世田谷区立上馬塩田緑地
- 約236m/3分

- 世田谷若葉幼稚園
- 約831m/11分

- モンテッソーリ世田谷子供の家
- 約922m/12分

- 世田谷幼稚園
- 約963m/13分

- 世田谷区立三軒茶屋小学校
- 約419m/6分

- 世田谷区立旭小学校
- 約881m/12分

- 世田谷区立中里小学校
- 約817m/11分

- マルエツ 中里店
- 約193m/3分

- セブンイレブン世田谷上馬2丁目店
- 約281m/4分

- ファミリーマート 世田谷上馬一丁目店
- 約285m/4分

- セブン-イレブン 三軒茶屋病院前店
- 約345m/5分

- 世田谷警察所
- 約170m/3分

- 世田谷上馬一郵便局
- 約270m/4分

- 三軒茶屋病院
- 約311m/4分

- 城南信用金庫 駒沢支店
- 約671m/9分
お電話のお問い合わせはこちらから
03-5790-9204
営業時間:9:30~20:00
定休日:毎週/火曜日・水曜日
-
〒150-0046 東京都渋谷区松濤2丁目7-12
-
検討中リストに追加
- お問い合わせ
※地図上に表示される物件の位置は付近住所に所在することを表すものであり、実際の物件所在地とは異なる場合がございます。













