大田区西蒲田6丁目 新築戸建
【蓮沼駅徒歩2分、3路線利用可、和モダンホテルライクな内装】東急池上線「蓮沼」駅徒歩2分。JR京浜東北線「蒲田」駅も徒歩12分とアクセス良好。2階のLDK部分は、3面採光で陽当たり良好+17帖あるのでゆったり快適にお過ごしいただけます。セカンド手洗い・浴室暖房乾燥・宅配ボックス付きと、設備が充実。周辺環境も充実しており、日常的なお買い物が便利です。総合病院まで徒歩4分と万一の時も安心です。
- 価格
- 7,580万円
- ローンの目安
- 20万円/月
- 交通
- 東急池上線「蓮沼」駅 徒歩2分
- 建物面積(坪数)
- 97.08㎡(29.36坪)
- 間取り/専有面積
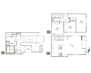
- 3LDK / 97.08㎡
お電話のお問い合わせはこちらから
03-5790-9204
営業時間:9:30~20:00
定休日:毎週/火曜日・水曜日
-
〒150-0046 東京都渋谷区松濤2丁目7-12
-
検討中リストに追加
- お問い合わせ
物件概要 Property Detail
情報の見方| 所在地 | 東京都大田区西蒲田6丁目 | ||
|---|---|---|---|
| 交通 | |||
| 間取り/詳細 |
3LDK/ LDK 17.1帖/洋室 6.6帖/洋室 4.5帖/洋室 3.9帖 |
建物面積(坪数) | 97.08㎡(29.36坪 |
| 価格 | 7,580万円 | ||
| 駐車場/月額料金 | 有(1台)/0円 | ||
| 土地の敷金/保証金 | -/- | 借地料/借地期間 | -/- |
| 土地権利 | 所有権 | 土地面積(坪数) | 48.05㎡(14.53坪) |
| 傾斜地部分面積 | - | 路地状敷地 | - |
| 私道負担面積/セットバック | -/無 | 高圧線下面積 | - |
| 地目/地勢 | 宅地/- | 接道状況 | 一方(北東 公道 7.1m) |
| 建ぺい率/容積率 | 80%/300% | 用途地域 | 近隣商業 |
| 都市計画 | 市街化区域 | 種別/構造 | 新築一戸建/木造 |
| 階建 | 3階建 | 築年月(築年数) | 2025年 12月 (予定) |
| 総区画数/販売区画数 | -/- | 向き | - |
| 現況 | 未完成 | その他の法令上の制限 | 景観法/新防火地域、宅地造成等工事規制区域 |
| 取引態様/引渡時期 | 仲介/相談 | 建築確認番号 | 第2025SBC-確00529H号 |
| 物件番号 | 96073773 | 取引条件の有効期限 | 2025年12月15日 |
| 設備条件 |
|
||
| 備考 |
グローバルインクでは初期費用の一部をクレジットカードでお支払い頂けます♪ 詳しくはお気軽にお問合せご相談下さいませ。 グローバルインクがお贈りする3大無料サービスをぜひご利用ください! ●3大サービスその1 超レア!未公開・企画段階物件情報ご紹介サービス 当社ホームページより会員登録ください。ネット・メルマガにすら開示できない超レア情報をお届けします。 ●3大サービスその2 不動産購入・ミニセミナー無料受講 不動産を探し始めの方、安心購入への具体的行動プランをお教えします。 契約書、重要事項説明書などの見方、瑕疵物件の判別方法など、不利な契約から身を守り、安心な物件購入ができるようにノウハウを伝授します! **セカンド・オピニオンサービス始めました!** ●3大サービスその3 ライフプランニング相談会無料開催 安心購入の為には、住宅ローンのことだけではなく、資金的に安心できる人生設計が必要になります。 お子様の学費、住宅のリフォーム、突発的な出費、そして夢の海外旅行など、すべての資金計画を一度してみることをお勧めします。 今なら無料で専門のファイナンシャル・プランナーが御相談にあずかります。 詳しくは当社「3大無料サービス」係まで TEL:03-5790-9204 |
||
| 取扱会社 |
|
||
担当者からのメッセージ Message
【蓮沼駅徒歩2分、3路線利用可、和モダンホテルライクな内装】東急池上線「蓮沼」駅徒歩2分。JR京浜東北線「蒲田」駅も徒歩12分とアクセス良好。2階のLDK部分は、3面採光で陽当たり良好+17帖あるのでゆったり快適にお過ごしいただけます。セカンド手洗い・浴室暖房乾燥・宅配ボックス付きと、設備が充実。周辺環境も充実しており、日常的なお買い物が便利です。総合病院まで徒歩4分と万一の時も安心です。
東急池上線「蓮沼」駅徒歩2分。JR京浜東北線「蒲田」駅、東急多摩川線「矢口渡」駅も徒歩12分とアクセス良好。3駅3路線使える好立地。周辺は保育施設が豊富で、小学校まで徒歩6分以内。コンビニまで徒歩2分以内、スーパーまで徒歩8分以内と買い物も便利。
お電話のお問い合わせはこちらから
03-5790-9204
営業時間:9:30~20:00
定休日:毎週/火曜日・水曜日
-
〒150-0046 東京都渋谷区松濤2丁目7-12
-
検討中リストに追加
- お問い合わせ
ローンシミュレーション Simulation
この物件を購入した場合の、月々の支払い価格の一例です。借り入れを保証するものではございません。
- 返済期間
-
- 金利
-
- ボーナス時の増額(1回分)
-
- 借入金額:
-
- 頭金:
-
(※元利均等方式 金利5.00%まで ※返済年数5~35年まで入力できます)
(※ボーナスは年2回で計算しています。1000万円まで入力できます)
(※物件購入時、その他諸費用が発生する場合がございます)
- 毎月の返済額
おすすめ物件 Recommended Property
-
- 大田区中央6丁目 新築戸建
- 7,880万円/5LDK/117.66㎡
- 東京都大田区中央6丁目
- 東急池上線「池上」駅 徒歩13分
-
- 大田区大森東4丁目 中古戸建
- 6,990万円/4LDK/92.36㎡
- 東京都大田区大森東4丁目
- 京急本線「梅屋敷」駅 徒歩11分
-
- 大田区南馬込4丁目 中古戸建
- 6,980万円/2LDK/80.51㎡
- 東京都大田区南馬込4丁目
- 都営浅草線「西馬込」駅 徒歩15分
-
- 大田区千鳥2丁目 中古戸建
- 6,880万円/3LDK/84.26㎡
- 東京都大田区千鳥2丁目
- 東急多摩川線「武蔵新田」駅 徒歩3分
-
- 大田区南馬込3丁目 新築戸建
- 8,590万円/3LDK/85.08㎡
- 東京都大田区南馬込3丁目
- 京浜東北線「大森」駅 徒歩15分
周辺施設情報 Spot

- 大田区立相生小学校
- 約424m/6分

- 大田区立御園中学校
- 約762m/10分

- 東矢口一丁目児童公園
- 約85m/2分

- キッズラボ蓮沼園
- 約252m/4分

- はなぞの保育室
- 約334m/5分

- 矢口幼稚園
- 約441m/6分

- はすぬま温泉
- 約40m/1分

- 蓮沼ジュニア児童公園
- 約94m/2分

- ファミリーマート 蓮沼駅西店
- 約147m/2分

- ローソン・スリーエフ 大田蓮沼駅前店
- 約247m/4分

- 蓮沼児童館
- 約214m/3分

- セブン-イレブン 蓮沼店
- 約275m/4分

- 本多病院
- 約287m/4分

- 池上徳持南児童公園
- 約324m/5分

- 西蒲田相生児童公園
- 約365m/5分

- 東京蒲田病院
- 約409m/6分

- ライフ西蒲田店
- 約571m/8分

- まいばすけっと東矢口1丁目店
- 約466m/6分

- まいばすけっと蒲田駅西店
- 約529m/7分

- 大田池上六郵便局
- 約542m/7分
お電話のお問い合わせはこちらから
03-5790-9204
営業時間:9:30~20:00
定休日:毎週/火曜日・水曜日
-
〒150-0046 東京都渋谷区松濤2丁目7-12
-
検討中リストに追加
- お問い合わせ
※地図上に表示される物件の位置は付近住所に所在することを表すものであり、実際の物件所在地とは異なる場合がございます。













