品川区旗の台4丁目 中古戸建の過去掲載物件情報現況の確認はお気軽にお問い合わせください。
| 所在地 | 東京都品川区旗の台4丁目 | ||
|---|---|---|---|
| 交通 | |||
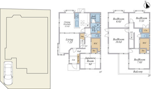
| 築年月(築年数) | 1995年 3月 ( 築30年 ) | 種別/構造 | 中古一戸建/軽量鉄骨 |
| 設備条件 |
|
||
【外観】2025年7月25日撮影
【公式】グローバルインク株式会社|目黒・渋谷の一戸建て情報満載 > 品川区旗の台4丁目 中古戸建
| 所在地 | 東京都品川区旗の台4丁目 | ||
|---|---|---|---|
| 交通 | |||
| 築年月(築年数) | 1995年 3月 ( 築30年 ) | 種別/構造 | 中古一戸建/軽量鉄骨 |
| 設備条件 |
|
||
【外観】2025年7月25日撮影
件
件
