世田谷区代田2丁目 建築条件なし土地
【世田谷代田の閑静な1種低層住宅地、下北沢が生活圏になる46坪超土地】小田急線「世田谷代田」駅より徒歩6分、再開発で生まれ変わった下北沢も徒歩圏内。敷地面積はゆとりある約46坪。幅約4.3mの幅広の公道に面した北向きの土地です。建築条件はありません。落ち着いた1種低層エリアに立地しており住環境良好です。幼稚園・区立小学校へは徒歩10分以内で子育てに適した環境。スーパー徒歩3分で便利です。
- 価格
- 1億8,400万円
- ローンの目安
- 48.6万円/月
- 交通
- 小田急小田原線「世田谷代田」駅 徒歩6分
- 土地面積(坪数)
- 152.96㎡(-)
お電話のお問い合わせはこちらから
03-5790-9204
営業時間:9:30~20:00
定休日:毎週/火曜日・水曜日
-
〒150-0046 東京都渋谷区松濤2丁目7-12
-
検討中リストに追加
- お問い合わせ
物件概要 Property Detail
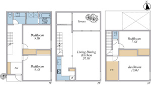
情報の見方| 所在地 | 東京都世田谷区代田2丁目 | ||
|---|---|---|---|
| 交通 | |||
| 価格 | 1億8,400万円 | ||
| 土地の敷金/保証金 | -/- | 借地料/借地期間 | -/- |
| 土地面積(坪数) | 152.96㎡(46.27坪) | 坪単価 | 397.67万円 |
| 私道負担面積/セットバック | -/無 | 高圧線下面積 | - |
| 傾斜地部分面積 | - | 路地状敷地 | - |
| 土地権利 | 所有権 | 接道状況 | 一方(北 公道 4.3m) |
| 都市計画 | 市街化区域 | 用途地域 | 第一種低層住居専用 |
| 建築条件 | 無 | 地目/地勢 | 宅地/- |
| 建ぺい率 | 50% | 容積率 | 150% |
| 総区画数 | 4区画 | 販売区画数 | 1区画 |
| 国土法届出要否 | 不要 | その他の法令上の制限 | 高度地区/準防火地域 |
| 取引態様 | 仲介 | 現況 | 更地 |
| 引渡時期 | 即時 | 引渡条件 | - |
| 最適用途 | 住宅用地 | ||
| 物件番号 | 96929423 | ||
| 設備条件 |
|
取引条件の有効期限 | 2026年01月27日 |
| 備考 |
グローバルインクでは初期費用の一部をクレジットカードでお支払い頂けます♪ 詳しくはお気軽にお問合せご相談下さいませ。 グローバルインクがお贈りする3大無料サービスをぜひご利用ください! ●3大サービスその1 超レア!未公開・企画段階物件情報ご紹介サービス 当社ホームページより会員登録ください。ネット・メルマガにすら開示できない超レア情報をお届けします。 ●3大サービスその2 不動産購入・ミニセミナー無料受講 不動産を探し始めの方、安心購入への具体的行動プランをお教えします。 契約書、重要事項説明書などの見方、瑕疵物件の判別方法など、不利な契約から身を守り、安心な物件購入ができるようにノウハウを伝授します! **セカンド・オピニオンサービス始めました!** ●3大サービスその3 ライフプランニング相談会無料開催 安心購入の為には、住宅ローンのことだけではなく、資金的に安心できる人生設計が必要になります。 お子様の学費、住宅のリフォーム、突発的な出費、そして夢の海外旅行など、すべての資金計画を一度してみることをお勧めします。 今なら無料で専門のファイナンシャル・プランナーが御相談にあずかります。 詳しくは当社「3大無料サービス」係まで TEL:03-5790-9204 |
||
| 取扱会社 |
|
||
担当者からのメッセージ Message
【世田谷代田の閑静な1種低層住宅地、下北沢が生活圏になる46坪超土地】小田急線「世田谷代田」駅より徒歩6分、再開発で生まれ変わった下北沢も徒歩圏内。敷地面積はゆとりある約46坪。幅約4.3mの幅広の公道に面した北向きの土地です。建築条件はありません。落ち着いた1種低層エリアに立地しており住環境良好です。幼稚園・区立小学校へは徒歩10分以内で子育てに適した環境。スーパー徒歩3分で便利です。
小田急線「世田谷代田」駅徒歩6分。新宿駅へ乗換なしでアクセス可。若者の街・下北沢が徒歩圏内。隣の梅丘駅周辺には図書館、保健福祉センター、小中学校など公共施設が集まります。
お電話のお問い合わせはこちらから
03-5790-9204
営業時間:9:30~20:00
定休日:毎週/火曜日・水曜日
-
〒150-0046 東京都渋谷区松濤2丁目7-12
-
検討中リストに追加
- お問い合わせ
ローンシミュレーション Simulation
この物件を購入した場合の、月々の支払い価格の一例です。借り入れを保証するものではございません。
- 返済期間
-
- 金利
-
- ボーナス時の増額(1回分)
-
- 借入金額:
-
- 頭金:
-
(※元利均等方式 金利5.00%まで ※返済年数5~35年まで入力できます)
(※ボーナスは年2回で計算しています。1000万円まで入力できます)
(※物件購入時、その他諸費用が発生する場合がございます)
- 毎月の返済額
おすすめ物件 Recommended Property
-
- 世田谷区奥沢5丁目 建築条件なし土地
- 1億8,800万円/-/99.16㎡
- 東京都世田谷区奥沢5丁目
- 東急目黒線「奥沢」駅 徒歩2分
-
- 世田谷区下馬5丁目 建築条件なし土地
- 2億500万円/-/134.39㎡
- 東京都世田谷区下馬5丁目
- 東急東横線「学芸大学」駅 徒歩10分
-
- 世田谷区代沢1丁目 建築条件なし土地
- 1億5,500万円/-/102.58㎡
- 東京都世田谷区代沢1丁目
- 京王井の頭線「池ノ上」駅 徒歩9分
-
- 世田谷区下馬6丁目 建築条件なし土地
- 2億3,000万円/-/145.64㎡
- 東京都世田谷区下馬6丁目
- 東急東横線「学芸大学」駅 徒歩8分
-
- 世田谷区船橋4丁目 建築条件なし土地
- 1億3,280万円/-/164.78㎡
- 東京都世田谷区船橋4丁目
- 小田急小田原線「千歳船橋」駅 徒歩14分
周辺施設情報 Spot

- 世田谷代田仁慈保幼園
- 約419m/6分

- 代田幼稚園
- 約376m/5分

- 世田谷区立代沢小学校
- 約555m/7分

- 世田谷区立太子堂中学校
- 約1028m/13分

- 新代田スイミングスクール
- 約1052m/14分

- 北沢川緑道
- 約198m/3分

- 世田谷区立代田富士356広場
- 約559m/7分

- 信濃屋食品 食品館
- 約235m/3分

- 農大ショップ 「農の蔵」
- 約557m/7分

- まいばすけっと代沢4丁目店
- 約495m/7分

- セブン-イレブン 世田谷代田1丁目店
- 約310m/4分

- 齋田記念館
- 約436m/6分

- 鴻上医院
- 約1231m/16分

- 三井住友銀行下北沢支店
- 約1007m/13分

- 世田谷代沢郵便局
- 約700m/9分

- 世田谷区立梅丘図書館
- 約984m/13分

- 北沢署 宮前橋交番
- 約468m/6分

- 羽根木公園野球場
- 約1151m/15分

- フォルクス 世田谷代田店
- 約481m/7分

- スターバックスコーヒー 代沢5丁目店
- 約585m/8分
お電話のお問い合わせはこちらから
03-5790-9204
営業時間:9:30~20:00
定休日:毎週/火曜日・水曜日
-
〒150-0046 東京都渋谷区松濤2丁目7-12
-
検討中リストに追加
- お問い合わせ
※地図上に表示される物件の位置は付近住所に所在することを表すものであり、実際の物件所在地とは異なる場合がございます。













