経堂セントラルマンション 6-7階
小田急線「経堂」駅機徒歩7分です。専有面積約106.94㎡の3SLDK。現況空室。2フロアにまたがるメゾネットタイプの物件です。全居室収納やSICなど収納豊富で室内スッキリ。新宿駅まで急行電車利用で3駅の好立地です。また、経堂駅周辺は小田急線沿線でありながら、住宅地部分では比較的静かな環境が保たれています。 商店街エリアでは昼間の活気がある一方、夜間は落ち着いた雰囲気となります。
- 価格
- 7,998万円
- ローンの目安
- 21.1万円/月
- 交通
- 小田急小田原線「経堂」駅 徒歩7分
- 建物面積(坪数)
- 106.94㎡(-)
- 間取り/専有面積
- 3LDK+1S(納戸) / 106.94㎡
お電話のお問い合わせはこちらから
03-5790-9204
営業時間:9:30~20:00
定休日:毎週/火曜日・水曜日
-
〒150-0046 東京都渋谷区松濤2丁目7-12
-
検討中リストに追加
- お問い合わせ
物件概要 Property Detail
情報の見方| 所在地 | 東京都世田谷区経堂1丁目 | ||
|---|---|---|---|
| 交通 | |||
| 間取り/詳細 |
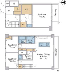
3LDK+1S(納戸) LDK 23.5帖 1室/洋室 8.3帖 1室/洋室 6.0帖 1室/洋室 5.3帖 1室/S 1室 |
||
| 専有面積/バルコニー面積 | 106.94㎡/11.04㎡ | ルーフバルコニー面積/テラス面積/専用庭面積 | -/-/- |
| 価格 | 7,998万円 | ||
| 管理費 | 22,860円 | ||
| 修繕積立金 | 34,868円 | 修繕積立基金 | - |
| 権利金 | - | 駐車場/月額料金 | 空無/0円 専用使用権 1台無償(車種による) |
| 土地の敷金/保証金 | -/- | 借地料/借地期間 | -/- |
| 土地権利 | 所有権 | 国土法届出要否 | 不要 |
| 用途地域 | - | 地勢 | - |
| 種別/構造 | 中古マンション/鉄筋コンクリート | 向き | 南 |
| 築年月(築年数) | 1969年 1月 (築57年) | ||
| 所在階/階建 | 6-7階/8階建 | 棟総戸数/販売戸数 | 56戸/1戸 |
| 管理組合有無 | 有 | 管理形態 | 管理会社に全部委託 |
| 管理方式 | 日勤 | 管理会社 | 日本ハウズイング |
| 取引態様 | 仲介 | 現況 | 空家 |
| 引渡し | 相談 | 建築確認番号 | - |
| 物件番号 | 97048551 | 取引条件の有効期限 | 2026年01月23日 |
| リノベーション |
令和7年9月29日完了予定 キッチン ユニットバス 洗面化粧台 トイレ クロス 床 コンセント・スイッチ 照明器具 建具交換 その他経年劣化による消耗品等の交換 ハウスクリーニング |
||
| 設備条件 |
|
||
| 備考 |
グローバルインクでは初期費用の一部をクレジットカードでお支払い頂けます♪ 詳しくはお気軽にお問合せご相談下さいませ。 グローバルインクがお贈りする3大無料サービスをぜひご利用ください! ●3大サービスその1 超レア!未公開・企画段階物件情報ご紹介サービス 当社ホームページより会員登録ください。ネット・メルマガにすら開示できない超レア情報をお届けします。 ●3大サービスその2 不動産購入・ミニセミナー無料受講 不動産を探し始めの方、安心購入への具体的行動プランをお教えします。 契約書、重要事項説明書などの見方、瑕疵物件の判別方法など、不利な契約から身を守り、安心な物件購入ができるようにノウハウを伝授します! **セカンド・オピニオンサービス始めました!** ●3大サービスその3 ライフプランニング相談会無料開催 安心購入の為には、住宅ローンのことだけではなく、資金的に安心できる人生設計が必要になります。 お子様の学費、住宅のリフォーム、突発的な出費、そして夢の海外旅行など、すべての資金計画を一度してみることをお勧めします。 今なら無料で専門のファイナンシャル・プランナーが御相談にあずかります。 詳しくは当社「3大無料サービス」係まで TEL:03-5790-9204 |
||
| 取扱会社 |
|
||
担当者からのメッセージ Message
小田急線「経堂」駅機徒歩7分です。専有面積約106.94㎡の3SLDK。現況空室。2フロアにまたがるメゾネットタイプの物件です。全居室収納やSICなど収納豊富で室内スッキリ。新宿駅まで急行電車利用で3駅の好立地です。また、経堂駅周辺は小田急線沿線でありながら、住宅地部分では比較的静かな環境が保たれています。 商店街エリアでは昼間の活気がある一方、夜間は落ち着いた雰囲気となります。
お電話のお問い合わせはこちらから
03-5790-9204
営業時間:9:30~20:00
定休日:毎週/火曜日・水曜日
-
〒150-0046 東京都渋谷区松濤2丁目7-12
-
検討中リストに追加
- お問い合わせ
ローンシミュレーション Simulation
この物件を購入した場合の、月々の支払い価格の一例です。借り入れを保証するものではございません。
- 返済期間
-
- 金利
-
- ボーナス時の増額(1回分)
-
- 借入金額:
-
- 頭金:
-
(※元利均等方式 金利5.00%まで ※返済年数5~35年まで入力できます)
(※ボーナスは年2回で計算しています。1000万円まで入力できます)
(※物件購入時、その他諸費用が発生する場合がございます)
- 毎月の返済額
おすすめ物件 Recommended Property
-
- グラーサ駒沢大学
- 8,199万円/1LDK/43.10㎡
- 東京都世田谷区上馬1丁目
- 東急田園都市線「駒沢大学」駅 徒歩7分
-
- グレイスコート池尻大橋
- 8,199万円/1LDK/40.56㎡
- 東京都世田谷区池尻2丁目
- 東急田園都市線「池尻大橋」駅 徒歩8分
-
- ユニーブル三軒茶屋
- 8,380万円/1LDK/53.67㎡
- 東京都世田谷区三軒茶屋2丁目
- 東急田園都市線「三軒茶屋」駅 徒歩9分
-
- トワイズ成城
- 7,380万円/3LDK/68.34㎡
- 東京都世田谷区成城7丁目
- 小田急小田原線「成城学園前」駅 徒歩13分
-
- グランパーク深沢
- 7,290万円/2LDK/55.10㎡
- 東京都世田谷区深沢5丁目
- 東急田園都市線「桜新町」駅 徒歩19分
周辺施設情報 Spot

- ミニストップ 経堂店
- 約75m/1分

- はま寿司 経堂店
- 約126m/2分

- お蕎麦の しらかめ
- 約144m/2分

- 世田谷区立わかくさ保育園
- 約214m/3分

- まいばすけっと経堂1丁目店
- 約188m/3分

- 千歳郵便局
- 約219m/3分

- 千歳郵便局
- 約219m/3分

- セブン-イレブン 世田谷千歳郵便局前店
- 約209m/3分

- ダズンフォー
- 約225m/3分

- ライフ経堂店
- 約233m/3分

- ポピンズナーサリースクール経堂南
- 約265m/4分

- ローソン 経堂一丁目店
- 約310m/4分

- 業務スーパー経堂店
- 約283m/4分

- つきや酒店
- 約347m/5分

- JOYFIT24経堂店
- 約286m/4分

- つけ麺 千兵衛
- 約282m/4分

- スシロー 経堂店
- 約350m/5分

- サンドラッグ経堂農大通り店
- 約350m/5分

- 経堂 小倉庵 本店
- 約386m/5分

- コーナンビーバープロ経堂店
- 約337m/5分
お電話のお問い合わせはこちらから
03-5790-9204
営業時間:9:30~20:00
定休日:毎週/火曜日・水曜日
-
〒150-0046 東京都渋谷区松濤2丁目7-12
-
検討中リストに追加
- お問い合わせ
※地図上に表示される物件の位置は付近住所に所在することを表すものであり、実際の物件所在地とは異なる場合がございます。













