世田谷区南烏山1丁目 中古戸建
交通京王線「芦花公園」駅 徒歩5分です。平成10年11月築!3LDK+車庫スペース有(車種による)木造3階建て!複数駅利用可能・駅まで平坦な道の利です。使い勝手の良い間取りです◎追い焚き機能付きなので、疲れた身体もゆっくりお過ごしできます。浴室換気乾燥機も設備有り◎周辺には、コンビニ・スーパーなどの商業施設がある為、生活環境も非常に充実しています。
- 価格
- 6,999万円
- ローンの目安
- 18.5万円/月
- 交通
- 京王線「芦花公園」駅 徒歩5分
- 建物面積(坪数)
- 88.02㎡(26.62坪)
- 間取り/専有面積
- 3LDK / 88.02㎡
お電話のお問い合わせはこちらから
03-5790-9204
営業時間:9:30~20:00
定休日:毎週/火曜日・水曜日
-
〒150-0046 東京都渋谷区松濤2丁目7-12
-
検討中リストに追加
- お問い合わせ
物件概要 Property Detail
情報の見方| 所在地 | 東京都世田谷区南烏山1丁目 | ||
|---|---|---|---|
| 交通 | |||
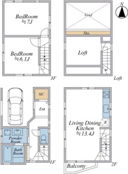
| 間取り/詳細 |
3LDK/ LDK 11.1帖 1室/洋室 6.0帖 1室/洋室 6.0帖 2室 |
建物面積(坪数) | 88.02㎡(26.62坪 |
| 価格 | 6,999万円 | ||
| 駐車場/月額料金 | 有/0円 | ||
| 土地の敷金/保証金 | -/- | 借地料/借地期間 | -/- |
| 土地権利 | 所有権 | 土地面積(坪数) | 50.05㎡(15.14坪) |
| 傾斜地部分面積 | - | 路地状敷地 | - |
| 私道負担面積/セットバック | 0.20㎡/無 | 高圧線下面積 | - |
| 地目/地勢 | 宅地/平坦 | 接道状況 | 一方(北 私道 4.0m 間口 4.3m) |
| 建ぺい率/容積率 | 60%/160% | 用途地域 | 第一種中高層住居専用 |
| 都市計画 | 市街化区域 | 種別/構造 | 中古一戸建/木造 |
| 階建 | 3階建 | 築年月(築年数) | 1998年 11月 (築27年) |
| 総区画数/販売区画数 | -/1区画 | 向き | - |
| 現況 | 空家 | その他の法令上の制限 | - |
| 取引態様/引渡時期 | 仲介/即時 | 建築確認番号 | - |
| 物件番号 | 97788259 | 取引条件の有効期限 | 2026年05月01日 |
| リノベーション |
2025年9月8日完成 システムキッチン ユニットバス 洗面化粧台 洗濯用水栓 温水洗浄便座一体型便器 照明器具 スイッチコンセント 建具 分電盤 フローリング上貼 フロアタイル貼 壁・天井クロス貼 ハウスクリーニング 外壁・屋根塗装 |
||
| 設備条件 |
|
||
| 備考 |
グローバルインクでは初期費用の一部をクレジットカードでお支払い頂けます♪ 詳しくはお気軽にお問合せご相談下さいませ。 グローバルインクがお贈りする3大無料サービスをぜひご利用ください! ●3大サービスその1 超レア!未公開・企画段階物件情報ご紹介サービス 当社ホームページより会員登録ください。ネット・メルマガにすら開示できない超レア情報をお届けします。 ●3大サービスその2 不動産購入・ミニセミナー無料受講 不動産を探し始めの方、安心購入への具体的行動プランをお教えします。 契約書、重要事項説明書などの見方、瑕疵物件の判別方法など、不利な契約から身を守り、安心な物件購入ができるようにノウハウを伝授します! **セカンド・オピニオンサービス始めました!** ●3大サービスその3 ライフプランニング相談会無料開催 安心購入の為には、住宅ローンのことだけではなく、資金的に安心できる人生設計が必要になります。 お子様の学費、住宅のリフォーム、突発的な出費、そして夢の海外旅行など、すべての資金計画を一度してみることをお勧めします。 今なら無料で専門のファイナンシャル・プランナーが御相談にあずかります。 詳しくは当社「3大無料サービス」係まで TEL:03-5790-9204 |
||
| 取扱会社 |
|
||
担当者からのメッセージ Message
交通京王線「芦花公園」駅 徒歩5分です。平成10年11月築!3LDK+車庫スペース有(車種による)木造3階建て!複数駅利用可能・駅まで平坦な道の利です。使い勝手の良い間取りです◎追い焚き機能付きなので、疲れた身体もゆっくりお過ごしできます。浴室換気乾燥機も設備有り◎周辺には、コンビニ・スーパーなどの商業施設がある為、生活環境も非常に充実しています。
お電話のお問い合わせはこちらから
03-5790-9204
営業時間:9:30~20:00
定休日:毎週/火曜日・水曜日
-
〒150-0046 東京都渋谷区松濤2丁目7-12
-
検討中リストに追加
- お問い合わせ
ローンシミュレーション Simulation
この物件を購入した場合の、月々の支払い価格の一例です。借り入れを保証するものではございません。
- 返済期間
-
- 金利
-
- ボーナス時の増額(1回分)
-
- 借入金額:
-
- 頭金:
-
(※元利均等方式 金利5.00%まで ※返済年数5~35年まで入力できます)
(※ボーナスは年2回で計算しています。1000万円まで入力できます)
(※物件購入時、その他諸費用が発生する場合がございます)
- 毎月の返済額
おすすめ物件 Recommended Property
-
- 世田谷区上祖師谷2丁目 中古戸建
- 7,299万円/4DK/75.93㎡
- 東京都世田谷区上祖師谷2丁目
- 京王線「千歳烏山」駅 徒歩19分
-
- 世田谷区千歳台5丁目 中古戸建
- 6,499万円/2LDK/77.48㎡
- 東京都世田谷区千歳台5丁目
- 小田急小田原線「千歳船橋」駅 徒歩22分
-
- 世田谷区喜多見1丁目 新築戸建
- 7,980万円/5LDK/109.30㎡
- 東京都世田谷区喜多見1丁目
- 小田急小田原線「成城学園前」駅 徒歩25分
-
- 世田谷区中町3丁目 借地権付き中古戸建
- 8,500万円/4LDK/152.01㎡
- 東京都世田谷区中町3丁目
- 東急大井町線「等々力」駅 徒歩10分
-
- 世田谷区上馬2丁目 中古戸建
- 8,980万円/2LDK/83.59㎡
- 東京都世田谷区上馬2丁目
- 東急田園都市線「三軒茶屋」駅 徒歩10分
周辺施設情報 Spot

- ガスト世田谷八幡山店
- 約274m/4分

- ジョナサン 世田谷八幡山店
- 約276m/4分

- 藍屋 世田谷八幡山店
- 約317m/4分

- 八幡山はらっぱ広場
- 約302m/4分

- マクドナルド 環八八幡山店
- 約289m/4分

- ドン・キホーテ環八世田谷店
- 約254m/4分

- 世田谷区立南烏山なんてん公園
- 約306m/4分

- ヴィクトリアゴルフ 世田谷店
- 約251m/4分

- スターバックスコーヒー 芦花公園店
- 約294m/4分

- ローソン 芦花公園店
- 約308m/4分

- 杉並桜上水郵便局
- 約336m/5分

- ファミリーマート 環八八幡山店
- 約314m/4分

- レインボー薬局
- 約375m/5分

- ヤマザキ
- 約312m/4分

- 芦花公園駅前郵便局
- 約405m/6分

- 杉並区立上高井戸宿公園
- 約394m/5分

- アスク上高井戸保育園 都会のふるさと
- 約491m/7分

- JOYFIT24芦花公園店
- 約348m/5分

- まいばすけっと八幡山駅前店
- 約521m/7分

- 第二いちご保育園
- 約489m/7分
お電話のお問い合わせはこちらから
03-5790-9204
営業時間:9:30~20:00
定休日:毎週/火曜日・水曜日
-
〒150-0046 東京都渋谷区松濤2丁目7-12
-
検討中リストに追加
- お問い合わせ
※地図上に表示される物件の位置は付近住所に所在することを表すものであり、実際の物件所在地とは異なる場合がございます。













