世田谷区中町4丁目 中古戸建
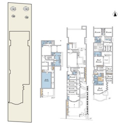
東急大井町線「上野毛」歩14分です。都心へのアクセスと落ち着いた住環境を兼ね備えた立地に佇む、重厚感あふれるRC造邸宅。約694㎡の広大な敷地に建つ建物は、延床684㎡超・14LDKの壮大なプラン。天井が高く、大型シャンデリアが吊り下がり、床、壁の一部が大理石張りで大きな窓ガラスの向こうには、広い緑豊かな庭園があります。大型の浴室や多目的に利用できるホール、仏間まで備わっています。
- 価格
- 6億4,000万円
- ローンの目安
- 169万円/月
- 交通
- 東急大井町線「上野毛」駅 徒歩14分
- 建物面積(坪数)
- 684.21㎡(206.97坪)
- 間取り/専有面積
- 14LDK / 684.21㎡
お電話のお問い合わせはこちらから
03-5790-9204
営業時間:9:30~20:00
定休日:毎週/火曜日・水曜日
-
〒150-0046 東京都渋谷区松濤2丁目7-12
-
検討中リストに追加
- お問い合わせ
物件概要 Property Detail
情報の見方| 所在地 | 東京都世田谷区中町4丁目 | ||
|---|---|---|---|
| 交通 | |||
| 間取り/詳細 | 14LDK/ | 建物面積(坪数) | 684.21㎡(206.97坪 |
| 価格 | 6億4,000万円 | ||
| 駐車場/月額料金 | -/- | ||
| 土地の敷金/保証金 | -/- | 借地料/借地期間 | -/- |
| 土地権利 | 所有権 | 土地面積(坪数) | 694.00㎡(209.93坪) |
| 傾斜地部分面積 | - | 路地状敷地 | - |
| 私道負担面積/セットバック | -/無 | 高圧線下面積 | - |
| 地目/地勢 | 宅地/- | 接道状況 | 一方(南 公道 5.9m) |
| 建ぺい率/容積率 | 50%/100% | 用途地域 | 第一種低層住居専用 |
| 都市計画 | 市街化区域 | 種別/構造 | 中古一戸建/鉄骨鉄筋コンクリート |
| 階建 | 2階建 地下1階 | 築年月(築年数) | 1987年 8月 (築38年) |
| 総区画数/販売区画数 | -/1区画 | 向き | 南 |
| 現況 | 居住中 | その他の法令上の制限 | 景観法/高度利用地区/準防火地域 |
| 取引態様/引渡時期 | 仲介/相談 | 建築確認番号 | - |
| 物件番号 | 98169015 | 取引条件の有効期限 | 2025年11月28日 |
| 設備条件 |
|
||
| 備考 |
グローバルインクでは初期費用の一部をクレジットカードでお支払い頂けます♪ 詳しくはお気軽にお問合せご相談下さいませ。 グローバルインクがお贈りする3大無料サービスをぜひご利用ください! ●3大サービスその1 超レア!未公開・企画段階物件情報ご紹介サービス 当社ホームページより会員登録ください。ネット・メルマガにすら開示できない超レア情報をお届けします。 ●3大サービスその2 不動産購入・ミニセミナー無料受講 不動産を探し始めの方、安心購入への具体的行動プランをお教えします。 契約書、重要事項説明書などの見方、瑕疵物件の判別方法など、不利な契約から身を守り、安心な物件購入ができるようにノウハウを伝授します! **セカンド・オピニオンサービス始めました!** ●3大サービスその3 ライフプランニング相談会無料開催 安心購入の為には、住宅ローンのことだけではなく、資金的に安心できる人生設計が必要になります。 お子様の学費、住宅のリフォーム、突発的な出費、そして夢の海外旅行など、すべての資金計画を一度してみることをお勧めします。 今なら無料で専門のファイナンシャル・プランナーが御相談にあずかります。 詳しくは当社「3大無料サービス」係まで TEL:03-5790-9204 |
||
| 取扱会社 |
|
||
担当者からのメッセージ Message
東急大井町線「上野毛」歩14分です。都心へのアクセスと落ち着いた住環境を兼ね備えた立地に佇む、重厚感あふれるRC造邸宅。約694㎡の広大な敷地に建つ建物は、延床684㎡超・14LDKの壮大なプラン。天井が高く、大型シャンデリアが吊り下がり、床、壁の一部が大理石張りで大きな窓ガラスの向こうには、広い緑豊かな庭園があります。大型の浴室や多目的に利用できるホール、仏間まで備わっています。
お電話のお問い合わせはこちらから
03-5790-9204
営業時間:9:30~20:00
定休日:毎週/火曜日・水曜日
-
〒150-0046 東京都渋谷区松濤2丁目7-12
-
検討中リストに追加
- お問い合わせ
ローンシミュレーション Simulation
この物件を購入した場合の、月々の支払い価格の一例です。借り入れを保証するものではございません。
- 返済期間
-
- 金利
-
- ボーナス時の増額(1回分)
-
- 借入金額:
-
- 頭金:
-
(※元利均等方式 金利5.00%まで ※返済年数5~35年まで入力できます)
(※ボーナスは年2回で計算しています。1000万円まで入力できます)
(※物件購入時、その他諸費用が発生する場合がございます)
- 毎月の返済額
おすすめ物件 Recommended Property
-
- 世田谷区深沢7丁目 中古戸建
- 6億6,800万円/6LDK/360.18㎡
- 東京都世田谷区深沢7丁目
- 東急田園都市線「桜新町」駅 徒歩16分
-
- 世田谷区用賀1丁目 中古戸建
- 3億9,800万円/3LDK/170.95㎡
- 東京都世田谷区用賀1丁目
- 東急田園都市線「用賀」駅 徒歩15分
-
- 世田谷区代田5丁目 賃貸併用住宅
- 2億5,500万円/8LDK/195.75㎡
- 東京都世田谷区代田5丁目
- 京王井の頭線「下北沢」駅 徒歩5分
-
- 世田谷区太子堂2丁目 賃貸併用中古戸建
- 2億2,800万円/3LDK/184.66㎡
- 東京都世田谷区太子堂2丁目
- 東急田園都市線「三軒茶屋」駅 徒歩9分
-
- 世田谷区等々力6丁目 新築戸建
- 2億2,800万円/4LDK/180.83㎡
- 東京都世田谷区等々力6丁目
- 東急東横線「自由が丘」駅 徒歩13分
周辺施設情報 Spot

- Keiki Intercultural Preschool
- 約70m/1分

- ツルハドラッグ用賀中町通店
- 約220m/3分

- 光の子園
- 約319m/4分

- 世田谷区立中町小学校
- 約263m/4分

- 玉川中町公園
- 約345m/5分

- 中町4丁目公園
- 約274m/4分

- ポピンズナーサリースクール世田谷中町
- 約335m/5分

- ファミリーマート 世田谷中町店
- 約369m/5分

- ヨークマート中町店
- 約379m/5分

- 深沢7-14遊び場
- 約553m/7分

- 野菜直売所 世田谷ファーム
- 約542m/7分

- Oakwood Tokyo International School
- 約526m/7分

- 日体幼稚園
- 約606m/8分

- 清泉インタナショナルスクール
- 約682m/9分

- サミットストア深沢坂上店
- 約874m/11分

- 世田谷区立桜町小学校
- 約803m/11分

- 玉川警察署
- 約802m/11分

- 世田谷区立等々力小学校
- 約1076m/14分

- コジマ×ビックカメラ 用賀店
- 約1141m/15分
お電話のお問い合わせはこちらから
03-5790-9204
営業時間:9:30~20:00
定休日:毎週/火曜日・水曜日
-
〒150-0046 東京都渋谷区松濤2丁目7-12
-
検討中リストに追加
- お問い合わせ
※地図上に表示される物件の位置は付近住所に所在することを表すものであり、実際の物件所在地とは異なる場合がございます。













