品川区西五反田8丁目 新築戸建
【JR「五反田」徒歩12分、LDK約21帖、設備仕様充実】JR山手線「五反田」駅徒歩12分。池上線・浅草線は徒歩9分以内で利用可。高台立地につき眺望良好。建物面積100平米以上。LDK約21帖+主寝室9帖以上の車庫付3LDKプランです。エコジョーズ搭載の省エネ基準適合住宅。宅配ボックス、食洗器、床暖房などQOLを上げる便利な設備仕様が充実。大型WIC+2クロゼットで家中すっきり片付きます。
- 価格
- 1億2,999万円
- ローンの目安
- 34.3万円/月
- 交通
- 山手線「五反田」駅 徒歩12分
- 建物面積(坪数)
- 100.89㎡(30.51坪)
- 間取り/専有面積
- 3LDK / 100.89㎡
お電話のお問い合わせはこちらから
03-5790-9204
営業時間:9:30~20:00
定休日:毎週/火曜日・水曜日
-
〒150-0046 東京都渋谷区松濤2丁目7-12
-
検討中リストに追加
- お問い合わせ
物件概要 Property Detail
情報の見方| 所在地 | 東京都品川区西五反田8丁目 | ||
|---|---|---|---|
| 交通 | |||
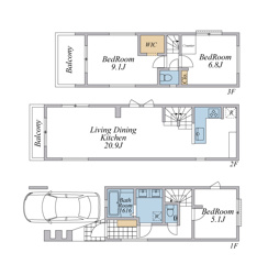
| 間取り/詳細 |
3LDK/ LDK 20.9帖 1室/洋室 9.1帖 1室/洋室 6.8帖 1室/洋室 5.1帖 1室 |
建物面積(坪数) | 100.89㎡(30.51坪 |
| 価格 | 1億2,999万円 | ||
| 駐車場/月額料金 | 有(1台)/0円 | ||
| 土地の敷金/保証金 | -/- | 借地料/借地期間 | -/- |
| 土地権利 | 所有権 | 土地面積(坪数) | 58.62㎡(17.73坪) |
| 傾斜地部分面積 | - | 路地状敷地 | - |
| 私道負担面積/セットバック |
31.37㎡/要 私道負担割合 : 1/3 |
高圧線下面積 | - |
| 地目/地勢 | 宅地/高台 | 接道状況 | 一方(西 私道 3.0m) |
| 建ぺい率/容積率 | 60%/160% | 用途地域 | 第一種住居 |
| 都市計画 | 市街化区域 | 種別/構造 | 新築一戸建/木造 |
| 階建 | 3階建 | 築年月(築年数) | 2026年 3月 (予定) |
| 総区画数/販売区画数 | 3区画/3区画 | 向き | 西 |
| 現況 | 未完成 | その他の法令上の制限 | 高度地区/準防火地域 |
| 取引態様/引渡時期 | 仲介/相談 | 建築確認番号 | 第2025確認建築CIAS00973号 |
| 物件番号 | 98419290 | 取引条件の有効期限 | 2025年11月27日 |
| 設備条件 |
|
||
| 備考 |
グローバルインクでは初期費用の一部をクレジットカードでお支払い頂けます♪ 詳しくはお気軽にお問合せご相談下さいませ。 グローバルインクがお贈りする3大無料サービスをぜひご利用ください! ●3大サービスその1 超レア!未公開・企画段階物件情報ご紹介サービス 当社ホームページより会員登録ください。ネット・メルマガにすら開示できない超レア情報をお届けします。 ●3大サービスその2 不動産購入・ミニセミナー無料受講 不動産を探し始めの方、安心購入への具体的行動プランをお教えします。 契約書、重要事項説明書などの見方、瑕疵物件の判別方法など、不利な契約から身を守り、安心な物件購入ができるようにノウハウを伝授します! **セカンド・オピニオンサービス始めました!** ●3大サービスその3 ライフプランニング相談会無料開催 安心購入の為には、住宅ローンのことだけではなく、資金的に安心できる人生設計が必要になります。 お子様の学費、住宅のリフォーム、突発的な出費、そして夢の海外旅行など、すべての資金計画を一度してみることをお勧めします。 今なら無料で専門のファイナンシャル・プランナーが御相談にあずかります。 詳しくは当社「3大無料サービス」係まで TEL:03-5790-9204 |
||
| 取扱会社 |
|
||
担当者からのメッセージ Message
【JR「五反田」徒歩12分、LDK約21帖、設備仕様充実】JR山手線「五反田」駅徒歩12分。池上線・浅草線は徒歩9分以内で利用可。高台立地につき眺望良好。建物面積100平米以上。LDK約21帖+主寝室9帖以上の車庫付3LDKプランです。エコジョーズ搭載の省エネ基準適合住宅。宅配ボックス、食洗器、床暖房などQOLを上げる便利な設備仕様が充実。大型WIC+2クロゼットで家中すっきり片付きます。
JR山手線「五反田」駅徒歩12分。池上線・浅草線は徒歩9分以内で利用できアクセス良好です。「芳水小学校」徒歩8分の子育て環境。大型スーパー「ライフ」徒歩7分で買物便利です。
お電話のお問い合わせはこちらから
03-5790-9204
営業時間:9:30~20:00
定休日:毎週/火曜日・水曜日
-
〒150-0046 東京都渋谷区松濤2丁目7-12
-
検討中リストに追加
- お問い合わせ
ローンシミュレーション Simulation
この物件を購入した場合の、月々の支払い価格の一例です。借り入れを保証するものではございません。
- 返済期間
-
- 金利
-
- ボーナス時の増額(1回分)
-
- 借入金額:
-
- 頭金:
-
(※元利均等方式 金利5.00%まで ※返済年数5~35年まで入力できます)
(※ボーナスは年2回で計算しています。1000万円まで入力できます)
(※物件購入時、その他諸費用が発生する場合がございます)
- 毎月の返済額
おすすめ物件 Recommended Property
周辺施設情報 Spot

- キッズガーデン品川西五反田
- 約30m/1分

- ポピンズナーサリースクール西五反田
- 約12m/1分

- 西八丁公園
- 約253m/4分

- ライフ 大崎百反通店
- 約481m/7分

- 品川区立峰原公園
- 約414m/6分

- ファミリーマート 西五反田六丁目店
- 約440m/6分

- ユータカラヤ 生鮮市場大崎店
- 約440m/6分

- 平塚中央公園
- 約520m/7分

- 品川区立芳水小学校
- 約574m/8分

- TOCビル
- 約379m/5分

- 鈴の木こどもクリニック
- 約480m/6分

- 平塚保育園
- 約503m/7分

- 品川区 平塚児童センター
- 約503m/7分

- ナチュラルローソン 五反田TOC店
- 約379m/5分

- ユニクロ 五反田TOC店
- 約379m/5分

- アカチャンホンポ TOC店
- 約379m/5分

- TOCビル内郵便局
- 約379m/5分

- サブウェイ 五反田TOCビル店
- 約379m/5分

- 品川西五反田六郵便局
- 約516m/7分

- 専修幼稚園
- 約542m/7分
お電話のお問い合わせはこちらから
03-5790-9204
営業時間:9:30~20:00
定休日:毎週/火曜日・水曜日
-
〒150-0046 東京都渋谷区松濤2丁目7-12
-
検討中リストに追加
- お問い合わせ
※地図上に表示される物件の位置は付近住所に所在することを表すものであり、実際の物件所在地とは異なる場合がございます。













