目黒区碑文谷3丁目 新築戸建
【「碑文谷」アドレス、建物150平米以上、屋上テラス+5LDK】東横線「都立大学」駅徒歩10分。洗練された街並みと静謐な空気が魅力的な街に暮らす。敷地面積約150平米の大型地です。LDK23帖以上+全居室6帖以上+主寝室12帖+屋上テラス20帖付5LDK。2WIC+パントリーなど豊富な収納で家中すっきりと片付きます。「サレジオ幼稚園」まで徒歩8分、碑文谷病院は徒歩6分で子育てに適した住環境です。
- 価格
- 2億9,800万円
- ローンの目安
- 78.7万円/月
- 交通
- 東急東横線「都立大学」駅 徒歩10分
- 建物面積(坪数)
- 153.88㎡(46.54坪)
- 間取り/専有面積
- 5LDK / 153.88㎡
お電話のお問い合わせはこちらから
03-5790-9204
営業時間:9:30~20:00
定休日:毎週/火曜日・水曜日
-
〒150-0046 東京都渋谷区松濤2丁目7-12
-
検討中リストに追加
- お問い合わせ
物件概要 Property Detail
情報の見方| 所在地 | 東京都目黒区碑文谷3丁目 | ||
|---|---|---|---|
| 交通 | |||
| 間取り/詳細 |
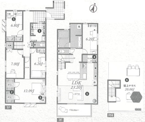
5LDK/ LDK 23.2帖 1室/洋室 12.0帖 1室/洋室 7.0帖 1室/洋室 6.8帖 1室/洋室 6.2帖 1室/洋室 6.2帖 1室 屋上ルーフテラス20帖 |
建物面積(坪数) | 153.88㎡(46.54坪 |
| 価格 | 2億9,800万円 | ||
| 駐車場/月額料金 | 有(1台)/0円 | ||
| 土地の敷金/保証金 | -/- | 借地料/借地期間 | -/- |
| 土地権利 | 所有権 | 土地面積(坪数) | 149.99㎡(45.37坪) |
| 傾斜地部分面積 | - | 路地状敷地 | - |
| 私道負担面積/セットバック | -/無 | 高圧線下面積 | - |
| 地目/地勢 | 宅地/平坦 | 接道状況 | 一方(北 公道 6.0m) |
| 建ぺい率/容積率 | 60%/150% | 用途地域 | 第一種低層住居専用 |
| 都市計画 | 市街化区域 | 種別/構造 | 新築一戸建/木造 |
| 階建 | 2階建 | 築年月(築年数) | 2026年 5月 (予定) |
| 総区画数/販売区画数 | 1区画/1区画 | 向き | 北 |
| 現況 | 未完成 | その他の法令上の制限 | 高度地区/準防火地域/高さ最高限度有/宅地造成等工事規制区域、目黒区環七沿道地区計画 ※告知事項あり |
| 取引態様/引渡時期 | 仲介/相談 | 建築確認番号 | 第25UDI1T建03800号 |
| 物件番号 | 98742212 | 取引条件の有効期限 | 2026年03月23日 |
| 設備条件 |
|
||
| 備考 |
グローバルインクでは初期費用の一部をクレジットカードでお支払い頂けます♪ 詳しくはお気軽にお問合せご相談下さいませ。 グローバルインクがお贈りする3大無料サービスをぜひご利用ください! ●3大サービスその1 超レア!未公開・企画段階物件情報ご紹介サービス 当社ホームページより会員登録ください。ネット・メルマガにすら開示できない超レア情報をお届けします。 ●3大サービスその2 不動産購入・ミニセミナー無料受講 不動産を探し始めの方、安心購入への具体的行動プランをお教えします。 契約書、重要事項説明書などの見方、瑕疵物件の判別方法など、不利な契約から身を守り、安心な物件購入ができるようにノウハウを伝授します! **セカンド・オピニオンサービス始めました!** ●3大サービスその3 ライフプランニング相談会無料開催 安心購入の為には、住宅ローンのことだけではなく、資金的に安心できる人生設計が必要になります。 お子様の学費、住宅のリフォーム、突発的な出費、そして夢の海外旅行など、すべての資金計画を一度してみることをお勧めします。 今なら無料で専門のファイナンシャル・プランナーが御相談にあずかります。 詳しくは当社「3大無料サービス」係まで TEL:03-5790-9204 |
||
| 取扱会社 |
|
||
担当者からのメッセージ Message
【「碑文谷」アドレス、建物150平米以上、屋上テラス+5LDK】東横線「都立大学」駅徒歩10分。洗練された街並みと静謐な空気が魅力的な街に暮らす。敷地面積約150平米の大型地です。LDK23帖以上+全居室6帖以上+主寝室12帖+屋上テラス20帖付5LDK。2WIC+パントリーなど豊富な収納で家中すっきりと片付きます。「サレジオ幼稚園」まで徒歩8分、碑文谷病院は徒歩6分で子育てに適した住環境です。
東横線「都立大学」駅徒歩10分。ビッグターミナルの渋谷まで一本で都内アクセス良好です。保育施設や小学校が徒歩4分以内。大型スーパー「オオゼキ」徒歩9分で買物便利です。
お電話のお問い合わせはこちらから
03-5790-9204
営業時間:9:30~20:00
定休日:毎週/火曜日・水曜日
-
〒150-0046 東京都渋谷区松濤2丁目7-12
-
検討中リストに追加
- お問い合わせ
ローンシミュレーション Simulation
この物件を購入した場合の、月々の支払い価格の一例です。借り入れを保証するものではございません。
- 返済期間
-
- 金利
-
- ボーナス時の増額(1回分)
-
- 借入金額:
-
- 頭金:
-
(※元利均等方式 金利5.00%まで ※返済年数5~35年まで入力できます)
(※ボーナスは年2回で計算しています。1000万円まで入力できます)
(※物件購入時、その他諸費用が発生する場合がございます)
- 毎月の返済額
おすすめ物件 Recommended Property
-
- 目黒区中町1丁目 新築戸建
- 2億7,500万円/4LDK/203.13㎡
- 東京都目黒区中町1丁目
- 東急東横線「学芸大学」駅 徒歩15分
-
- 目黒区目黒本町5丁目 新築戸建
- 2億6,800万円/4LDK/168.83㎡
- 東京都目黒区目黒本町5丁目
- 東急目黒線「武蔵小山」駅 徒歩6分
-
- 目黒区下目黒5丁目 新築戸建
- 2億4,800万円/4LDK/162.62㎡
- 東京都目黒区下目黒5丁目
- 東急目黒線「武蔵小山」駅 徒歩14分
-
- 目黒区平町2丁目 中古戸建
- 2億2,200万円/3LDK/143.35㎡
- 東京都目黒区平町2丁目
- 東急東横線「都立大学」駅 徒歩8分
-
- 目黒区大岡山1丁目 中古戸建
- 1億9,800万円/4LDK/114.69㎡
- 東京都目黒区大岡山1丁目
- 東急目黒線「大岡山」駅 徒歩10分
周辺施設情報 Spot

- 目黒区立大岡山小学校
- 約178m/3分

- さくらさくみらい 都立大
- 約239m/3分

- 目黒サレジオ幼稚園
- 約636m/8分

- 目黒区立大岡山東住区センター
- 約249m/4分

- すずめのお宿緑地公園
- 約289m/4分

- ピュアリー目黒南保育園
- 約269m/4分

- 碑文谷病院
- 約439m/6分

- 目黒南三郵便局
- 約429m/6分

- オオゼキ碑文谷店
- 約711m/9分

- 木曽路 碑文谷店
- 約146m/2分

- 碑文谷八幡宮
- 約311m/4分

- 平町児童館
- 約262m/4分

- 阿部医院
- 約430m/6分

- セブンイレブン目黒碑文谷3丁目店
- 約440m/6分

- 平町児童遊園
- 約600m/8分

- 志のぶ幼稚園
- 約547m/7分

- 目黒区立第八中学校
- 約461m/6分

- 目黒区 大岡山西住区センター
- 約585m/8分

- パティスリー ジュン ウジタ
- 約577m/8分

- グローバルキッズ大岡山園
- 約652m/9分
お電話のお問い合わせはこちらから
03-5790-9204
営業時間:9:30~20:00
定休日:毎週/火曜日・水曜日
-
〒150-0046 東京都渋谷区松濤2丁目7-12
-
検討中リストに追加
- お問い合わせ
※地図上に表示される物件の位置は付近住所に所在することを表すものであり、実際の物件所在地とは異なる場合がございます。













