世田谷区若林2丁目 建築条件なし土地
【三軒茶屋も徒歩圏内、閑静な世田谷・若林の南東角地×広々約44坪×整形地】都内で2路線だけの路面電車・世田谷線「西太子堂」駅より徒歩9分。田園都市線「三軒茶屋」駅や小田急線「世田谷代田」駅も利用可能な立地です。面積約44坪の広々とした整形地。南東角地につき陽当たり・風通しが良く、間口が10m以上とゆとりがあるので開放感があります。建築条件はありません。落ち着きある1種低層エリアで住環境良好です。
- 価格
- 2億630万円
- ローンの目安
- 54.5万円/月
- 交通
- 東急世田谷線「西太子堂」駅 徒歩9分
- 土地面積(坪数)
- 148.05㎡(-)
お電話のお問い合わせはこちらから
03-5790-9204
営業時間:9:30~20:00
定休日:毎週/火曜日・水曜日
-
〒150-0046 東京都渋谷区松濤2丁目7-12
-
検討中リストに追加
- お問い合わせ
物件概要 Property Detail
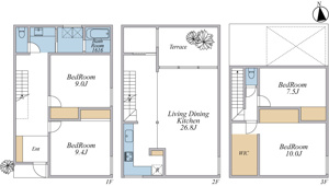
情報の見方| 所在地 | 東京都世田谷区若林2丁目 | ||
|---|---|---|---|
| 交通 | |||
| 価格 | 2億630万円 | ||
| 土地の敷金/保証金 | -/- | 借地料/借地期間 | -/- |
| 土地面積(坪数) | 148.05㎡(44.78坪) | 坪単価 | 460.7万円 |
| 私道負担面積/セットバック | -/無 | 高圧線下面積 | - |
| 傾斜地部分面積 | - | 路地状敷地 | - |
| 土地権利 | 所有権 | 接道状況 | 角地(南 公道 4.6m 間口 10.7m)(東 私道 4.0m 間口 11.1m) |
| 都市計画 | 市街化区域 | 用途地域 | 第一種低層住居専用 |
| 建築条件 | 無 | 地目/地勢 | 宅地/- |
| 建ぺい率 | 60% | 容積率 | 150% |
| 総区画数 | 3区画 | 販売区画数 | 1区画 |
| 国土法届出要否 | 不要 | その他の法令上の制限 | 高度地区/準防火地域 |
| 取引態様 | 仲介 | 現況 | 更地 |
| 引渡時期 | 相談 | 引渡条件 | - |
| 最適用途 | 住宅用地 | ||
| 物件番号 | 98798059 | ||
| 設備条件 |
|
取引条件の有効期限 | 2025年12月26日 |
| 備考 |
グローバルインクでは初期費用の一部をクレジットカードでお支払い頂けます♪ 詳しくはお気軽にお問合せご相談下さいませ。 グローバルインクがお贈りする3大無料サービスをぜひご利用ください! ●3大サービスその1 超レア!未公開・企画段階物件情報ご紹介サービス 当社ホームページより会員登録ください。ネット・メルマガにすら開示できない超レア情報をお届けします。 ●3大サービスその2 不動産購入・ミニセミナー無料受講 不動産を探し始めの方、安心購入への具体的行動プランをお教えします。 契約書、重要事項説明書などの見方、瑕疵物件の判別方法など、不利な契約から身を守り、安心な物件購入ができるようにノウハウを伝授します! **セカンド・オピニオンサービス始めました!** ●3大サービスその3 ライフプランニング相談会無料開催 安心購入の為には、住宅ローンのことだけではなく、資金的に安心できる人生設計が必要になります。 お子様の学費、住宅のリフォーム、突発的な出費、そして夢の海外旅行など、すべての資金計画を一度してみることをお勧めします。 今なら無料で専門のファイナンシャル・プランナーが御相談にあずかります。 詳しくは当社「3大無料サービス」係まで TEL:03-5790-9204 |
||
| 取扱会社 |
|
||
担当者からのメッセージ Message
【三軒茶屋も徒歩圏内、閑静な世田谷・若林の南東角地×広々約44坪×整形地】都内で2路線だけの路面電車・世田谷線「西太子堂」駅より徒歩9分。田園都市線「三軒茶屋」駅や小田急線「世田谷代田」駅も利用可能な立地です。面積約44坪の広々とした整形地。南東角地につき陽当たり・風通しが良く、間口が10m以上とゆとりがあるので開放感があります。建築条件はありません。落ち着きある1種低層エリアで住環境良好です。
世田谷線「西太子堂」駅徒歩9分。西太子堂は人気の三軒茶屋の隣駅。徒歩でも5分ほどの距離です。閑静な住宅街が広がるエリアで、世田谷通り沿いの商店にアクセスしやすく便利です。
お電話のお問い合わせはこちらから
03-5790-9204
営業時間:9:30~20:00
定休日:毎週/火曜日・水曜日
-
〒150-0046 東京都渋谷区松濤2丁目7-12
-
検討中リストに追加
- お問い合わせ
ローンシミュレーション Simulation
この物件を購入した場合の、月々の支払い価格の一例です。借り入れを保証するものではございません。
- 返済期間
-
- 金利
-
- ボーナス時の増額(1回分)
-
- 借入金額:
-
- 頭金:
-
(※元利均等方式 金利5.00%まで ※返済年数5~35年まで入力できます)
(※ボーナスは年2回で計算しています。1000万円まで入力できます)
(※物件購入時、その他諸費用が発生する場合がございます)
- 毎月の返済額
おすすめ物件 Recommended Property
-
- 世田谷区下馬5丁目 建築条件なし土地
- 2億1,500万円/-/134.39㎡
- 東京都世田谷区下馬5丁目
- 東急東横線「学芸大学」駅 徒歩10分
-
- 世田谷区代田2丁目 建築条件なし土地
- 2億4,000万円/-/152.96㎡
- 東京都世田谷区代田2丁目
- 小田急小田原線「世田谷代田」駅 徒歩6分
-
- 世田谷区下馬6丁目 建築条件なし土地
- 2億4,500万円/-/145.64㎡
- 東京都世田谷区下馬6丁目
- 東急東横線「学芸大学」駅 徒歩8分
-
- 世田谷区代沢1丁目 建築条件なし土地
- 1億5,500万円/-/102.58㎡
- 東京都世田谷区代沢1丁目
- 京王井の頭線「池ノ上」駅 徒歩9分
-
- 世田谷区奥沢2丁目 建築条件なし土地
- 2億5,980万円/-/198.21㎡
- 東京都世田谷区奥沢2丁目
- 東急東横線「自由が丘」駅 徒歩10分
周辺施設情報 Spot

- グローバルキッズ若林園
- 約218m/3分

- 世田谷区立太子堂保育園
- 約311m/4分

- 家庭幼稚園
- 約215m/3分

- 世田谷区立太子堂小学校
- 約658m/9分

- 世田谷区立若林小学校
- 約793m/10分

- 世田谷区立世田谷中学校
- 約949m/12分

- 太子堂5-33遊び場
- 約201m/3分

- 若林ふれあいひろば公園
- 約449m/6分

- サミットストア代沢十字路店
- 約450m/6分

- 信州セレクトショップ サラダ街道
- 約528m/7分

- キャロットタワー
- 約1068m/14分

- セブンイレブン若林陸橋店
- 約179m/3分

- ココカラファイン薬局 太子堂店
- 約880m/11分

- 神津内科
- 約657m/9分

- 若林医院
- 約742m/10分

- 世田谷信用金庫 区役所前支店
- 約1226m/16分

- 世田谷若林四郵便局
- 約677m/9分

- 北沢署 宮前橋交番
- 約909m/12分

- ロイヤルホスト若林店
- 約488m/7分

- スターバックスコーヒー 三軒茶屋店
- 約1084m/14分
お電話のお問い合わせはこちらから
03-5790-9204
営業時間:9:30~20:00
定休日:毎週/火曜日・水曜日
-
〒150-0046 東京都渋谷区松濤2丁目7-12
-
検討中リストに追加
- お問い合わせ
※地図上に表示される物件の位置は付近住所に所在することを表すものであり、実際の物件所在地とは異なる場合がございます。













