渋谷区東4丁目 新築戸建
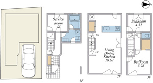
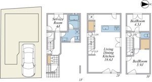
【渋谷・恵比寿・広尾が生活圏に、渋谷東・文教エリアの車庫付き新築分譲住宅】JR各線と日比谷線が乗入れる「恵比寿」駅徒歩15分。ビッグターミナル渋谷駅も徒歩圏内。渋谷・恵比寿・広尾の3駅のちょうど中間地点、東向き整形地に誕生する3階建てです。間取りは3LDK。ワンフロアタイプの2階LDKは広々約18帖で、スケルトン階段がアクセントの開放的な空間です。ガス式衣類乾燥機・乾太くん完備。車庫ございます。
- 価格
- 1億8,000万円
- ローンの目安
- 47.5万円/月
- 交通
- 山手線「恵比寿」駅 徒歩15分
- 建物面積(坪数)
- 93.60㎡(28.31坪)
- 間取り/専有面積
- 3LDK / 93.60㎡
お電話のお問い合わせはこちらから
03-5790-9204
営業時間:9:30~20:00
定休日:毎週/火曜日・水曜日
-
〒150-0046 東京都渋谷区松濤2丁目7-12
-
検討中リストに追加
- お問い合わせ
物件概要 Property Detail
情報の見方| 所在地 | 東京都渋谷区東4丁目 | ||
|---|---|---|---|
| 交通 | |||
| 間取り/詳細 |
3LDK/ LDK 18.6帖 1室/洋室 5.9帖 1室/洋室 4.5帖 1室/洋室 4.0帖 1室 1階4帖洋室は納戸申請。 |
建物面積(坪数) | 93.60㎡(28.31坪 |
| 価格 | 1億8,000万円 | ||
| 駐車場/月額料金 | 有(1台)/0円 | ||
| 土地の敷金/保証金 | -/- | 借地料/借地期間 | -/- |
| 土地権利 | 所有権 | 土地面積(坪数) | 51.90㎡(15.69坪) |
| 傾斜地部分面積 | - | 路地状敷地 | - |
| 私道負担面積/セットバック | -/無 | 高圧線下面積 | - |
| 地目/地勢 | 宅地/- | 接道状況 | 一方(東 私道 4.0m 間口 5.6m) |
| 建ぺい率/容積率 | 70%/160% | 用途地域 | 第二種中高層住居専用 |
| 都市計画 | 市街化区域 | 種別/構造 | 新築一戸建/木造 |
| 階建 | 3階建 | 築年月(築年数) | 2025年 8月 (新築) |
| 総区画数/販売区画数 | 1区画/1区画 | 向き | 東 |
| 現況 | 完成済み | その他の法令上の制限 | 高度地区/準防火地域/日影制限有 |
| 取引態様/引渡時期 | 仲介/即時 | 建築確認番号 | - |
| 物件番号 | 98798389 | 取引条件の有効期限 | 2025年11月20日 |
| 設備条件 |
|
||
| 備考 |
グローバルインクでは初期費用の一部をクレジットカードでお支払い頂けます♪ 詳しくはお気軽にお問合せご相談下さいませ。 グローバルインクがお贈りする3大無料サービスをぜひご利用ください! ●3大サービスその1 超レア!未公開・企画段階物件情報ご紹介サービス 当社ホームページより会員登録ください。ネット・メルマガにすら開示できない超レア情報をお届けします。 ●3大サービスその2 不動産購入・ミニセミナー無料受講 不動産を探し始めの方、安心購入への具体的行動プランをお教えします。 契約書、重要事項説明書などの見方、瑕疵物件の判別方法など、不利な契約から身を守り、安心な物件購入ができるようにノウハウを伝授します! **セカンド・オピニオンサービス始めました!** ●3大サービスその3 ライフプランニング相談会無料開催 安心購入の為には、住宅ローンのことだけではなく、資金的に安心できる人生設計が必要になります。 お子様の学費、住宅のリフォーム、突発的な出費、そして夢の海外旅行など、すべての資金計画を一度してみることをお勧めします。 今なら無料で専門のファイナンシャル・プランナーが御相談にあずかります。 詳しくは当社「3大無料サービス」係まで TEL:03-5790-9204 |
||
| 取扱会社 |
|
||
担当者からのメッセージ Message
【渋谷・恵比寿・広尾が生活圏に、渋谷東・文教エリアの車庫付き新築分譲住宅】JR各線と日比谷線が乗入れる「恵比寿」駅徒歩15分。ビッグターミナル渋谷駅も徒歩圏内。渋谷・恵比寿・広尾の3駅のちょうど中間地点、東向き整形地に誕生する3階建てです。間取りは3LDK。ワンフロアタイプの2階LDKは広々約18帖で、スケルトン階段がアクセントの開放的な空間です。ガス式衣類乾燥機・乾太くん完備。車庫ございます。
山手線「恵比寿」駅徒歩15分。アクセスの良さは最早説明不要。周辺には有名な飲食店やお洒落スポットが豊富で緑豊かな公園もあり物質的豊かさと情緒ある自然の両方が揃っています。
お電話のお問い合わせはこちらから
03-5790-9204
営業時間:9:30~20:00
定休日:毎週/火曜日・水曜日
-
〒150-0046 東京都渋谷区松濤2丁目7-12
-
検討中リストに追加
- お問い合わせ
ローンシミュレーション Simulation
この物件を購入した場合の、月々の支払い価格の一例です。借り入れを保証するものではございません。
- 返済期間
-
- 金利
-
- ボーナス時の増額(1回分)
-
- 借入金額:
-
- 頭金:
-
(※元利均等方式 金利5.00%まで ※返済年数5~35年まで入力できます)
(※ボーナスは年2回で計算しています。1000万円まで入力できます)
(※物件購入時、その他諸費用が発生する場合がございます)
- 毎月の返済額
おすすめ物件 Recommended Property
-
- 渋谷区恵比寿3丁目 中古戸建
- 1億9,800万円/3LDK/116.62㎡
- 東京都渋谷区恵比寿3丁目
- 山手線「恵比寿」駅 徒歩15分
-
- 渋谷区代々木5丁目 中古戸建
- 1億6,000万円/4LDK/127.72㎡
- 東京都渋谷区代々木5丁目
- 小田急小田原線「参宮橋」駅 徒歩5分
-
- 【THE SELOSSE広尾 Ⅱstage】渋谷区広尾3丁目 新築戸建
- 1億2,480万円/3LDK/76.74㎡
- 東京都渋谷区広尾3丁目
- 日比谷線「広尾」駅 徒歩9分
-
- 渋谷区神宮前3丁目 新築戸建
- 8億6,870万円/3LDK/223.09㎡
- 東京都渋谷区神宮前3丁目
- 千代田線「表参道」駅 徒歩8分
-
- 渋谷区神宮前3丁目 店舗兼住宅
- 11億円/5LDK/231.65㎡
- 東京都渋谷区神宮前3丁目
- 千代田線「明治神宮前」駅 徒歩10分
周辺施設情報 Spot

- 渋谷東ちとせ保育園
- 約209m/3分

- 渋谷区立 広尾幼稚園
- 約502m/7分

- 渋谷区立常磐松小学校
- 約333m/5分

- 渋谷区立広尾小学校
- 約502m/7分

- 広尾中学校
- 約225m/3分

- 渋谷区立氷川の杜公園
- 約326m/5分

- 渋谷区立氷川みかん公園
- 約392m/5分

- 渋谷区ふれあい植物センター
- 約754m/10分

- マルエツプチ南青山七丁目店
- 約464m/6分

- アトレ恵比寿 本館
- 約1247m/16分

- 広尾プラザ
- 約1416m/18分

- セブン-イレブン 渋谷東4丁目店
- 約132m/2分

- ココカラファイン 恵比寿店
- 約1131m/15分

- 日本赤十字社医療センター
- 約530m/7分

- さわやか信用金庫 渋谷支店
- 約522m/7分

- 渋谷東二郵便局
- 約537m/7分

- 渋谷区立渋谷図書館
- 約556m/7分

- 渋谷警察署 日赤病院前交番
- 約391m/5分

- 渋谷区新橋出張所
- 約1105m/14分

- 渋谷ストリーム
- 約1217m/16分
お電話のお問い合わせはこちらから
03-5790-9204
営業時間:9:30~20:00
定休日:毎週/火曜日・水曜日
-
〒150-0046 東京都渋谷区松濤2丁目7-12
-
検討中リストに追加
- お問い合わせ
※地図上に表示される物件の位置は付近住所に所在することを表すものであり、実際の物件所在地とは異なる場合がございます。













