杉並区下高井戸1丁目 新築戸建
【都心居住の庭や第二のリビングにも!約17帖屋上テラスのある下高井戸の家】京王線「上北沢」駅徒歩5分、「桜上水」駅も徒歩8分の距離で便利です。第二のリビングとして使える広々とした屋上テラス付きの4LDK戸建。ワンフロアタイプの約18帖LDKは3面採光×東バルコニーで陽当たり良好です。全室2面採光で快適。主寝室はゆとりの約9.4帖です。駐車場完備。周辺はスーパーや商店街などお買い物スポット充実です。
- 価格
- 8,980万円
- ローンの目安
- 23.7万円/月
- 交通
- 京王線「上北沢」駅 徒歩5分
- 建物面積(坪数)
- 102.91㎡(31.13坪)
- 間取り/専有面積
- 4LDK / 102.91㎡
お電話のお問い合わせはこちらから
03-5790-9204
営業時間:9:30~20:00
定休日:毎週/火曜日・水曜日
-
〒150-0046 東京都渋谷区松濤2丁目7-12
-
検討中リストに追加
- お問い合わせ
物件概要 Property Detail
情報の見方| 所在地 | 東京都杉並区下高井戸1丁目 | ||
|---|---|---|---|
| 交通 | |||
| 間取り/詳細 |
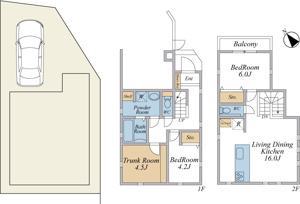
4LDK/ LDK 18.2帖 1室/洋室 7.0帖 1室/洋室 4.0帖 1室/洋室 9.4帖 1室/洋室 6.1帖 1室 1階7.0帖洋室、1階4.0帖洋室は納戸申請。 |
建物面積(坪数) | 102.91㎡(31.13坪 |
| 価格 | 8,980万円 | ||
| 駐車場/月額料金 | 有(1台)/0円 | ||
| 土地の敷金/保証金 | -/- | 借地料/借地期間 | -/- |
| 土地権利 | 所有権 | 土地面積(坪数) | 64.94㎡(19.64坪) |
| 傾斜地部分面積 | - | 路地状敷地 | - |
| 私道負担面積/セットバック |
77.98㎡/無 私道負担割合 : 1/3 |
高圧線下面積 | - |
| 地目/地勢 | 宅地/- | 接道状況 | 一方(東 公道 4.0m) |
| 建ぺい率/容積率 | 80%/300% | 用途地域 | 近隣商業 |
| 都市計画 | 市街化区域 | 種別/構造 | 新築一戸建/木造 |
| 階建 | 3階建 | 築年月(築年数) | 2026年 2月 (予定) |
| 総区画数/販売区画数 | 1区画/1区画 | 向き | 東 |
| 現況 | 未完成 | その他の法令上の制限 | 宅地造成及び特定盛土等規制法/高度地区/防火地域/宅地造成等工事規制区域、上北沢駅周辺地区まちづくり方針 |
| 取引態様/引渡時期 | 仲介/相談 | 建築確認番号 | 第JTC25Y-AZ0253-00号 |
| 物件番号 | 99160023 | 取引条件の有効期限 | 2025年12月25日 |
| 設備条件 |
|
||
| 備考 |
グローバルインクでは初期費用の一部をクレジットカードでお支払い頂けます♪ 詳しくはお気軽にお問合せご相談下さいませ。 グローバルインクがお贈りする3大無料サービスをぜひご利用ください! ●3大サービスその1 超レア!未公開・企画段階物件情報ご紹介サービス 当社ホームページより会員登録ください。ネット・メルマガにすら開示できない超レア情報をお届けします。 ●3大サービスその2 不動産購入・ミニセミナー無料受講 不動産を探し始めの方、安心購入への具体的行動プランをお教えします。 契約書、重要事項説明書などの見方、瑕疵物件の判別方法など、不利な契約から身を守り、安心な物件購入ができるようにノウハウを伝授します! **セカンド・オピニオンサービス始めました!** ●3大サービスその3 ライフプランニング相談会無料開催 安心購入の為には、住宅ローンのことだけではなく、資金的に安心できる人生設計が必要になります。 お子様の学費、住宅のリフォーム、突発的な出費、そして夢の海外旅行など、すべての資金計画を一度してみることをお勧めします。 今なら無料で専門のファイナンシャル・プランナーが御相談にあずかります。 詳しくは当社「3大無料サービス」係まで TEL:03-5790-9204 |
||
| 取扱会社 |
|
||
担当者からのメッセージ Message
【都心居住の庭や第二のリビングにも!約17帖屋上テラスのある下高井戸の家】京王線「上北沢」駅徒歩5分、「桜上水」駅も徒歩8分の距離で便利です。第二のリビングとして使える広々とした屋上テラス付きの4LDK戸建。ワンフロアタイプの約18帖LDKは3面採光×東バルコニーで陽当たり良好です。全室2面採光で快適。主寝室はゆとりの約9.4帖です。駐車場完備。周辺はスーパーや商店街などお買い物スポット充実です。
京王線「上北沢」駅徒歩5分。新宿へ乗換なし一本、渋谷へは明大前乗換えで約20分と好アクセス。周辺は保育・幼稚園や学校、公園が充実しており、子育てに適した環境といえます。
お電話のお問い合わせはこちらから
03-5790-9204
営業時間:9:30~20:00
定休日:毎週/火曜日・水曜日
-
〒150-0046 東京都渋谷区松濤2丁目7-12
-
検討中リストに追加
- お問い合わせ
ローンシミュレーション Simulation
この物件を購入した場合の、月々の支払い価格の一例です。借り入れを保証するものではございません。
- 返済期間
-
- 金利
-
- ボーナス時の増額(1回分)
-
- 借入金額:
-
- 頭金:
-
(※元利均等方式 金利5.00%まで ※返済年数5~35年まで入力できます)
(※ボーナスは年2回で計算しています。1000万円まで入力できます)
(※物件購入時、その他諸費用が発生する場合がございます)
- 毎月の返済額
おすすめ物件 Recommended Property
-
- 杉並区成田東1丁目 新築戸建
- 8,980万円/4LDK/88.28㎡
- 東京都杉並区成田東1丁目
- 丸ノ内線「南阿佐ケ谷」駅 徒歩14分
-
- 杉並区成田東2丁目 新築戸建
- 9,599万円/4LDK/119.65㎡
- 東京都杉並区成田東2丁目
- 京王井の頭線「西永福」駅 徒歩17分
-
- 杉並区高円寺南3丁目 中古戸建
- 9,750万円/4LDK/87.62㎡
- 東京都杉並区高円寺南3丁目
- 丸ノ内線「新高円寺」駅 徒歩5分
-
- 杉並区和泉2丁目 中古戸建
- 9,980万円/3LDK/91.19㎡
- 東京都杉並区和泉2丁目
- 京王線「代田橋」駅 徒歩11分
-
- 杉並区上荻3丁目 新築戸建
- 9,990万円/2LDK/80.33㎡
- 東京都杉並区上荻3丁目
- 中央線「荻窪」駅 徒歩14分
周辺施設情報 Spot

- 小さなおうち保育園
- 約435m/6分

- 松沢幼稚園
- 約300m/4分

- 杉並区立高井戸第三小学校
- 約624m/8分

- 世田谷区立上北沢小学校
- 約638m/8分

- 杉並区立向陽中学校
- 約1051m/14分

- 東京都立杉並総合高等学校
- 約1210m/16分

- 杉並区立喜花公園
- 約295m/4分

- 杉並区立下高井戸仲町緑地
- 約375m/5分

- まいばすけっと上北沢4丁目
- 約248m/4分

- まいばすけっと下高井戸5丁目
- 約356m/5分

- サミットストア上北沢店
- 約340m/5分

- ファミリーマート 杉並下高井戸四丁目店
- 約192m/3分

- ココカラファイン 桜上水北口店
- 約608m/8分

- 東京都立松沢病院
- 約1322m/17分

- 三菱UFJ銀行上北沢支店
- 約220m/3分

- 杉並桜上水郵便局
- 約544m/7分

- 世田谷区立上北沢図書館
- 約467m/6分

- 宗源寺前交番
- 約345m/5分

- 吉野家 上北沢店
- 約554m/7分

- ダイソー 京王リトナード八幡山店
- 約1042m/14分
お電話のお問い合わせはこちらから
03-5790-9204
営業時間:9:30~20:00
定休日:毎週/火曜日・水曜日
-
〒150-0046 東京都渋谷区松濤2丁目7-12
-
検討中リストに追加
- お問い合わせ
※地図上に表示される物件の位置は付近住所に所在することを表すものであり、実際の物件所在地とは異なる場合がございます。













